2 pokoje,garderoba przy sypialni,duży salon
Wrocław, Dolnośląskie
Opis
OD PRYWATNEGO OGŁOSZENIODAWCY, BEZ POŚREDNIKÓW.
DOSTĄPNE OD ZARAZ!
PRZESTRONNE MIESZKANIE W TRAKCIE WYKOŃCZENIA (NOWY GRABISZYN)
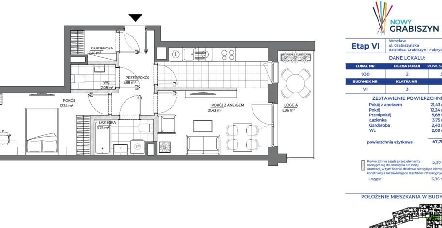
Oferujemy na sprzedaż 2-pokojowe mieszkanie o powierzchni 50,15 m², zlokalizowane na 1. piętrze w nowoczesnej inwestycji Nowy Grabiszyn (Etap VI).
W TRAKCIE WYKOŃCZENIA Prace wykończeniowe już trwają! To idealny moment na zakup – unikasz stresu związanego z szukaniem ekip i koordynacją remontu. Otrzymasz gotowy, przemyślany produkt.
Mieszkanie zostało przebudowane względem standardowego planu dewelopera, aby zmaksymalizować komfort życia i przestrzeń. Zrezygnowano ze zbędnych korytarzy na rzecz otwartej przestrzeni i strefy Master Bedroom.
Co zmieniono?
Prywatna GARDEROBA przy sypialni: Zamiast mało funkcjonalnego WC, stworzono pojemną garderobę (walk-in closet), do której wchodzi się bezpośrednio z sypialni.
Otwarta strefa dzienna: Usunięto ściany działowe oddzielające przedpokój i kuchnię od salonu. Dzięki temu powstała imponująca, otwarta przestrzeń dzienna (ponad 27 m² łącznie z komunikacją), która jest jasna i ustawna.
ROZKŁAD POMIESZCZEŃ PO ZMIANACH:
Salon z otwartą kuchnią i holem: Ogromna, otwarta przestrzeń dająca poczucie oddechu i swobody.
Sypialnia Master (12,24 m²): Ustawna, cicha, z bezpośrednim wejściem do garderoby.
Prywatna Garderoba: Dostępna wyłącznie z sypialni – Twoja intymna strefa przechowywania.
Łazienka (3,75 m²): Zaprojektowana tak, aby pomieścić wszystko, co niezbędne.
Duża Loggia (6,96 m²): Głęboka i zadaszona – idealne przedłużenie salonu w ciepłe dni.
LOKALIZACJA - NOWY GRABISZYN: Osiedle jest kompletne i samowystarczalne.
Komunikacja: Przystanek tramwajowy i autobusowy pod samym osiedlem (ul. Grabiszyńska) – szybki dojazd do Centrum, FAT i biurowców.
Wygoda: W sąsiedztwie sklepy (Lidl, Biedronka), piekarnie, usługi.
Rekreacja: Bliskość Parku Grabiszyńskiego i Lasku Oporowskiego.
Dlaczego warto? Kupujesz mieszkanie o unikatowym układzie, niedostępnym w standardowej ofercie dewelopera. Zyskujesz czas (remont trwa) i funkcjonalność apartamentu o znacznie wyższym metrażu.
Chętnie zaprezentuję postępy prac na żywo! Zapraszam do kontaktu.
Pierwsze zdjęcie jest poglądowe z innych naszych realizacji.
Oferta wysłana z programu dla biur nieruchomości ASARI CRM ()
Ogólne informacje
| Rodzaj | Na sprzedaż |
|---|---|
| Powierzchnia użytkowa | 50.19 m² |
| Piętro | 1 |
| Liczba pokoi | 2 |




