2-pokojowe mieszkanie 34m2 + balkon Bezpośrednio
Wrocław, Dolnośląskie
Opis
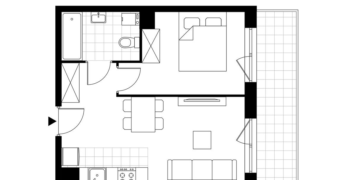
2-pokojowe mieszkanie numer 128 na 5. piętrze w Inwestycji Krakowskie Tarasy V Dewelopera IMS Budownictwo
Park Wschodni (14 minut spacerem)
Teren spacerowy wzdłuż Oławy (12 minut spacerem)
Przystanek autobusowy i tramwajowy (2 minuty spacerem)
Biedronka (4 minuty samochodem)
CH Family Point (4 minuty spacerem)
Wroclavia, Cinema City (9 minuty samochodem)
Krakowskie Tarasy V - poznaj inwestycję
Krakowskie Tarasy V to kolejny etap inwestycji od dewelopera IMS Budownictwo, składający się z budynku o zróżnicowanej wysokości od 6 do 9 kondygnacji, w którym powstanie łącznie 180 lokali o metrażu od 27 do 106 m² i układach 1-, 2-, 3-, 4- i 5-pokojowych. Dodatkowo istnieje możliwość przesuwania ścianek działowych. Do mieszkań przynależy ogródek, balkon, duży taras lub przeszklona loggia.
Na terenie inwestycji zaplanowano garaż podziemny i komórki lokatorskie. Osiedle będzie objęte monitoringiem.
Całość przedsięwzięcia będzie składała się z sześciu etapów, w których powstaną zarówno budynki mieszkalne, jak i usługowe.
Krakowskie Tarasy V - lokalizacja
Krzyki, ul. Krakowska
2,6 km do centrum
2 min. spacerem do przystanku autobusowego
2 min. spacerem do przystanku tramwajowego
dojazd do centrum: 10 min samochodem
Istotne punkty w okolicy inwestycjiPrzystanek autobusowy (121 m, 2 minuty spacerem)
Przystanek tramwajowy (117 m, 2 minuty spacerem)
Siłownia (210 m, 3 minuty spacerem)
Szkoła Podstawowa (851 m, 11 minut spacerem)
Poczta (988 m, 13 minut spacerem)
Ogólne informacje
| Rodzaj | Na sprzedaż |
|---|---|
| Powierzchnia użytkowa | 34.08 m² |
| Piętro | 5 |
| Liczba pokoi | 2 |




