2-pokojowe mieszkanie 37m2 + ogródek Bezpośrednio
Warszawa, Mazowieckie
Opis
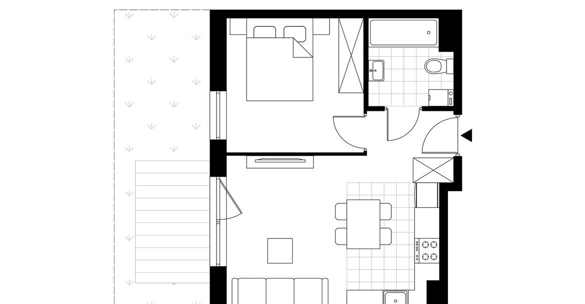
2-pokojowe mieszkanie numer L2 1.01 na parterze w budynku L w Inwestycji Nordic Bemowo III Dewelopera YIT Development
Strefa inicjatyw społecznych na osiedlu
Park Górczewska (10 minut spacerem)
Przystanek autobusowy (1 minuta spacerem), przystanek tramwajowy (7 minut spacerem)
Planowana stacja metra "Lazurowa" (2 minuty spacerem)
Biedronka (5 minut spacerem), Lidl (7 minut samochodem)
CH Wola Park, Multikino (9 minut samochodem)
Wjazd na S8 (5 minut samochodem)
Nordic Bemowo III - poznaj inwestycję
Inwestycja Nordic Bemowo powstaje tuż przy planowanej stacji metra M2. Budynki wyróżniają się fińskim designem, nordycką architekturą i wysokiej jakości materiałami. Projekt zakłada budowę blisko 600 mieszkań, wśród których znajdą się m.in. mieszkania na parterze z dużymi ogródkami czy mieszkania z antresolami.
W częściach wspólnych przewidziano plac inicjatyw społecznych – gdzie będzie można zorganizować piknik rodzinny czy warsztaty – las kieszonkowy z brzozami oraz wybieg dla psów. Na osiedlu znajdą się również ogrody deszczowe i poidła oraz domki dla małych zwierząt.
Osoby zmotoryzowane będą mieć do dyspozycji miejsca postojowe w garażu i ładowarki do ładowania samochodów elektrycznych i hybrydowych. Dla fanów jednośladów zaplanowano parkingi rowerowe.
Nordic Bemowo III - lokalizacja
Bemowo, ul. Lazurowa 127
8,0 km do centrum
2 min. spacerem do przystanku autobusowego
3 min. spacerem do planowanego metra
8 min. spacerem do przystanku tramwajowego
dojazd do centrum: 14 min samochodem
Istotne punkty w okolicy inwestycjiPrzystanek autobusowy (109 m, 2 minuty spacerem)
Przystanek planowanego metra (196 m, 3 minuty spacerem)
Przedszkole (294 m, 5 minut spacerem)
Sklep: Biedronka (316 m, 5 minut spacerem)
Restauracja (341 m, 5 minut spacerem)
Piekarnia (336 m, 5 minut spacerem)
Poczta (383 m, 6 minut spacerem)
Apteka (383 m, 6 minut spacerem)
Szkoła Podstawowa (449 m, 7 minut spacerem)
Weterynarz (456 m, 7 minut spacerem)
Siłownia (530 m, 8 minut spacerem)
Przystanek tramwajowy (576 m, 8 minut spacerem)
Żłobek (841 m, 12 minut spacerem)
Ogólne informacje
| Rodzaj | Na sprzedaż |
|---|---|
| Powierzchnia użytkowa | 37.70 m² |
| Liczba pokoi | 2 |




