2-pokojowe mieszkanie 46m2 + balkon Bezpośrednio
Dolnośląskie
Opis
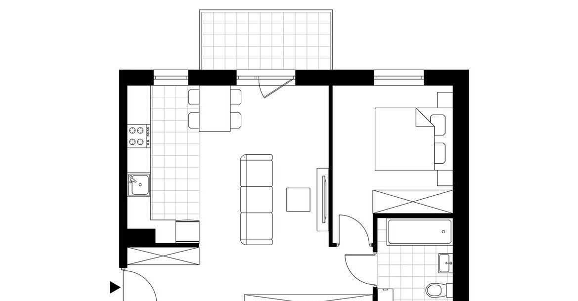
2-pokojowe mieszkanie numer 6A-2C na 1. piętrze w budynku 6 w Inwestycji Zielona Lutynia Dewelopera WPBM Mój Dom
Las Ratyński (22 minuty spacerem)
Przystanek autobusowy (7 minut spacerem)
Dino (9 minut spacerem)
Lidl (13 minut samochodem)
Port Lotniczy Wrocław (16 minut samochodem)
Zielona Lutynia - poznaj inwestycję
Inwestycja Zielona Lutynia to kompleks ośmiu budynków, zaprojektowanych w technologii prefabrykowanej oraz uzupełniająco w technologii tradycyjnej, mieszanej żelbetowo-murowanej. Taka konstrukcja zapewni najwyższą jakość oraz wydajność. W inwestycji znajduje się łącznie 288 mieszkań o metrażu od 46 do 59 m² i rozkładach 2- i 3-pokojowych. Do mieszkań – w zależności od kondygnacji – przypisano balkony lub ogródki. Do dyspozycji zmotoryzowanych mieszkańców są naziemne miejsca postojowe, a dla zwolenników jednośladów przewidziano stojaki rowerowe. Na terenie osiedla znajduje się też starannie zaaranżowana zieleń oraz dwa funkcjonalne place zabaw.
Zielona Lutynia - lokalizacja
Na zachód od Wrocławia, ul. Pogodna, Lutynia
1,3 km do granicy miasta
7 min. spacerem do przystanku autobusowego
dojazd do centrum: 39 min samochodem
Istotne punkty w okolicy inwestycjiPrzystanek autobusowy (535 m, 7 minut spacerem)
Żłobek (549 m, 7 minut spacerem)
Ogólne informacje
| Rodzaj | Na sprzedaż |
|---|---|
| Powierzchnia użytkowa | 46.68 m² |
| Piętro | 1 |
| Liczba pokoi | 2 |




