2-pokojowe z potencjałem i widokiem - Wola, Smocza
Warszawa, Mazowieckie
Opis
Prezentuje ofertę sprzedaży 2-pokojowego mieszkania z potencjałem i z widokiem - Wola, ul. Smocza | 8 min do Centrum
Szukasz nieruchomości, która łączy prestiżową lokalizację z doskonałą ceną wejściową? Prezentujemy ustawne, 2-pokojowe mieszkanie na bliskiej Woli. To idealna propozycja dla inwestora szukającego wysokiej stopy zwrotu lub osoby, która chce urządzić własne „M” od podstaw w sercu miasta.
KLUCZOWE INFORMACJE:
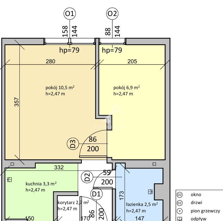
• Metraż: 28 m² (doskonale wykorzystana przestrzeń).
• Lokalizacja: ul. Smocza - zaledwie 8 minut do ścisłego Centrum. Perfekcyjna komunikacja miejska pod samym blokiem.
• Piętro: 3 w 9-piętrowym budynku z nowoczesną windą.
• Widok: Z okien rozpościera się panorama warszawskiego miasta.
POTENCJAŁ I REMONT:
Mieszkanie jest przygotowane do remontu, co pozwala na stworzenie wnętrza "skrojonego na miarę"
• Otwarta Przestrzeń: Istnieje możliwość wyburzenia ścianki działowej między kuchnią a salonem. Pozwala to na uzyskanie przestronnego, nowoczesnego salonu z aneksem kuchennym, który zyska mnóstwo naturalnego światła z dużych okien pokojowych.
• Do ogłoszenia dołączyliśmy 2 rzuty: stan rzeczywisty oraz wizualizację (propozycję zmian), która pokazuje, jak efektownie można otworzyć tę przestrzeń.
• Instalacje: Elektryka niewymieniona - idealny moment na zaplanowanie punktów świetlnych i gniazdek pod własny projekt.
DLACZEGO WARTO?
Lokalizacja Inwestycyjna: Wola to najszybciej rozwijająca się dzielnica Warszawy. Mieszkanie w tym punkcie to gwarancja szybkiego wynajmu i stabilnego wzrostu wartości nieruchomości.
Panorama Miasta: Duże przeszklenia w pokojach zapewniają mnóstwo światła i wyjątkowy miejski klimat.
Infrastruktura: W zasięgu krótkiego spaceru pełna oferta handlowo-usługowa, modne kawiarnie oraz centra biznesowe.
Zadbany Budynek: Czyste klatki schodowe, nowa winda i spokojne sąsiedztwo budują wysoki komfort życia.
⚠️ WAŻNE:
• Status prawny: Spółdzielcze własnościowe prawo do lokalu (brak założonej KW). Grunt uregulowany - możliwość zakupu na kredyt hipoteczny (można założyć Księgę Wieczystą)
• Dodatki: Do mieszkania przynależy piwnica i komórka lokatorska.
Zapraszamy inwestorów oraz osoby szukające swojego pierwszego mieszkania w sercu Warszawy!
Chcesz zobaczyć ten potencjał na żywo i sprawdzić możliwości aranżacyjne? Dzwoń!
663 917 816
Wyłączny opiekun oferty
Zapraszam 7 dnu w tygodniu 08.00-23.00
Adrian Sosa Specjalista Ds. Nieruchomości
PROPERTIQUE.
Nie ta nieruchomość? Mamy więcej!
Współpracujemy z wieloma biurami i mamy dostęp do ofert, które jeszcze nie
trafiły na rynek. Zadzwoń do doradcy wskazanego przy ogłoszeniu -
znajdziemy coś dopasowanego do Twoich potrzeb.
Myślisz nad sprzedażą swojej nieruchomości?
Pomożemy Ci powiązać transakcję i przygotować skuteczną strategię
sprzedaży, profesjonalną sesję i promocję. Działamy tylko na wyłączność, z
pełnym wsparciem marketingowym.
Kupno, sprzedaż, kredyt?
Wspieramy Klientów w całym procesie - od prezentacji, przez negocjacje, aż
po umowę i finansowanie. Skontaktuj się z nami!
Jeśli zakup wiąże się ze sprzedażą innej nieruchomości - pomogę Państwu
powiązać transakcje!”
„Niniejsze ogłoszenie jest wyłącznie informacją i nie stanowi oferty w rozumieniu
art. 66 § 1 Kodeksu Cywilnego. Dokładamy wszelkich starań, aby informacje
przedstawione w naszych ofertach były aktualne i rzetelne. Informacje zawarte w
ofercie uzyskano na podstawie oświadczeń sprzedających.”
Ogólne informacje
| Rodzaj | Na sprzedaż |
|---|---|
| Powierzchnia użytkowa | 28 m² |
| Piętro | 3 |
| Liczba pokoi | 2 |




