3 pokoje, 64 m², do wejścia, duży balkon, J-no ul.Wilcza
Śląskie
Opis
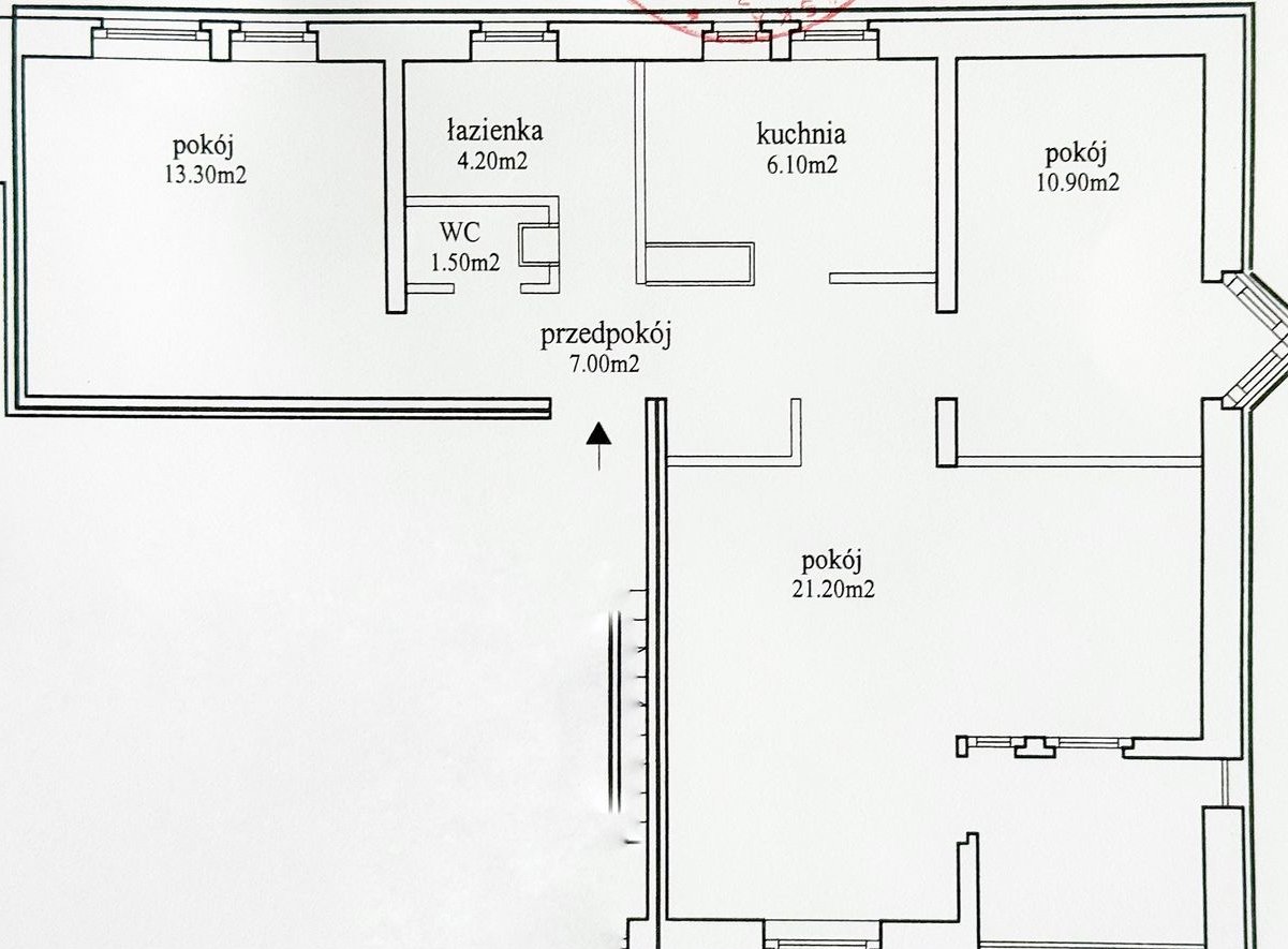
Na sprzedaż ustawne i zadbane mieszkanie M4 o powierzchni 64 m², położone na 3 piętrze w zadbanym budynku przy ul. Wilczej w Jaworznie. Idealne dla rodziny lub osób szukających gotowego do wprowadzenia, przestronnego mieszkania z pełną infrastrukturą w zasięgu kilku minut.
NAJWAŻNIEJSZE ATUTY MIESZKANIA
Stan do wejścia – mieszkanie zadbane, w bardzo dobrym stanie technicznym.
3 osobne pokoje – funkcjonalny układ zapewniający prywatność.
Oddzielna, częściowo otwarta kuchnia – zabudowana, ergonomiczna, świetnie doświetlona.
Łazienka z oknem – dodatkowy komfort i naturalne światło.
Duży balkon w salonie + dwa balkony francuskie (sypialnia i pokój).
Klimatyzacja w salonie – idealna na lato.
Ogrzewanie i woda miejskie – ekonomiczne i bezobsługowe.
Okna PCV
Na podłogach:
- gres w przedpokoju, kuchni i łazience,
- parkiet mozaika w salonie i pokojach.
Gazowa płyta w kuchni.
Piwnica
STAN BUDYNKU
Planowane odnowienie balkonów oraz elewacji – wzrost wartości i estetyki nieruchomości.
Czynsz ok. 750 zł (dla 2 osób).
LOKALIZACJA
Mieszkanie znajduje się w świetnie skomunikowanej części Jaworzna:
w pobliżu komunikacja miejska,
szkoły, przedszkola,
sklepy, punkty usługowe,
siłownia,
bardzo blisko las – idealny na spacery i aktywność na świeżym powietrzu.
To mieszkanie łączy wygodę, funkcjonalny układ i świetną lokalizację – gotowe, aby od razu w nim zamieszkać.
Zapraszam do kontaktu w sprawie szczegółów i prezentacji.
Eleonora Mirocha – pośrednik odpowiedzialny zawodowo. Nr licencji: 24031.
Zapraszamy również do naszego biura w Jaworznie - Rynek ulica Pocztowa 8.
Zapewniamy obsługę notarialną i pomagamy w uzyskaniu kredytu.
Przedstawiona propozycja nie jest ofertą handlową w rozumieniu przepisów prawa lecz ma charakter informacyjny i może podlegać aktualizacji.
Ogólne informacje
| Rodzaj | Na sprzedaż |
|---|---|
| Powierzchnia użytkowa | 64 m² |
| Piętro | 3 |
| Liczba pokoi | 3 |




