3 pokoje, osobno kuchnia, po remoncie, garaz
Pomorskie
Opis
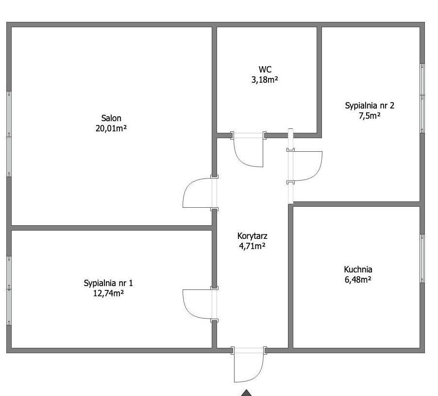
PROPONUJEMY NA SPRZEDAŻ 3-POKOJOWE MIESZKANIE O POWIERZCHNI 54,62 m² NA 1 PIĘTRZE W MIEJSCOWOŚCI RUMSKO! MIESZKANIE PO GENERALNYM REMONCIE!
Oferujemy na sprzedaż komfortowe i funkcjonalne mieszkanie o powierzchni 54,62 m², położone na pierwszym piętrze kameralnego budynku, w którym znajdują się tylko cztery lokale mieszkalne. To idealna propozycja dla osób poszukujących spokojnego miejsca do życia w otoczeniu natury, z dala od miejskiego zgiełku.
Mieszkanie przeszło generalny remont we wrześniu 2023 roku, dzięki czemu jest gotowe do zamieszkania bez konieczności ponoszenia dodatkowych nakładów finansowych. Wymieniono wszystkie instalacje, wykonano nowe wylewki, zamontowano nowe kaloryfery oraz drzwi antywłamaniowe. Na ścianach położono gładzie, a na podłogach wysokiej jakości panele i kafle. Okna PCV z moskitierami zapewniają dobrą izolację oraz komfort użytkowania.
Lokal jest dwustronny, bardzo jasny i ustawny. Składa się z przestronnego salonu, dwóch sypialni, widnej kuchni, łazienki oraz przedpokoju.
W salonie znajduje się kanapa z telewizorem, szafka RTV oraz stół z krzesłami, co tworzy wygodną przestrzeń do codziennego funkcjonowania i spotkań rodzinnych.
Mieszkanie posiada dwie sypialnie – jedna z nich pozostaje pusta i daje możliwość własnej aranżacji (pokój dziecięcy, gabinet, garderoba), natomiast druga wyposażona jest w duże łóżko oraz pojemną szafę.
Kuchnia jest jasna i funkcjonalna, w pełni wyposażona w sprzęty AGD, w tym zmywarkę oraz kuchenkę elektryczną. Z okna rozpościera się przyjemny widok na okolicę. Łazienka utrzymana w nowoczesnym stylu, z odpływem liniowym pod prysznicem. Ogrzewanie oraz podgrzewanie wody z pieca na paliwo stałe, bojler o pojemności 120 L.
Dużym atutem nieruchomości są przynależności: dwa ogródki do wyłącznego korzystania, garaż oraz piwnica, które zapewniają dodatkową przestrzeń i komfort użytkowania. Niskie koszty utrzymania czynią ofertę jeszcze bardziej atrakcyjną.
Rumsko to spokojna, malownicza miejscowość położona w pobliżu Morza Bałtyckiego oraz jeziora Izbica. W odległości około 4 km znajdują się sklepy (Dino, Biedronka, Pepco), szkoła, kościół, przychodnia oraz przystanek PKS, co zapewnia wygodny dostęp do podstawowej infrastruktury.
DODATKOWE INFORMACJE:
stan prawny: pełna własność,
mieszkanie po generalnym remoncie (2023 r.),
ogrzewanie i ciepła woda – piec na paliwo stałe,
wszystkie okna PC,
garaż, piwnica oraz dwa ogródki,
ogólnodostępne miejsca parkingowe przy budynku.
CENA: 279 000 PLN
Strona Kupująca pokrywa wynagrodzenie prowizyjne dla biura.
Więcej informacji uzyskasz kontaktując się z nami:
669 647 067 – Karolina Jakuczun (opiekun oferty)
503 901 101 – Adrianna Iwanicka
799 799 397 – Dominika Szramiak
799 799 313 – Marta Rutkowska
728 111 007 – Przemek Pryzwan
728 202 030 – Marta Patyna
Więcej zdjęć znajdziecie Państwo na Naszej stronie:
Serdecznie zapraszam Państwa na prezentację nieruchomości, z przyjemnością odpowiem na wszelkie pytania oraz udzielę dodatkowych informacji.
Zamierzasz kupić nieruchomość i skorzystać z finansowania banku? Pomożemy dokonać Ci dobrego wyboru najlepszej oferty spośród wielu banków. Nasz doradca dostosuje ofertę kredytu hipotecznego do Twoich potrzeb i oczekiwań oraz będzie do Twojej dyspozycji na każdym etapie procesu kredytowego.
Niniejsza oferta nie stanowi oferty w rozumieniu Kodeksu Cywilnego, a dane w niej zawarte mają jedynie charakter informacyjny i mogą ulec zmianie.
Ogólne informacje
| Rodzaj | Na sprzedaż |
|---|---|
| Powierzchnia użytkowa | 54.62 m² |
| Piętro | 1 |
| Liczba pokoi | 3 |




