3-pokoje w centrum ✓ Osiedle Zamknięte ✓ Duży Balkon Garderoba ✓ Garaż
Radom, Mazowieckie
Opis
3-pokojowe mieszkanie z dużym balkonem Centrum Radom
Stan deweloperski, dostępne od ręki do wykończenia
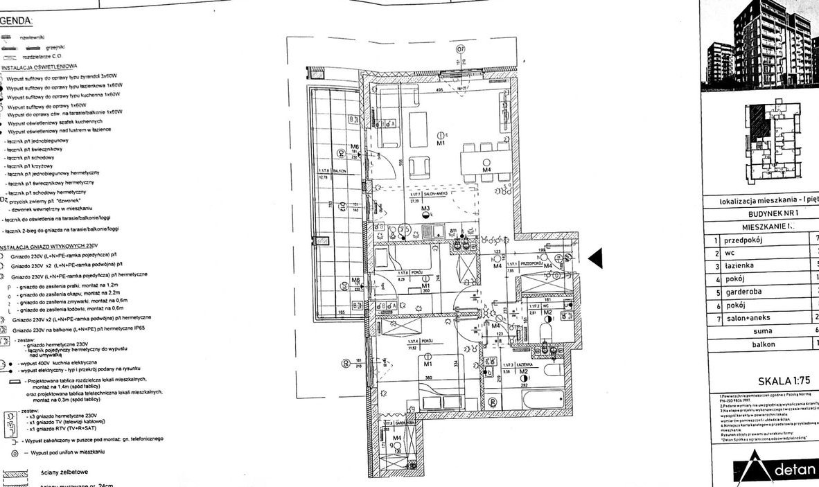
Powierzchnia: 65,75 m²
Piętro: 1 Balkon: 12,78 m²
Adres: ul. Dzierzkowska 26
Dobrze nasłonecznione, duża zaleta mieszkania, jest jasno cały dzień
Mam na sprzedaż przestronne i funkcjonalne mieszkanie 3-pokojowe zlokalizowane w nowoczesnym budynku w ścisłym centrum miasta. Idealna propozycja zarówno do zamieszkania, jak i pod inwestycję. Z mieszkania jest 10 minut spacerem na dworzec Radom Wschodni i 15 minut na dworzec Radom Główny, co daje szybki dojazd koleją do Warszawy (55 minut). Do mieszkania nie wchodzi się bezpośrednio z klatki schodowej, ale przez oddzielony drzwiami korytarz, na którym są tylko 3 mieszkania.
Solidny deweloper
Apartamentowiec wybudowany i administrowany przez renomowaną spółdzielnię mieszkaniową Łucznik.
Opcje dodatkowe
W opcji dodatkowo płatne 50 000 zł miejsce w garażu podziemnym oraz komórka lokatorska.
Rozkład pomieszczeń
Salon z aneksem kuchennym – 27,39 m²
Sypialnia – 11,82 m²
Pokój / gabinet – 8,29 m²
Garderoba – 2,03 m²
Łazienka – 5,56 m²
Osobne WC – 2,81 m²
Przedpokój – 7,85 m²
Balkon – 12,78 m² (idealny do aranżacji strefy wypoczynku)
✓ Funkcjonalny układ, dojście do balkonu z salonu i gabinetu, duży salon z kuchnią
✓ Okna na Zachód i północ, mieszkanie dobrze doświetlone, ale nie będzie przegrzane
✓ I piętro - nie ma potrzeby korzystania z windy, awaria jej nas nie interesuje
✓ Garderoba i osobne WC – rzadko spotykane w tym metrażu
✓ Duże przeszklenia i dobre doświetlenie
Budynek
nowoczesna architektura
winda
garaż podziemny
zadbane i reprezentacyjne części wspólne
Lokalizacja – Centrum
kilka minut spaceru na deptak Żeromskiego - sklepy, restauracje i punkty usługowe w zasięgu kilku minut spaceru
szybki dostęp do komunikacji miejskiej i dworca Radom Wschód/Radom Główny
blisko szkoły, przedszkola, urzędy
świetna lokalizacja pod wynajem krótko- i długoterminowy
Idealne dla:
rodziny
pary
inwestora (wysoki potencjał najmu)
Zapraszam do kontaktu i na prezentację mieszkania.
To oferta, która łączy lokalizację, funkcjonalność i potencjał inwestycyjny.
Oferta prywatna, bez prowizji.
Ogólne informacje
| Rodzaj | Na sprzedaż |
|---|---|
| Powierzchnia użytkowa | 65.75 m² |
| Piętro | 1 |
| Liczba pokoi | 3 |




