3 Pokoje Z Ogrodem gotowe do odbioru- Drabinianka
Rzeszów, Podkarpackie
Opis
Na sprzedaż mieszkanie 3 pokojowe o powierzchni 55,70 m² z prywatnym ogrodem, w stanie deweloperskim - GOTOWE DO ODBIORU.
Mieszkanie znajduję się na zamkniętym osiedlu przy ul. Sikorskiego os. Drabinianka.
W ofercie posiadam również mieszkanie na 1 pietrze z tarasem na dachu i dwoma balkonami. Zapraszam do kontaktu, aby poznać więcej szczegółów.
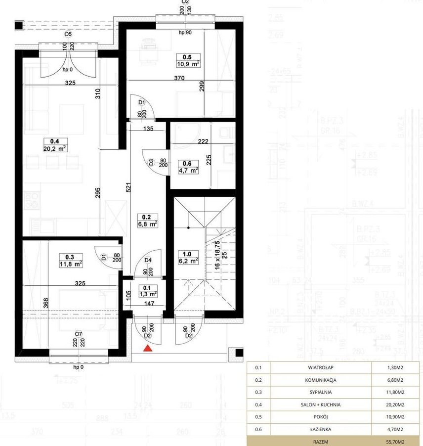
Oferta dotyczy mieszkania o powierzchni 55,70 m².
Układ nieruchomości znajdą Państwo w galerii zdjęć.
- Salon z aneksem: 20,2 m²
- Pokój: 11,8 m²
- Pokój: 10,9 m²
- Łazienka: 4,7 m²
- Hol + Wiatrołap: 8,1 m²
* Dodatkowo prywatny ogród.
Najważniejsze informacje:
- nieruchomość w stanie deweloperskim,
- rolety zewnętrzne w cenie,
- miejsce postojowe przed budynkiem w cenie mieszkania
- mieszkanie bezczynszowe,
- ogrzewanie podłogowe na całej powierzchni,
- piec dwufunkcyjny, gazowy Viessmann Vitodens. w cenie,
- miejsce postojowe w cenie,
- niezależne wejście do mieszkania,
- łatwy i szybki dojazd do centrum miasta,
- w pobliżu : sklepy, restauracje, szkoła, przedszkole, kościół, przystanek autobusowy
Mieszkanie gotowe do odbioru.
Sprzedaż bezpośrednio od dewelopera, bez prowizji i podatku PCC 2%.
Serdecznie zapraszam na prezentację nieruchomości.
Karolina Pokrywka
Tel. 730 939 304
E-mail:
Ogólne informacje
| Rodzaj | Na sprzedaż |
|---|---|
| Powierzchnia użytkowa | 55.70 m² |
| Liczba pokoi | 3 |




