3 pokoje+kuchnia, Bocianek, 59m2, do zamieszkania, bezpośrednio, GARAŻ
Kielce, Świętokrzyskie
Opis
Na sprzedaż funkcjonalne i zadbane 3 pokojowe mieszkanie o powierzchni 59 m², położone na osiedlu Bocianek – idealne dla rodziny lub jako inwestycja pod wynajem.
Mieszkanie sprzedawane jest z pełnym wyposażeniem – całe AGD i RTV w cenie, gotowe do zamieszkania od razu po zakupie.
Najważniejsze atuty:
3 niezależne pokoje + osobna kuchnia
możliwość wydzielenia 4. pokoju (duży potencjał inwestycyjny)
mieszkanie dwustronne, środkowe, jasne i ciepłe (coroczne zwroty za ogrzewanie)
piękny widok na panoramę Kielc – przy dobrej pogodzie widoczny zamek w Chęcinach
pełne wyposażenie – sprzęt AGD i RTV w cenie (m.in. telewizory, pralka, lodówka, kuchenka, odkurzacz)
duża piwnica
spokojna, zadbana klatka – idealne dla rodzin
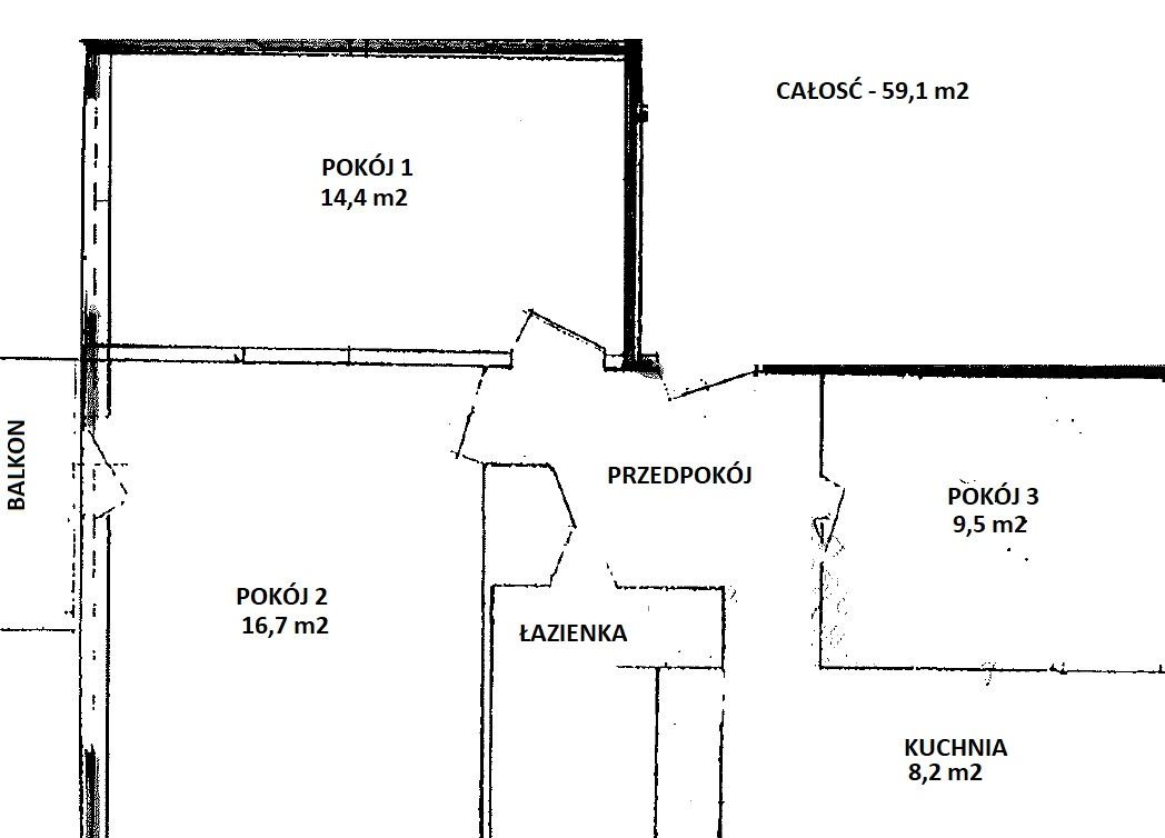
Układ i wymiary pomieszczeń:
salon – 16,7 m² (ustawny, z dużą ilością światła i wyjściem na balkon)
sypialnia – 14,4 m² (miejsce na dużą szafę i łóżko)
pokój – 9,5 m² (idealny jako pokój dziecięcy lub biuro)
kuchnia – 8,2 m² (osobna, wygodna do codziennego użytkowania)
duży przedpokój z zabudową meblową na wymiar
przestronna łazienka.
Funkcjonalny układ mieszkania daje możliwość wydzielenia dodatkowego, czwartego pokoju.
Mieszkanie przechodziło niezbędne remonty – nie ma w nim elementów PRL. Zastosowano solidne materiały (m.in. zabudowy na wymiar, dębowe meble, drzwi GERDA, nowy piecyk).
Dzięki pełnemu wyposażeniu mieszkanie świetnie nadaje się również pod wynajem.
Lokalizacja:
szkoły, przedszkola i żłobki w bezpiecznej odległości – bez konieczności przechodzenia przez ulicę
blisko Politechnika Świętokrzyska oraz Uniwersytet Jana Kochanowskiego
szybki dostęp do sklepów, usług oraz Galeria Echo
bardzo dobra komunikacja z centrum – przystanek w ok. 5 minut
w okolicy dużo zieleni i miejsc do spacerów, w tym pobliski park
Dodatkowo:
parking tylko dla mieszkańców (strefa bezpłatna dla mieszkańców)
możliwość wynajmu garażu na bardzo korzystnych warunkach (~50 zł/mies.)
Do mieszkania sporządzono Świadectwo Charakterystyki Energetycznej.
Sprzedaż bezpośrednia – brak prowizji dla kupującego.
Zapraszam do kontaktu i obejrzenia mieszkania.
Ogólne informacje
| Rodzaj | Na sprzedaż |
|---|---|
| Powierzchnia użytkowa | 59.10 m² |
| Piętro | 4 |
| Liczba pokoi | 3 |




