3-pokojowe mieszkanie, 59.42m2, Duży Salon
Warszawa, Mazowieckie
Opis
OFERTA BEZ PROWIZJI | 0% PCC | BEZPOŚREDNIO
Na sprzedaż: przestronne 3-pokojowe mieszkanie 59.42m2 | 2. piętro | nowa inwestycja
Wyjątkowo funkcjonalne, 3-pokojowe mieszkanie o przemyślanym układzie, położone na 2. piętrze w nowoczesnym budynku. To idealna propozycja dla rodziny lub osób szukających komfortowej przestrzeni z wyraźnym podziałem na strefę dzienną i prywatną.
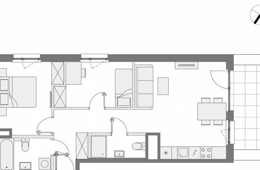
Układ pomieszczeń (łączna powierzchnia 59,42 m2):
Salon z aneksem kuchennym (22,70 m2) - serce domu, z dużą przestrzenią na wypoczynek i jadalnię.
Sypialnia główna (11,32 m2) - ustawna, z miejscem na duże łóżko i szafy.
Pokój / Sypialnia II (9,03 m2) - idealny jako pokój dziecięcy lub gabinet.
Łazienka główna (4,66 m2) - z miejscem na wannę.
Toaleta / Druga łazienka (3,37 m2) - rzadko spotykany atut podnoszący komfort życia.
Hol (8,34 m2) - z wnękami przygotowanymi pod pojemne szafy w zabudowie.
Loggia - dodatkowa przestrzeń zewnętrzna.
Najważniejsze atuty mieszkania:
Dwustronna ekspozycja - mieszkanie jest narożne, co gwarantuje świetne doświetlenie o różnych porach dnia.
Dwie łazienki - ogromna wygoda dla domowników i gości.
Optymalny rozkład - brak przechodnich pokoi, maksymalne wykorzystanie każdego metra.
Stan deweloperski - możliwość aranżacji wnętrza „pod siebie” od podstaw.
Nowoczesne budownictwo - winda, eleganckie klatki schodowe i wysoki standard wykończenia części wspólnych.
Najważniejsze atuty inwestycji:
Część nowej dzielnicy mieszkaniowej w stylu Miasteczka Wilanów
Niska, 4- lub 5-piętrowa zabudowa z punktami usługowymi, uliczkami i placem miejskim
Pełne zieleni dziedzińce ze strefami do wypoczynku i aktywności w duchu różnych dyscyplin sportowych
Ogólnodostępny teren rekreacji ze zbiornikiem wodnym i siłownią plenerową
Części wspólne zasilane energią z paneli fotowoltaicznych - niższe opłaty
Rozbudowana infrastruktura rowerowa, tj. stojaki, rowerownie, stacje napraw
Place zabaw, oferujące różne atrakcje, m.in. huśtawki, piaskownice, zjeżdżalnie i trampoliny
Zapraszamy do kontaktu - odpowiadamy szybko.
W ofercie posiadamy również inne mieszkania w tej oraz w innych inwestycjach.
OFERTA BEZ PROWIZJI | 0% PCC | BEZPOŚREDNIO
Ogólne informacje
| Rodzaj | Na sprzedaż |
|---|---|
| Powierzchnia użytkowa | 59.42 m² |
| Piętro | 2 |
| Liczba pokoi | 3 |




