3-pokojowe mieszkanie z dużym tarasem i widokiem na morze
Gdynia, Pomorskie
Opis
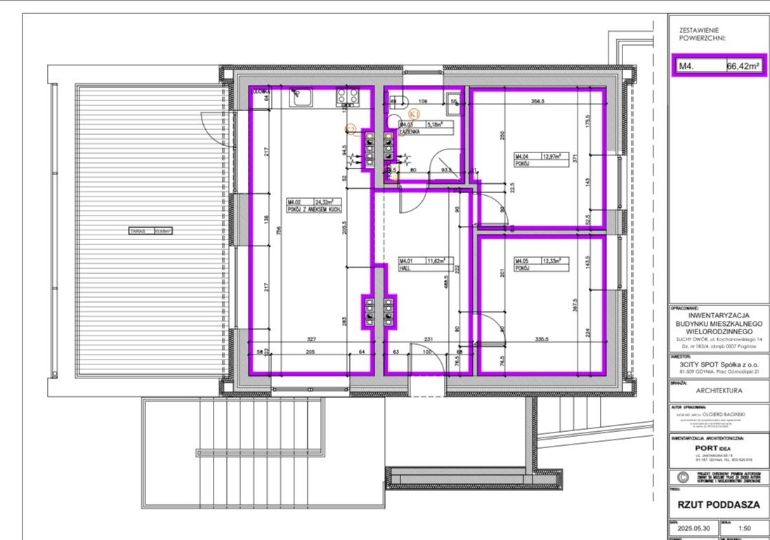
Oferujemy na sprzedaż przestronne i jasne mieszkanie o powierzchni 66,42 m², zlokalizowane w Suchym Dworze - spokojnej i zielonej okolicy. Jednym z największych atutów tej nieruchomości jest przestronny taras o powierzchni aż 30,68 m², z którego rozpościera się fantastyczny widok – z oddali widać morze. To idealna przestrzeń do relaksu, porannej kawy lub spotkań z bliskimi.
Opis mieszkania:
Powierzchnia: 66,42 m²
Liczba pokoi: 3 (duży salon z aneksem kuchennym, 2 sypialnie)
Łazienka: z kabiną prysznicową
Piętro: 2
Taras: 30,68 m² z widokiem na morze
Stan bardzo dobry
Ogrzewanie gazowe
Mieszkanie w pełni umeblowane i wyposażone
Dodatkowo do mieszkania przynależą (dodatkowo płatne):
2 miejsca parkingowe
Komórka lokatorska
Atuty nieruchomości:
Duży taras z pięknym widokiem
Funkcjonalny układ pomieszczeń – idealny dla rodziny lub jako inwestycja
Kameralna okolica z zabudową jednorodzinną
Bliskość terenów zielonych i szybki dojazd do Trójmiasta
Brak podatku PCC 2% – oszczędność dla kupującego
Kupujący NIE PŁACI prowizji!
Rozkład pomieszczeń:
Przestronny salon z aneksem kuchennym i wyjściem na taras
Dwie komfortowe sypialnie
Łazienka z kabiną prysznicową
Przedpokój z miejscem do przechowywania
Mieszkanie łączy w sobie komfort, funkcjonalność i wyjątkową lokalizację. To idealna propozycja dla osób, które marzą o przestrzeni z widokiem na morze, bez rezygnacji z miejskich udogodnień.
Zapraszam do kontaktu i umówienia się na prezentację – mieszkanie dostępne od zaraz!
Ogólne informacje
| Rodzaj | Na sprzedaż |
|---|---|
| Powierzchnia użytkowa | 66.42 m² |
| Piętro | 2 |
| Liczba pokoi | 3 |




