4 pokojowy dom w zabudowie bliźniaczej - Kamionki
Wielkopolska
Opis
Na sprzedaż nowoczesny dom w zabudowie bliźniaczej, idealny dla rodziny lub osób pracujących. Zlokalizowany w spokojnej okolicy w Kamionkach, przy ul. Magnoliowej (gmina Kórnik).
Nieruchomość o powierzchni użytkowej 74,28 m² z dodatkowym poddaszem (32 m² po podłodze) mieści się na działce o powierzchni 195 m².
Cena: 530 000 zł brutto (zawiera VAT 8%, brak podatku PCC 2%)
Powierzchnia użytkowa: 74,28 m² + poddasze
Działka: 195 m² (ogród około 100 m²)
Odbiór: I kwartał 2026 roku
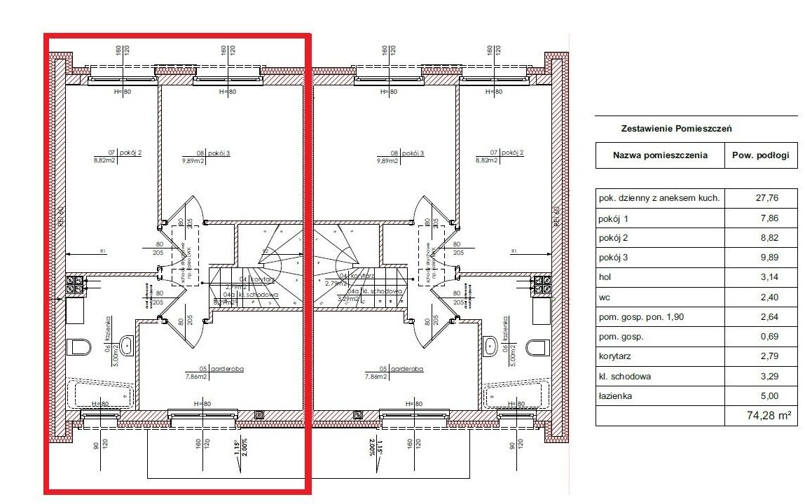
Dom oferuje przestronny i funkcjonalny układ pomieszczeń:
Parter:
Salon z aneksem kuchennym – 27,76 m² (duże okno tarasowe z wyjściem na ogród)
WC – 2,40 m²
Hol – 3,14 m²
Piętro:
3 sypialnie (9,89 m², 8,82 m², 7,86 m²)
Łazienka z oknem – 5,00 m²
Korytarz – 2,79 m²
Klatka schodowa – 3,29 m²
Poddasze:
Powierzchnia po podłodze: 32 m² – możliwość aranżacji na dodatkowy pokój lub przestrzeń do przechowywania.
Standard wykończenia:
Ogrzewanie podłogowe w całym domu
Pompa ciepła Heiko Thermal Plus 6 kW
Wyprowadzony przewód pod instalację fotowoltaiczną
Okna PCV trzyszybowe (Rehau)
Tynki gipsowe III kategorii
Dach pokryty dachówką
Brak skosów na piętrze – większa funkcjonalność pomieszczeń
2 miejsca postojowe przed budynkiem
Teren ogrodzony płotem panelowym
Przygotowane miejsce w salonie na kominek
W elewacji schowane są puszki na rolety zewnętrzne
Media: prąd, woda, kanalizacja, światłowód.
Lokalizacja:
Nieruchomość znajduje się w spokojnej, zielonej okolicy:
300 m do sklepów (Dino, Netto, Rossmann, piekarnia, gastronomia)
30 minut samochodem do centrum Poznania (droga S11)
Dogodna komunikacja miejska – autobus linii 527
Zapraszamy na prezentację!
Zamieszkaj w cichej, przyjaznej okolicy z szybkim dostępem do miasta i w pobliżu pełnej infrastruktury handlowo-usługowej.
Ogólne informacje
| Rodzaj | Na sprzedaż |
|---|---|
| Powierzchnia użytkowa | 74.28 m² |
| Liczba pokoi | 4 |




