5 pokoi. 2 garaże. Panoramiczny widok. Balkony. Obok Morskiego Oka
Warszawa, Mazowieckie
Opis
Dwustronny apartament o powierzchni 163,55 m² położony na 6. piętrze (7. kondygnacji) kameralnego budynku przy ulicy Belgijskiej. Jedna z najlepszych lokalizacji w Warszawie. Spokojna ulica odchodząca od ulicy Puławskiej. Niedaleka odległość do centrum miasta. Tuż obok parki Promenada-Morskie Oko, Park Szustrów, Aleja Aliny Szapocznikow - doskonałe miejsca do spacerów i relaksu.
Świetna infrastruktura - w pieszej odległości znajdują się liczne punkty handlowo-usługowe, modne restauracje, kafejki, cukiernie, piekarnie…
Dwa lokale na piętrze, dwie windy, recepcja dzienna z ochroną, system kontroli dostępu.
Rok oddania budynku do użytkowania: 1998
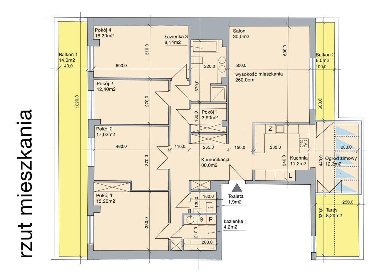
Apartament składa się z:
salonu 30 m² z wyjściem na balkon (6,0 m²)
kuchni 11,2 m²
jadalni/ogrodu zimowego 12,3 m² (z dodatkowym ogrzewaniem podłogowym) z wyjściem na taras (8,25 m²) i balkon (6,0 m²)
czterech sypialni: 18,20 m², 12,40 m², 17,02 m², 15,20 m², z trzech wyjście na balkon o powierzchni 14 m²
łazienki 8,14 m² z wanną, oddzielnym prysznicem, dwiema umywalkami
łazienki 4,20 m² z kabiną prysznicową, pralką, suszarką
toalety 1,9 m²
garderoby/pomieszczenia gospodarczego 3,90 m²
przestronnego holu i korytarza
Panoramiczny widok w trzech kierunkach – północnym, wschodnim oraz zachodnim.
Lokal jest dwustronny (północ/południe).
Piętro 6/7
Dwa miejsca parkingowe w garażu podziemnym (przynależą do mieszkania, bez dodatkowych opłat)
Stan: do zamieszkania, odświeżenia, remontu zgodnie z indywidualnymi potrzebami
Lokal ma założoną księgę wieczystą. Można posiłkować się kredytem.
151,55 m² wpisane jest do KW; 12 m² to dodatkowa powierzchnia zgłoszona podczas adaptacji w Wydziale Architektury.
Istnieje możliwość aranżacji mieszkania na biuro. W budynku przeważają spokojne lokale biurowe. Lokalizacja zapewnia bardzo dobry dojazd zarówno środkami komunikacji miejskiej, jak i samochodem.
Obecny czynsz do administracji: eksploatacja (w tym dzienna recepcja z ochroną) 1 742,83, fundusz remontowy 454,65; ogrzewanie miejskie (opłaty stałe i zmienne) 560,-, wywóz nieczystości 60,- Łącznie: 2 817,48 + opłaty za zimną wodę, ścieki i podgrzanie wody (w zależności od ilości osób).
Dodatkowo: roczna opłata za użytkowanie wieczyste gruntu ok. 2 400.
Cena sprzedaży: 3 600 000 PLN
Niniejsza prezentacja nie jest ofertą w rozumieniu Kodeksu Cywilnego i ma charakter informacyjny.
Zapraszam na prezentację po uprzednim umówieniu telefonicznym! Kontakt telefoniczny: pon-pt w godzinach 10:00-17:30.
Joanna Brych
Ogólne informacje
| Rodzaj | Na sprzedaż |
|---|---|
| Powierzchnia użytkowa | 164 m² |
| Piętro | 6 |
| Liczba pokoi | 5 |




