➤ 5 Pokoi ✔ Garaż ✔ Rekuperacja ✔ Ogród ✔ 0%
Wrocław, Dolnośląskie
Opis
Do sprzedaży dom (lokal mieszkalny w domu jednorodzinnym dwulokalowym) z 5 pokojami na nowoczesnym osiedlu Marszowice na zachodzie Wrocławia.
Jest to świetna propozycja dla rodziny szukającej komfortu, ciszy i bliskości natury, a jednocześnie z możliwością dojazdu do centrum Wrocławia.
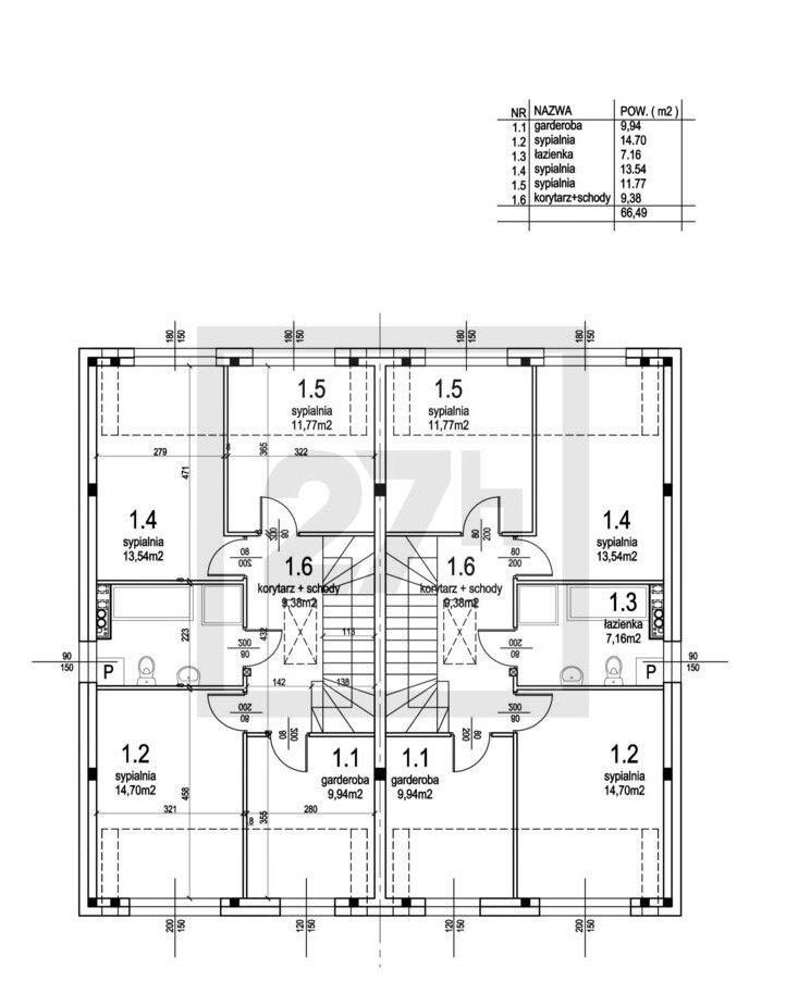
+ POMIESZCZENIA:
+ Parter:
0.1 Wiatrołap: 4,6 m2
0.2 WC: 2,04 m2
0.3. Hol + schody: 8,44 m2
0.4. Pokój dzienny z kuchnią i jadalnią: 28,64 m2
Razem: 43,72 m2
0.5 Garaż: 21,77 m2
+ dodatkowo miejsce postojowe na wyłączność przed domem
+ Poddasze:
1.1 Garderoba: 9,94 m2
1.2. Sypialnia: 14,70 m2
1.3. Łazienka z oknem: 7,16 m2
1.4. Sypialnia: 13,54 m2
1.5. Sypialnia: 11.77 m2
1.6. Korytarz ze schodami: 9,38 m2
Razem: 66,49 m2
Całość powierzchnia całkowita z garażem: 131,98 m2
+ Dodatkowo strych nieliczony do powierzchni.
Ogród: 277 m2
Powierzchnia całkowita działki: 342 m2
+ STANDARD:
Dom jest oddawany w standardzie deweloperskim.
REKUPERACJA - Nowoczesna wentylacja z odzyskiem ciepła + CENTRALA WENTYLACYJNA holenderskiej marki DRAFTON PROFESSIONAL
JAPOŃSKA POMPA CIEPŁA firmy DAIKIN
OGRZEWANIE PODŁOGOWE we wszystkich pomieszczeniach na parterze i piętrze
Ocieplenie dachu pianą PUR
Energooszczędne okna plastikowe, duże przeszklenia
Przygotowanie pod montaż FOTOWOLTAIKI
Przygotowanie pod montaż INTERNETU ŚWIATŁOWODOWEGO – kanał teletechniczny od ulicy do każdego domu
Możliwość zamontowania ROLET ZEWNĘTRZNYCH NA PARTERZE I PIĘTRZE - skrzynki na rolety zasilone elektrycznie wraz z izolacją termiczną. Rolety w zakresie i do montażu przez właścicieli lokali.
+ LOKALIZACJA:
Inwestycja zlokalizowana jest na zachodzie Wrocławia na osiedlu Marszowice w pobliżu Lasu Mokrzańskiego. To komfortowe miejsce dla osób, które cenią bliskość natury, spokojną okolicę oraz niewielką odległość od centrum Wrocławia. W okolicy niska zabudowa.
Z pobliskiego przystanku kursuje autobus 923, którym dojedziemy do wrocławskich Stabłowic czy Leśnicy. Do Rynku jest 15 km.
W okolicy znajduje się m.in.: szkoła podstawowa, przedszkole, żłobek, sklepy i punkty usługowe, paczkomaty, kościół, szpitale, przychodnia.
TRANSPORT:
Przystanek wrocławskiej komunikacji miejskiej – 100 m, 2 min. piechotą
Stacja PKP Wrocław Pracze - 3 km, 9 min. sam.
Obwodnica autostradowa – 8 km
Posesja przy nowo przebudowywanej ulicy: chodniki, ścieżka rowerowa, oświetlenie, nowe sieci
DLA DZIECI:
Szkoła Podstawowa przy ul. Karpnickiej na Stabłowicach - 2,7 km, 8 min sam.
Przedszkole "Pod Wierzbami" - odległosć 2km, 7 min. samoch.
Żłobek "Futrzak" - odległość 2 km , 6 min. sam
Prywatna Szkoła podstawowa i średnia Montessori w pałacu w Brzezinie
Przedszkole Językowe BigBen w Wilkszynie
SPORT:
Siłownia (Fitness Academy Maślicka) - 3,9 km, 12 min.
Fitness u Kata (Wilkszyn)
Boisko Orlik, Stadion piłkarski, siłownia na powietrzu - 1,7 km , 3 min. sam.
ZDROWIE:
Apteka (Expresspahrm) - 2,2 km - 7 min. sam
Przychodnia - 2,4 km - 8 min. sam.
Nowoczesny Dolnośląski Szpital Kliniczny oraz nowy szpital onkologiczny w budowie – 5 km, 13 min sam.
SKLEPY i INNE:
Stacja benzynowa Gazela, Myjnia samochodowa, Paczkomaty Inpost, DPD Pickup Station, Bankomat/Wpłatomat Euronet - 1,2 km - 2m sam.
DINO – w realizacji – 2 minuty samochodem
BIEDRONKA - 5 km, 9 min. sam.
Lidl, Biedronka – 8 min samochodem
Centrum Handlowe N-Park Maślice m.in. Bricomarche, Rosmann, Action, Stokrotka, Orlen, LIDL, – odl. 3,8 km, 10 min sam.
Kościół: 850 m, 11 min piechotą
Kawiarnia i restauracja oraz sklep spożywczy Kredens - 1,2, km - 2min sam.
Ponadto w pobliskiej Leśnicy - Lidl, Biedronka, Aldi, 4 apteki, centra zdrowia, lekarze różnych specjalności rehabilitacji, szkoła, palcówki bankowe, restauracje, pizzerie, kawiarnie, Zamek z parkiem leśnickim
+ Pozostałe informacje:
Oferta bez prowizji (0 zł) i bez podatku PCC (0 zł). Cena zawiera już w sobie 8% podatku VAT.
Rzut mieszkania został przygotowany na podstawie projektu budowlanego. Zastrzega się możliwość zmian. Powierzchnia lokalu i działki będzie wynikała z obmiaru geodezyjnego.
Niniejszy opis zawarty na tej stronie internetowej może podlegać aktualizacji i nie stanowi oferty określonej w art. 66 i następnych K.C.
Pewnie macie pytania a ja z przyjemnością na nie odpowiem.
Dzwońcie śmiało! Nazywam się Piotr Walendowski a mój numer TEL. to ☎ 663 172 229 ☎.
UWAGA: W OFERCIE WIELE INNYCH NIERUCHOMOŚCI Z WROCŁAWIA, WILKSZYNA, BRZEZINY, MIĘKINI I OKOLIC!
Skutecznie pomagamy w uzyskaniu kredytu, a także w kwestii projektu i wykończenia wnętrz.
Oferta wysłana z programu dla biur nieruchomości ASARI CRM ()
Ogólne informacje
| Rodzaj | Na sprzedaż |
|---|---|
| Powierzchnia użytkowa | 131.98 m² |
| Liczba pokoi | 5 |




