5-pokojowe mieszkanie 89m2 + ogródek
Wrocław, Dolnośląskie
Opis
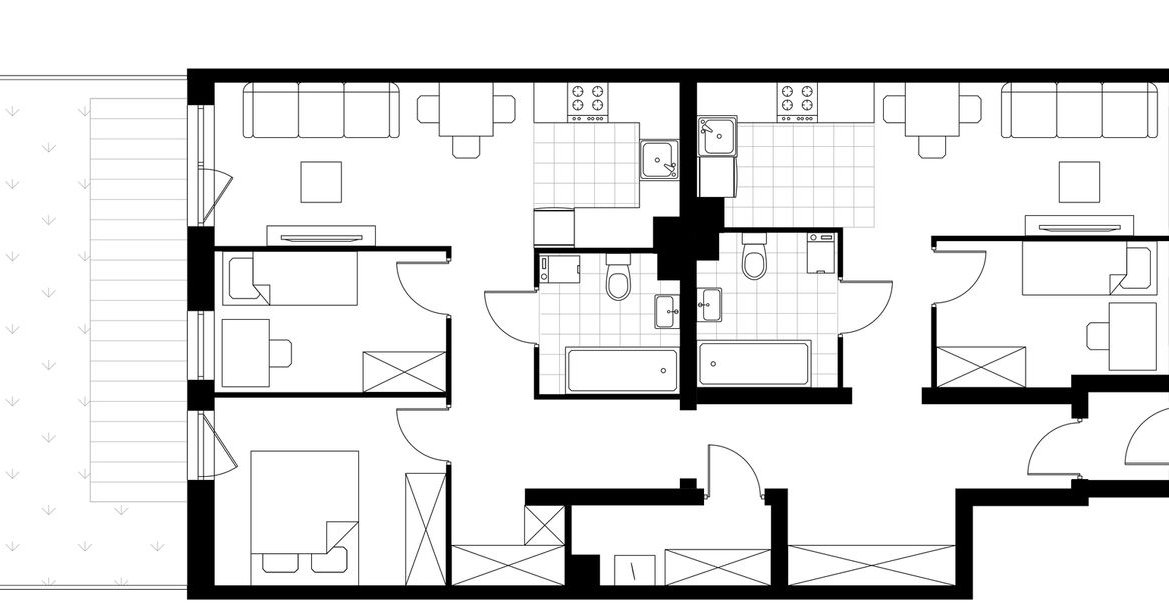
5-pokojowe mieszkanie numer 1-12.A.0.3 na parterze w budynku 1-12 w Inwestycji Murapol Osiedle Ferrovia Dewelopera Murapol
Sterowanie mediami z poziomu aplikacji mobilnej
Panele fotowoltaiczne
Park Brochowski (12 minut spacerem)
Przystanek autobusowy (8 minut spacerem)
Lidl (3 minuty samochodem)
Murapol Osiedle Ferrovia - poznaj inwestycję
Murapol Osiedle Ferrovia to kameralna inwestycja usytuowana z dala od miejskiego zgiełku, lecz jednocześnie zaledwie 15 minut od pełnego atrakcji centrum Wrocławia. Zastosowanie nowoczesnej architektury oraz ekologicznych rozwiązań pozwoli mieszkańcom poczuć się jak w wymarzonym domu.
Inwestycja składać się będzie z kilkudziesięciu starannie zaplanowanych budynków, obejmujących zarówno domy wolnostojące, jak i szeregowe. Dwukondygnacyjne budynki zapewnią maksymalną prywatność dla mieszkańców. Ponadto, przyszli mieszkańcy będą mieli dostęp do przestrzeni plenerowej w postaci nawet trzech balkonów oraz rozległych tarasów z zielonymi ogródkami, co umożliwi im cieszenie się świeżym powietrzem każdego poranka.
Murapol Osiedle Ferrovia to doskonałe miejsce dla osób poszukujących komfortowej i funkcjonalnej przestrzeni do życia. Inwestycja zaspokoi potrzeby rodzin z dziećmi, singli, seniorów, a także inwestorów pragnących zabezpieczyć swój kapitał przed inflacją.
W celu redukcji zużycia energii i troski o środowisko, na dachach budynków zainstalowano panele fotowoltaiczne, stanowiące dodatkowe źródło energii.
Zamieszkaj lub zainwestuj w Murapol Osiedlu Ferrovia
Zamieszkanie lub inwestycja w Murapol Osiedlu Ferrovia to gwarancja komfortu. Dzięki Home Management System mieszkańcy mogą zarządzać urządzeniami smart home za pomocą aplikacji mobilnej lub manualnego sterowania, kontrolując temperaturę, zużycie energii czy zawory wody.
Każde mieszkanie na parterze posiada taras z ogródkiem o powierzchni nawet 106 mkw., natomiast mieszkania na wyższych kondygnacjach oferują nawet trzy przestronne balkony przypisane do jednego lokalu. W skład inwestycji wchodzą również wspomniane wcześniej panele fotowoltaiczne oraz odpowiednia liczba zewnętrznych miejsc postojowych na terenie osiedla.
Murapol Osiedle Ferrovia - lokalizacja
Jagodno, ul. Konduktorska
5,1 km do centrum
9 min. spacerem do przystanku autobusowego
6 min. samochodem do przystanku tramwajowego
dojazd do centrum: 20 min samochodem
Istotne punkty w okolicy inwestycjiPrzedszkole (455 m, 6 minut spacerem)
Żłobek (671 m, 9 minut spacerem)
Przystanek autobusowy (679 m, 9 minut spacerem)
Ogólne informacje
| Rodzaj | Na sprzedaż |
|---|---|
| Powierzchnia użytkowa | 89.76 m² |
| Liczba pokoi | 5 |




