5-pokojowy dom 104m2 + ogródek Bez Pośredników
Wielkopolska
Opis
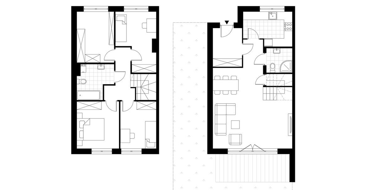
5-pokojowy dom numer M 26 w Inwestycji Koninko (domy) Dewelopera Akropol Inwestycje
Miejsce postojowe w cenie
Jezioro Koninko (2 minuty spacerem)
Jezioro Kórnickie (14 minut samochodem)
Przystanek autobusowy (6 minut spacerem)
Stacja PKP "Gądki" (5 minut samochodem)
Biedronka (7 minut samochodem)
Koninko (domy) - poznaj inwestycję
Inwestycja Koninko (domy) składa się z lokali 4-pokojowych i 5-pokojowych o powierzchniach od 86 do 124 mkw. Mieszkanie 4-pokojowe posiada salon z aneksem, wc, pomieszczenie gospodarcze oraz 3 sypialnie i łazienkę na piętrze. Natomiast mieszkanie 5-pokojowe posiada salon z aneksem kuchennym, wc, pomieszczenie gospodarcze oraz 4 sypialnie i łazienkę na piętrze. Każdy lokal ma własny, wyodrębniony ogródek, a także miejsce postojowe w cenie. Dla najmłodszych został przygotowany plac zabaw.
Koninko (domy) - lokalizacja
Na południe od Poznania, ul. Radiowa, Koninko
1,6 km do granicy miasta
7 min. spacerem do przystanku autobusowego
dojazd do centrum: 24 min samochodem
Istotne punkty w okolicy inwestycjiPrzystanek autobusowy (530 m, 7 minut spacerem)
Przedszkole (709 m, 9 minut spacerem)
Apteka (748 m, 10 minut spacerem)
Ogólne informacje
| Rodzaj | Na sprzedaż |
|---|---|
| Powierzchnia użytkowa | 104.27 m² |
| Liczba pokoi | 5 |




