5-pokojowy dom 144m2 + ogródek Bez Prowizji
Kraków, Małopolskie
Opis
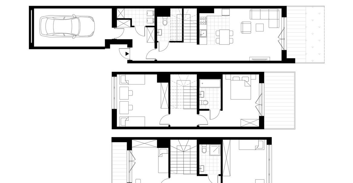
5-pokojowy dom numer 23A_2 w Inwestycji Parkowe Kliny Dewelopera INTER-BUD Developer
Garaż i miejsce postojowe w cenie
Instalacja pod klimatyzację i panele fotowoltaiczne
Las Borkowski (8 minut rowerem)
Przystanek autobusowy (13 minut spacerem)
Lidl (4 minuty samochodem), Lidl (5 minut samochodem)
CH Atut Ruczaj (5 minut samochodem)
Wjazd na A4 (7 minut samochodem)
Park Handlowy Zakopianka, Cinema City (10 minut samochodem)
Parkowe Kliny - poznaj inwestycję
Parkowe Kliny to nowoczesna inwestycja składająca się z domów w zabudowie szeregowej. Osiedle powstaje w południowej części Krakowa, przy ul. Spacerowej, w otoczeniu licznych terenów zielonych.
Domy posiadają elegancką bryłę i duże przeszklenia. W ofercie są 3-kondygnacyjne domy o powierzchni ok. 145 mkw., liczące 5 pokoi.
Każdy dom wyposażony jest w ogródek i przestronny taras na piętrze, garaż i dodatkowe miejsce postojowe na podjeździe.
Standard obejmuje też rozprowadzenie instalacji pod klimatyzację i wyprowadzenie na dach instalacji pod panele fotowoltaiczne.
Parkowe Kliny - lokalizacja
Kliny-Zacisze, ul. Spacerowa
8,3 km do centrum
13 min. spacerem do przystanku autobusowego
6 min. samochodem do przystanku tramwajowego
dojazd do centrum: 20 min samochodem
Istotne punkty w okolicy inwestycjiPiekarnia (239 m, 4 minuty spacerem)
Przedszkole (686 m, 10 minut spacerem)
Apteka (904 m, 12 minut spacerem)
Lekarz (910 m, 12 minut spacerem)
Przystanek autobusowy (895 m, 13 minut spacerem)
Weterynarz (999 m, 14 minut spacerem)
Ogólne informacje
| Rodzaj | Na sprzedaż |
|---|---|
| Powierzchnia użytkowa | 144.40 m² |
| Liczba pokoi | 5 |




