6-pokojowy dom 123m2 + ogródek Bezpośrednio
Warszawa, Mazowieckie
Opis
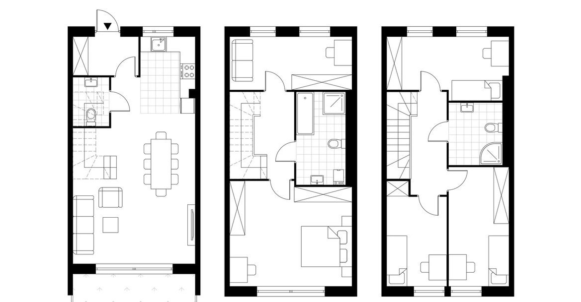
6-pokojowy dom numer 1 w Inwestycji Kadetów Las Dewelopera HUS Development
Domy trzypoziomowe (parter + dwa piętra)
Duże przeszklenia, solidne ogrodzenie
Ogrzewanie podłogowe w całym domu
Lasek Wawerski (15 min pieszo)
Przystanek autobusowy (1 min pieszo)
Kadetów Las - poznaj inwestycję
Kameralny charakter i prywatność
Inwestycja składa się tylko z 5 lokali w zabudowie szeregowej: dwa bliźniaki oraz segment skrajny – co sprzyja bardziej kameralnej atmosferze.
Teren inwestycji będzie ogrodzony, a w lokalach zamontowane wideofony, co zwiększa poczucie bezpieczeństwa i prywatności dla mieszkańców.
Funkcjonalność i nowoczesność w architekturze
Każdy dom to trzy kondygnacje (parter + dwa piętra), z przejrzystym podziałem funkcji: strefa dzienna na parterze, część prywatna na piętrach.
Duże przeszklenia zapewniają dobre doświetlenie wnętrz.
Standard techniczny: kanalizacja, ogrzewanie gazowe – podłogowe w całym domu.
Możliwość adaptacji poddasza jako dodatkowej powierzchni (magazyn, pomieszczenie pomocnicze) – co daje elastyczność w wykorzystaniu przestrzeni.
Przestrzeń na świeżym powietrzu
Każdy dom posiada ogród o powierzchni od 44,10 m² do 222,15 m²
Bliskość terenów zielonych — osiedle usytuowane jest w dzielnicy Wawer, obok Lasu Wawerskiego oraz w sąsiedztwie Kanału Zagóździańskiego i Zakola Wawerskiego, co sprzyja spacerom, relaksowi i kontaktowi z naturą.
Dogodna lokalizacja i infrastruktura
Przystanek komunikacji miejskiej znajduje się ok. 400 m od osiedla, co ułatwia codzienne podróże.
W okolicy pełna infrastruktura: sklepy (Biedronka, Lidl, Kaufland, Aldi), apteki (Dr.Max, Gemini, Namex) i punkty usługowe.
Edukacja blisko domu: szkoły podstawowe (m.in. nr 109, 86, 312), placówki prywatne jak Dwujęzyczna Szkoła Podstawowa Academy International, przedszkola i żłobki.
Pomimo zielonego otoczenia, komunikacja z centrum Warszawy jest wygodna (PKP, autobusy) – łącząc spokój z dostępnością do usług miejskich.
Termin realizacji i status
Planowany termin oddania inwestycji: I kwartał 2026,jednak w przypadku, gdy chcieliby Państwo się zdecydować także na wykończenie pod klucz, które posiadamy w swojej ofercie, istnieje możliwość odbioru domu gotowego, już wykończonego w tym terminie.
Obsługa i komfort dla klienta
Oferujemy transparentne zasady – nie pobieramy opłat administracyjnych za obsługę nieruchomości (po przekazaniu lokalu).
Możliwość wykończenia domu „pod klucz” – czyli wszystkie prace aranżacyjne i wykończeniowe zostaną wykonane za klienta, by mógł się od razu wprowadzić.
Zapewniamy wsparcie w pozyskaniu finansowania przy procedurach kredytowych, natomiast w przypadku, gdy chcieliby Państwo sprzedać obecną nieruchomość na rzecz zakupu domu w naszej inwestycji, istnieje możliwość odroczenia harmonogramu płatności na czas sprzedaży, tak, by proces zakupu przeszedł jak najbardziej bezstresowo i bezpiecznie.
Podsumowanie:
Tylko 5 domów – dwa bliźniaki i segment skrajny.
Powierzchnie od 123 m² do 147 m² powierzchni użytkowej – trzy kondygnacje z wyraźnym podziałem stref.
Poddasze nieużytkowe z większą przestrzenią do magazynowania
KANALIZACJA ORAZ OGRZEWANIE GAZOWE MIEJSKIE
Duże przeszklenia i jasne wnętrza z ogrzewaniem podłogowym w standardzie.
Nowoczesne instalacje: przygotowanie pod system alarmowy i fotowoltaikę, światłowód.
Przestronne ogrody – od 44 m² do nawet 222 m²
Zadaszone miejsca postojowe
Ogrodzone, bezpieczne osiedle.
Blisko lasów, kanałów i terenów spacerowych, a także szkół, sklepów i stacji PKP.
W przypadku domu nr 1 istnieje możliwość wykonania furtki lub bramy od strony ogrodu, co pozwala na wygodny podjazd i jeszcze większą swobodę w korzystaniu z przestrzeni wokół domu. To rozwiązanie daje poczucie prywatności i ułatwia codzienne funkcjonowanie.
Kadetów Las - lokalizacja
Wawer, ul. Kadetów
8,2 km do centrum
2 min. spacerem do przystanku autobusowego
4 min. samochodem do stacji kolejowej
4 min. samochodem do stacji SKM
dojazd do centrum: 20 min samochodem
Istotne punkty w okolicy inwestycjiPrzystanek autobusowy (133 m, 2 minuty spacerem)
Ogólne informacje
| Rodzaj | Na sprzedaż |
|---|---|
| Powierzchnia użytkowa | 123.61 m² |
| Liczba pokoi | 6 |




