6-pokojowy dom 140m2 + ogródek Bezpośrednio
Mazowieckie
Opis
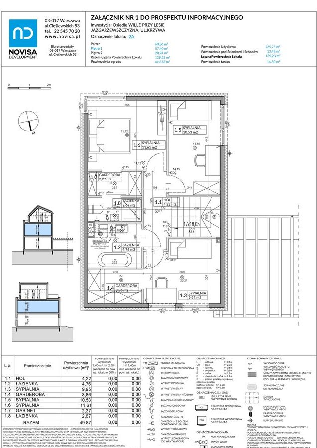
6-pokojowy dom numer 2A w Inwestycji Wille przy Lesie Dewelopera Novisa Development
Ogrzewanie podłogowe
Tarasy na dachu
Górki Szymona (8 minut samochodem)
Przystanek autobusowy (7 minut spacerem)
Biedronka (5 minut samochodem)
Centrum Handlowe Janki, IKEA, Cinema City (20 minut samochodem)
Wjazd na S7 (7 minut samochodem)
Wille przy Lesie - poznaj inwestycję
Wille przy Lesie to prestiżowe osiedle składające się z 28 wolnostojących domów, zaprojektowane dla osób, które cenią sobie luksus i życie blisko natury. Zlokalizowane w malowniczej Jazgarzewszczyźnie przy ulicy Krzywej, zapewnia szybki dojazd do centrum Warszawy w około 35 minut. Nowoczesny projekt łączy innowacyjny design z ekologicznymi rozwiązaniami, oferując komfort na najwyższym poziomie.
Oddanie kluczy planowane jest na IV kwartał 2026 roku.
Przestrzeń zaprojektowana dla komfortu
Każdy z domów oferuje przestronną przestrzeń mieszkalną o powierzchni od 138 do 144 m², rozłożoną na trzech kondygnacjach. To idealne rozwiązanie dla rodzin, które poszukują komfortu i funkcjonalności. Domy charakteryzują się dużymi przeszkleniami, wysokimi sufitami oraz jasnymi wnętrzami. Do każdego domu przynależy również prywatny ogród o powierzchni od 97 do 336 m² oraz taras na dachu, które oferują możliwość odpoczynku z pięknym widokiem.
Wszystkie domy są wyposażone w pompy ciepła oraz system ogrzewania podłogowego, aby zapewnić maksymalny komfort termiczny i zminimalizować straty ciepła. W inwestycji zastosowano energooszczędne okna oraz starannie dobrano materiały wykończeniowe, co gwarantuje niskie koszty eksploatacyjne. To doskonały wybór dla osób ceniących ekologię i oszczędność.
Blisko natury, blisko miasta
Osiedle usytuowane jest w bezpośrednim sąsiedztwie lasów i chronionych terenów zielonych, co sprzyja zdrowemu stylowi życia. Bliskość Parku Chojnowskiego oraz Zalewu w Żabieńcu oferuje mieszkańcom możliwość aktywnego wypoczynku na świeżym powietrzu. Pomimo zacisznej lokalizacji, osiedle ma doskonały dostęp do infrastruktury miejskiej – przedszkoli, szkół oraz punktów handlowo-usługowych.
Dojazd do Piaseczna zajmuje zaledwie 10 minut, a dzięki rozbudowanej sieci komunikacyjnej, do centrum Warszawy można dotrzeć w około 35 minut. To idealne rozwiązanie dla osób pracujących w stolicy i chcących korzystać z jej uroków, zachowując przy tym bliskość natury oraz kameralny charakter miejsca zamieszkania.
Wille przy Lesie to idealne miejsce dla tych, którzy poszukują idealnego balansu między luksusem a życiem w harmonii z naturą. Wysoki standard wykończenia, unikalne rozwiązania architektoniczne i piękne otoczenie gwarantują, że każdego dnia mieszkańcy mogą cieszyć się komfortem życia w tym wyjątkowym miejscu.
Wille przy Lesie - lokalizacja
Na południe od Warszawy, ul. Krzywa, Jazgarzewszczyzna
4,0 km do granicy miasta
8 min. spacerem do przystanku autobusowego
7 min. samochodem do stacji kolejowej
7 min. samochodem do stacji SKM
dojazd do centrum: 25 min samochodem
Istotne punkty w okolicy inwestycjiPrzystanek autobusowy (535 m, 8 minut spacerem)
Przedszkole (916 m, 13 minut spacerem)
Ogólne informacje
| Rodzaj | Na sprzedaż |
|---|---|
| Powierzchnia użytkowa | 140.89 m² |
| Liczba pokoi | 6 |




