Apartament w willowym zaciszu Orłowa
Gdynia, Pomorskie
Opis
APARTAMENT W CENTRUM ORŁOWA
Gdynia Orłowo | Modernistyczna willa | Wysoki standard budynku | Fitness&SPA |
*****
O BUDYNKU:
Kameralna inwestycja z 2024 roku, składająca się z zaledwie 6 lokali. Budynek posiada trzy kondygnacje, windę i podziemną halą garażową. Jego architektura nawiązuje do gdyńskiego modernizmu łącząc tradycję z nowoczesnym designem części wspólnych. Budynek wyposażony będzie także w strefę SPA&Fitness z sauną i siłownią, a teren dookoła budynku wypełniony został roślinnością.
ROZKŁAD POMIESZCZEŃ:
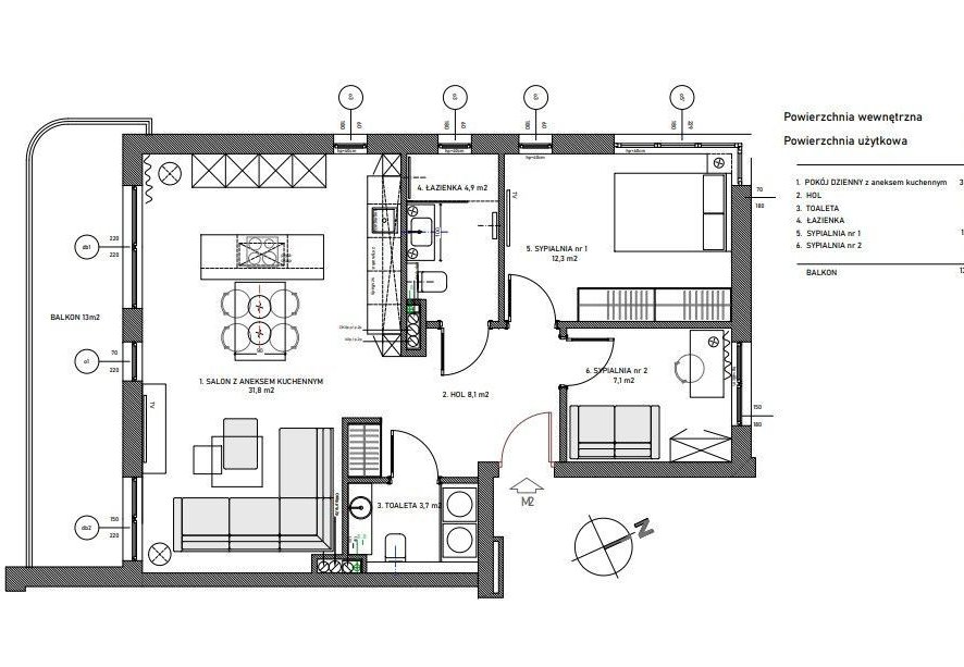
Ofertowany apartament składa się z:
* salonu z aneksem kuchennym (możliwość wydzielenia kolejnego małego pomieszczenia).
* dwóch sypialni,
* dwóch łazienek,
* korytarza
Z salonu wyjście na piękny, 13 metrowy balkon. Możliwość wydzielenia czwartej sypialni.
LOKALIZACJA:
Orłowo to nadmorska dzielnica Gdyni od lat ciesząca się powodzeniem wśród turystów z całego kraju. Zabudowa dzielnicy składa się głównie z wilii przed- i powojennych oraz budynków jednorodzinnych i niskiego budownictwa wielorodzinnego poprzetykanego licznymi pasami zieleni, których na Orłowie nie brakuje. Lokalne okoliczności przyrody: plaża, klif, park Quadrille, Kępa Redłowska i Park Kolibkowski cieszą się uznaniem zarówno mieszkańców, jak i przyjezdnych. Nieruchomość znajduje się w odległości 1,5 kilometra od morza, plaży i mola w Orłowie.
INFORMACJE DODATKOWE:
* Do lokalu przynależy komórka lokatorska oraz dwa miejsca postojowe w hali garażowej (dodatkowo płatne - zakup fakultatywny).
Link do strony dewelopera:
Zapraszam na prezentację!
——————————————
KONTAKT:
Filip Olszewski: +48 576 546 000
Przedstawiona wyżej oferta nie jest ofertą handlową w rozumieniu przepisów prawa, lecz ma charakter informacyjny. Partners International dokłada starań, aby treści przedstawione w naszych ofertach były aktualne i rzetelne. Dane dotyczące ofert uzyskano na podstawie oświadczeń Sprzedających.
Jako biuro nieruchomości pobieramy za usługę pośrednictwa wynagrodzenie w formie prowizji.
——————————————
CONTACT:
Filip Olszewski: +48 576 546 000
Outlined above proposal is not a commercial offer for the purposes of the law but is informative. All data relating to real estate was obtained on the basis statements of the Sellers.
As a real estate agency we charge a commission.
——————————————
APARTMENT IN THE HEART OF ORŁOWO
Gdynia Orłowo | Modernist Villa | High Standard Building | Fitness & SPA
*****
ABOUT THE BUILDING:
An intimate development from 2024, consisting of only 6 units. The building has three floors, an elevator, and an underground garage hall. Its architecture refers to Gdynia’s modernism, combining tradition with modern design in the common areas. The building will also be equipped with a SPA & Fitness zone with a sauna and gym, and the area around the building has been filled with greenery.
ROOM LAYOUT:
The offered apartment consists of:
* a living room with a kitchenette (possibility to create an additional small room),
* two bedrooms,
* two bathrooms,
* a hallway.
From the living room, there is access to a beautiful 13 m² balcony. There is also the possibility to create a fourth bedroom.
LOCATION:
Orłowo is a seaside district of Gdynia that has enjoyed popularity among tourists from all over the country for years. The district’s buildings mainly consist of pre- and post-war villas, as well as single-family homes and low-rise multi-family buildings interspersed with numerous green belts, of which Orłowo has no shortage. Local natural attractions — the beach, the cliff, Quadrille Park, Kępa Redłowska, and Kolibkowski Park — are appreciated by both residents and visitors. The property is located 1.5 kilometers from the sea, the beach, and the pier in Orłowo.
ADDITIONAL INFORMATION:
The apartment includes a storage unit and two parking spaces in the underground garage (available for an additional fee — optional purchase).
I invite you to a viewing!
Ogólne informacje
| Rodzaj | Na sprzedaż |
|---|---|
| Powierzchnia użytkowa | 69.01 m² |
| Piętro | 1 |
| Liczba pokoi | 3 |




