Bezpośrednio | Dom 146 m² z ogrodem | Kraków-Swoszowice | Super układ
Kraków, Małopolskie
Opis
Sprzedam nowoczesny i funkcjonalny dom jednorodzinny w zabudowie bliźniaczej z 2016 roku. Świetny rozkład. Stan domu – bardzo dobry – gotowy do zamieszkania - oszczędność ok. 400 tys. zł na wykończeniu względem stanu deweloperskiego. Dom położony w zielonej i spokojnej części Krakowa – Swoszowicach.
Oferta bezpośrednia od właściciela (bez prowizji - oszczędzasz ok. 50 tys zł).
KLUCZOWE PARAMETRY:
Powierzchnia użytkowa z garazem w bryle budynku: 146 m² (zgodnie z aktem notarialnym). Powierzchnia bez garazu i schowka 124 m²
Powierzchnia działki: 382 m² (w całości ogrodzona, brama ręczna stalowa).
Stan techniczny: Budynek murowany (pustak ceramiczny), ocieplony, wykończony w podwyższonym standardzie, posiada świadectwo energetyczne. Dom jest jasny i dobrze ocieplony, okna PCV.
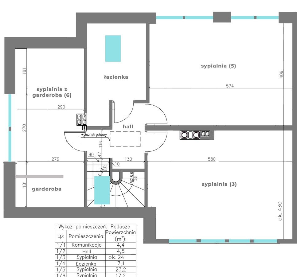
ROZKŁAD POMIESZCZEŃ:
Parter (część dzienna + gospodarcza):
Przestronny salon z jadalnią (>30 m²) z wyjściem na taras.
Jasna kuchnia (8,5 m²) z narożnym oknem i zabudową na zamówienie.
Łazienka/Toaleta oraz wiatrołap i przedpokój.
Garaż w bryle budynku (23 m²) z bramą na pilota oraz dodatkowe pomieszczenie gospodarcze.
Piętro (strefa prywatna – ok. 80 m²):
Trzy ustawne sypialnie o powierzchniach: 23 m², 24 m² oraz 17,5 m² (sypialnia z wydzieloną garderobą).
Łazienka (ok. 7,1 m²) wyposażona w wannę oraz prysznic.
Strych: dodatkowa przestrzeń składowa nad całą powierzchnią piętra.
STANDARD WYKOŃCZENIA I MEDIA:
Wnętrza: Schody i parapety dębowe, wysokiej jakości panele podłogowe, sprzęt AGD renomowanych marek, wysokiej jakości zabudowa meblowa na wymiar (kuchnia, łazienki, garderoba, szafa wnękowa)
Ogrzewanie: Gazowe (piec dwufunkcyjny z zasobnikiem ciepłej wody), dodatkowo ogrzewanie podłogowe w wybranych strefach.
Media: Kanalizacja miejska, woda, prąd, gaz, siła, możliwość przyłącza światłowodowego, domofon
ZAGOSPODAROWANIE TERENU:
Podjazd oraz taras wyłożone kostką brukową (miejsce postojowe dla 2 samochodów).
Oświetlenie zewnętrzne w ogrodzie LED 12V.
Ogród w pełni zagospodarowany (nasadzenia: tuje, magnolie, rododendrony, róże).
LOKALIZACJA I KOMUNIKACJA:
Infrastruktura: Przystanek autobusowy, paczkomat i sklep – 100 m. W pobliżu szkoły, przedszkola, żłobek, Park Uzdrowiskowy i Centrum Swoszowic.
Dojazd: Błyskawiczny dostęp do ul. Myślenickiej i obwodnicy Krakowa. Dojazd do CH Zakopianka lub Bonarka zajmuje ok. 10 minut.
DODATKOWE INFORMACJE
Pełna własność, odrębna KW
Termin przekazania: do uzgodnienia.
Ruchome elementy wyposażenia: do uzgodnienia
Koszty eksploatacyjne: gaz (w tym ogrzewanie i ciepła woda średnio ok. 481 zł miesiecznie w 2025), prąd, woda - według zużycia
Podane powierzchnie na rzutach wedlug wlasnych obmiarów
Cena: 1 589 000 PLN
Zapraszam do kontaktu i na prezentację nieruchomości.
Nota prawna: Niniejsze ogłoszenie ma charakter informacyjny i nie stanowi oferty handlowej w rozumieniu przepisów Kodeksu Cywilnego. Dane w nim zawarte mają charakter poglądowy i mogą ulec zmianie.
English:
Modern and functional semi-detached house for sale (built in 2016).
Condition: Excellent / Ready to move in.
Key Advantage: Save approx. 400,000 PLN on finishing and interior costs compared to a developer's standard shell.
Location: Situated in a green and peaceful part of Krakow – Swoszowice.
Direct Sale by Owner: No commission fees – save approx. 50,000 PLN.
KEY DETAILS
Usable area: 146 m² (as per the notarial deed).
Plot size: 382 m² (fully fenced, manual steel gate).
Technical condition: Solid brick house (ceramic blocks), insulated, finished to a higher standard, with an energy performance certificate. Bright and well-insulated interior, PVC windows.
LAYOUT
Ground floor (living + utility area):
Spacious living room with dining area (over 30 m²) with access to the terrace.
Bright kitchen (8.5 m²) with a corner window and custom-made cabinetry.
Bathroom/WC, vestibule and hallway.
встроbuilt-in garage (23 m²) with remote-controlled door + additional utility/storage room.
First floor (private area – approx. 80 m²):
Three well-proportioned bedrooms: 23 m², 24 m², and 17.5 m² (the 17.5 m² bedroom includes a separate walk-in wardrobe area).
Bathroom (approx. 7.1 m²) with bathtub and shower.
Attic: additional storage space over the entire first-floor area.
FINISHING STANDARD & UTILITIES
Interiors: oak stairs and window sills, high-quality floor panels, branded household appliances, premium bespoke built-in furniture (kitchen, bathrooms, wardrobe, built-in closet).
Heating: gas (combi boiler with hot water tank), plus underfloor heating in selected areas.
Utilities: city sewage system, water, electricity, gas, three-phase power, possibility to connect fiber optic internet, intercom.
OUTDOOR AREA
Driveway and terrace finished with paving stones (parking space for 2 cars).
Outdoor garden lighting (12V LED).
Fully landscaped garden with plantings: thuja, magnolias, rhododendrons, roses.
LOCATION & TRANSPORT
Infrastructure: bus stop, parcel locker and shop — 100 m. Nearby: schools, kindergarten, nursery, Spa Park and Swoszowice Center.
Access: quick connection to Myślenicka Street and the Kraków ring road. Around 10 minutes to Zakopianka Shopping Center or Bonarka.
ADDITIONAL INFORMATION
Full ownership, separate land and mortgage register (KW).
Handover date: to be agreed.
Movable furnishings/equipment: to be agreed.
Running costs: gas (including heating and hot water) avg. approx. PLN 481/month in 2025, electricity and water according to usage.
Floor areas shown on plans are based on the owner's own measurements.
Price: PLN 1,589,000
Feel free to contact me to arrange a viewing.
Legal notice: This listing is for informational purposes only and does not constitute a commercial offer within the meaning of the Polish Civil Code. The information provided is indicative and may be subject to change.
Ogólne informacje
| Rodzaj | Na sprzedaż |
|---|---|
| Powierzchnia użytkowa | 146 m² |
| Liczba pokoi | 4 |




