Bezpośrednio nowoczesny i elegancki dom blisko PKP| 25 min do Warszawy
Mazowieckie
Opis
[BEZPOŚREDNIO] Nowoczesny Dom | 25 min do Warszawy | Przy Lesie - Międzyborów
Szukasz ucieczki od warszawskiego zgiełku, ale nie chcesz rezygnować z wygód miasta? Ten dom to idealny kompromis między naturą a błyskawicznym dojazdem do stolicy. Szybciej niż z wielu dzielnic Warszawy, dojazd pociągiem do Warszawy Centralnej zajmuje tylko 25 minut.
Zapraszamy do odkrycia nieruchomości, która wyróżnia się na tle typowych inwestycji deweloperskich. Oferujemy ostatni dostępny dom w zabudowie dwulokalowej, zaprojektowany w nowoczesnym stylu z ogromną dbałością o detale. To przestrzeń stworzona dla osób, które szukają jakości "jak dla siebie".
Ważna informacja: Druga połowa domu została już sprzedana! Twoimi sąsiadami będzie młoda, sympatyczna i pomocna rodzina, co zapewni świetną atmosferę od pierwszego dnia.
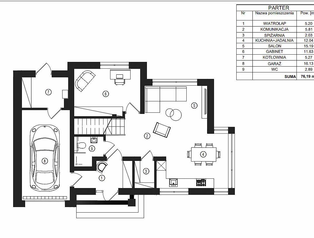
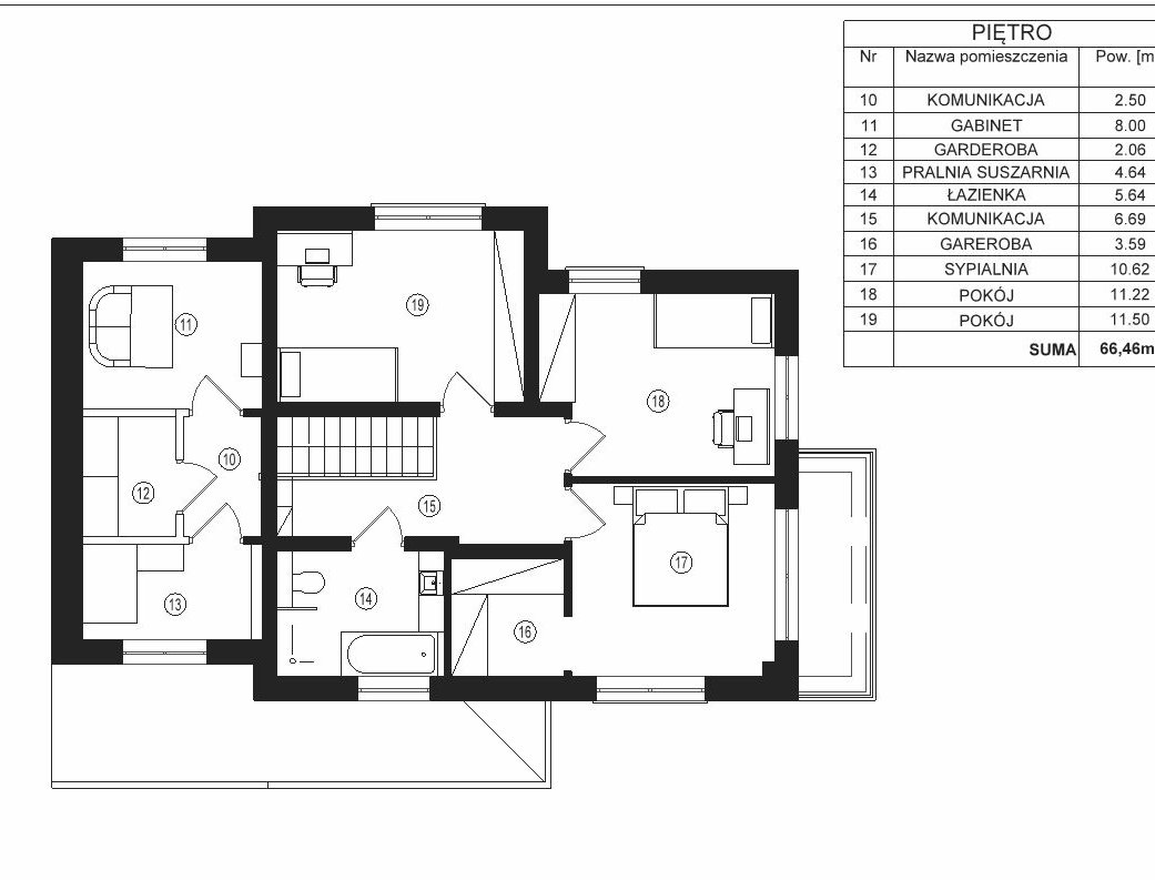
Słońce i Komfort (142 m2)
Lokal posiada idealną ekspozycję południowo-zachodnią, co gwarantuje naturalne słońce w salonie i ogrodzie przez cały dzień. Dom jest wyjątkowo jasny dzięki dużej ilości przeszkleń:
Sypialnie z widokiem: Na piętrze znajdują się trzy sypialnie. Główna (master bedroom) posiada piękny, w pełni przeszklony balkon, idealny na poranną kawę. We wszystkich pozostałych sypialniach zamontowano balkony francuskie ze szklanymi balustradami, które otwierają wnętrza na otaczającą zieleń.
Detale Premium: Bezpieczeństwo i prestiż podkreślają wysokiej jakości drewniane drzwi wejściowe, drewnopodobne lamele elewacji czy szklane balkony
Parkowanie bez zmartwień: Do lokalu przynależy garaż w bryle budynku oraz dwa dodatkowe miejsca parkingowe na terenie posesji – wszystko wliczone w cenę!
Elastyczność aranżacji – Twoja kuchnia, Twój wybór
Jako przyszły właściciel masz wpływ na układ parteru na etapie wykończenia:
Wariant klasyczny: Funkcjonalna kuchnia z oddzielną, praktyczną spiżarnią.
Wariant "Open Space": Możliwość powiększenia kuchni kosztem spiżarni lub przeniesienia jej w miejsce wydzielonego pokoju/gabinetu, co tworzy imponującą, otwartą strefę dzienną łączącą nową kuchnię z salonem.
Zaawansowana Technologia w Standardzie
Zadbaliśmy o to, co najtrudniejsze – wszystkie instalacje podtynkowe są już gotowe:
Klimatyzacja i Rekuperacja: Kompletna instalacja pod klimatyzację (5 punktów) oraz system wentylacji mechanicznej (rekuperacja).
Ogrzewanie: Ogrzewanie podłogowe w całym domu, piec gaz ziemny
Smart & Security: Rozprowadzone okablowanie pod monitoring CCTV, pełny system alarmowy (czujniki zalania i gazu) oraz sieć LAN i światłowód, automatyka garażowa i wjazdowa, videodomofon., ładowarka do auta elektrycznego
Ogród: Przygotowana instalacja pod nawodnienie i oświetlenie ogrodu, wydzielona strefa dla lokalu, przygotowany trawnik.
Lokalizacja: Natura i Szybki Dojazd
Otoczenie: Dom przy drodze asfaltowej i ścieżce rowerowej, w sąsiedztwie lasów.
Szybka komunikacja: 900 m do stacji PKP Międzyborów. Z PKP Żyrardów (1,5 km) pociąg dociera do centrum Warszawy w zaledwie 25 minut.
Infrastruktura: Szkoły, przedszkola i sklepy w zasięgu 1 km. Park wodny Suntago – 11 km, Zalew Żyrardowski - 2,5 km.
Dane techniczne:
Działka: Przynależna do lokalu o powierzchni około 370 m2.
Media: Pełne media miejskie: woda, kanalizacja, gaz ziemny, światłowód.
Wykończenie: Możliwość zaprojektowania i realizacji wykończenia wnętrz "pod klucz" w cenie od 1150 zł/m2. Nasz partner oferuje 4 pakiety cenowe.
Oferta bezpośrednia . Budujemy powierzchnie, w których sami chcielibyśmy zamieszkać. Zapraszamy na prezentację tego słonecznego domu!
Ogólne informacje
| Rodzaj | Na sprzedaż |
|---|---|
| Powierzchnia użytkowa | 142 m² |
| Liczba pokoi | 7 |




