Bliźniak 117m2,KOMINEK,działka 211m2,Duży Salon,2 miejsca parkingowe
Mazowieckie
Opis
Sprzedam bezpośrednio nowoczesny, nowy wygodny budynek bliźniaczy w stanie deweloperskim z kominkiem w salonie ''w bliskich'' Markach k/Warszawy, ul. Zachodnia.
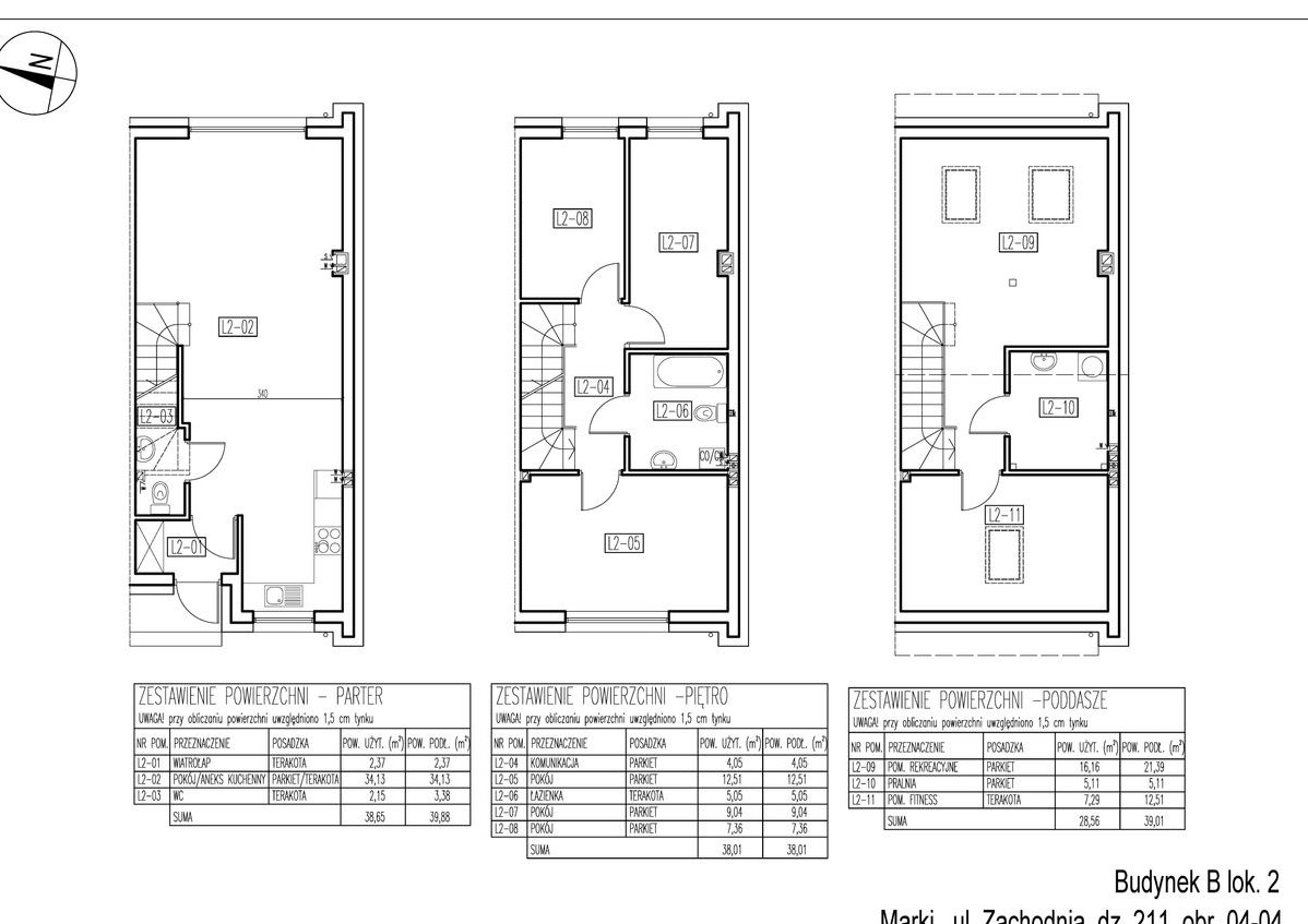
Jeden bliźniak to rozsądnie zaprojektowane 117 m2 powierzchni całkowitej.
Parkowanie samochodów na 2 miejscach parkingowych.
Dodatkowo wielkość ,oraz usytuowanie terenu zewnętrznego sprawia, że mamy spore możliwości adaptacyjne.
Działki 210 - 215m2
Bardzo dobre ustawienie budynków na kierunki świata: wschód/południe/zachód
W niedalekiej odległości Szkoła Podstawowa , Przedszkole , Komunikacja , Biedronka ,Apteki, Poczta , Bank , M1,CH Targówek ,Metro Kondratowicza ,Rezerwat przyrody Las ,Ścieżki piesze i rowerowe i wiele innych atrakcyjnych usług w dyspozycji przyszłych mieszkańców.
Dojazd do nieruchomości bezpośrednio drogą gminną asfaltową ,oświetloną.
Powierzchnię rozsądnie podzielono na 3 strefy:
DZIENNĄ, na parterze, która mieści:
*duży ustawny salon z kominkiem, oraz doświetlonym aneksem kuchennym z oknem z bezpośrednim wyjściem do prywatnego ogrodu - duże, panoramiczne okna w salonie wpuszczają do wnętrza dużo światła słonecznego.
* łazienka
* wiatrołap z miejscem na szafę wnękową
SYPIALNĄ, na piętrze, tam znajdują się:
* pokój I,
* pokój II
* pokój III
* łazienka
* korytarz
DODATKOWĄ powierzchnię stanowi poddasze
*pokój I
*pokój II
*łazienka
Komfort użytkowania - sam dbasz o swój dom i wszelkie sprawy związane z jego utrzymaniem. Ogrzewanie gazowe (piec gazowy 2-funkcyjny)
Teren o powierzchni od 211 do 214 m2.
Zdjęcia poglądowe z innego etapu .
Zakup zwolniony jest z opłaty podatku od czynności cywilno-prawnych PCC
Zapraszamy!
Zamieszczone informacje nie stanową oferty w rozumieniu Kodeksu Cywilnego, a dane w nich zawarte mają jedynie charakter informacyjny i mogą ulec zmianie.
Ogólne informacje
| Rodzaj | Na sprzedaż |
|---|---|
| Powierzchnia użytkowa | 117.40 m² |
| Liczba pokoi | 7 |




