Bliźniak w Janowicach • 120m2 • pełne piętro •
Małopolskie
Opis
Twój dom pod Krakowem – styl bawarski, prywatny ogród, wysoki standard!
Twoja przestrzeń pod miastem – elegancki piętrowy dom!
*Zdjęcia w ogłoszeniu przedstawiają przykładowe realizacje inwestora o zbliżonym standardzie wykończenia i mają charakter poglądowy*
Janowice, gmina Wieliczka
Kameralna inwestycja domów w zabudowie bliźniaczej – tylko 2 lokale mieszkalne
Lokalizacja:
Spokojna, zielona okolica w miejscowości Janowice (gmina Wieliczka) z bardzo dobrym dojazdem do Kraków:
Centrum Krakowa – 25 min (ok. 20 km)
Przystanek autobusowy – 3 min pieszo (300 m)
Szkoła podstawowa – 15 min pieszo
Sklep spożywczy – 5 min (500 m)
W pobliżu tereny zielone, las oraz stok narciarski – idealne miejsce dla osób ceniących ciszę, naturę i szybki dostęp do miasta.
Informacje o nieruchomości:
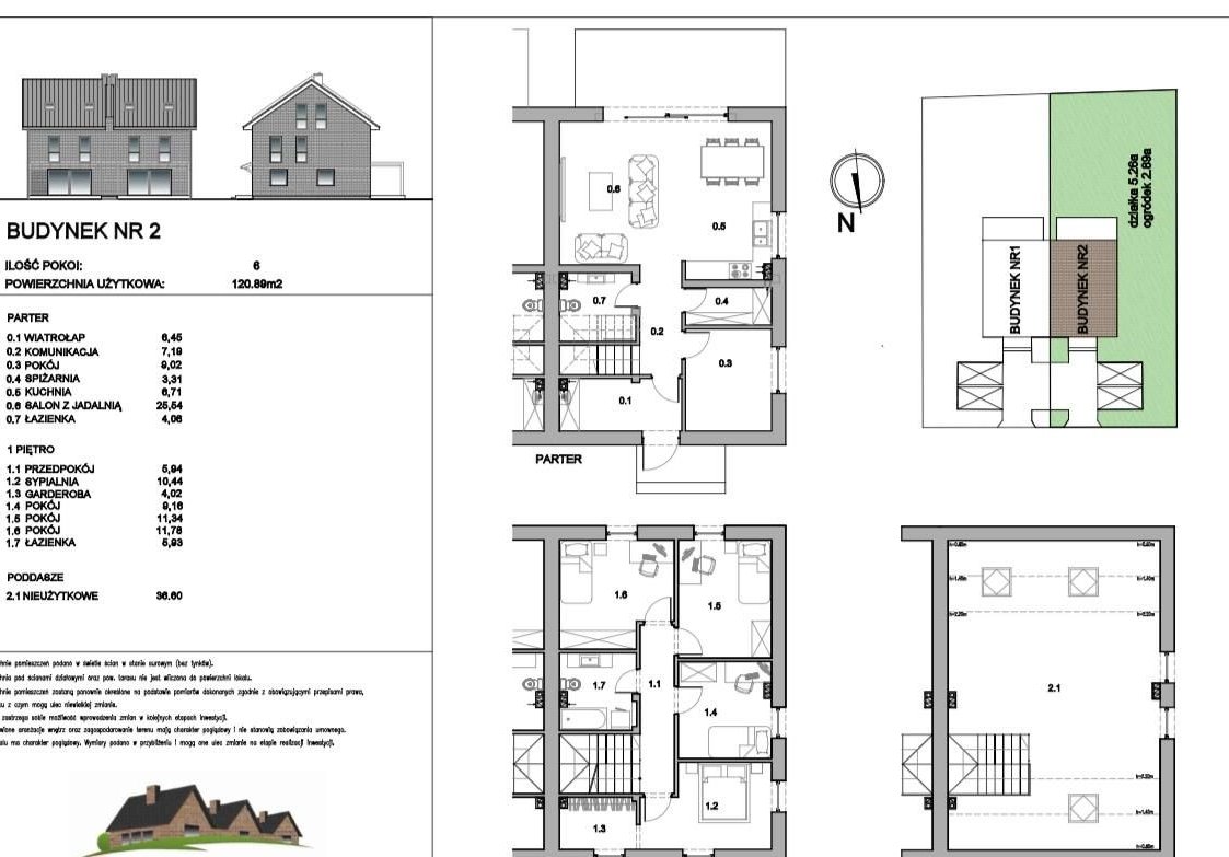
Powierzchnia użytkowa: 120 m²
Zabudowa: bliźniacza
Ogródki: od 280 m² (prywatne, z założoną trawą i tujami)
2 miejsca postojowe naziemne do każdego lokalu
Projekt: parter + piętro + poddasze nieużytkowe
Stan deweloperski z możliwością zmian układu ścian działowych na etapie budowy
Media:
Prąd
Gaz (piec gazowy w cenie)
Własna studnia
Szambo betonowe – 10 m³
Co wyróżnia inwestycję?
Tradycyjna technologia murowana
Strop i schody żelbetowe
Elewacja z ręcznie formowanej belgijskiej cegły
Duże, energooszczędne okna trzyszybowe Drutex
Drzwi balkonowe Drutex, okna dachowe Velux
Ogrzewanie podłogowe na całej powierzchni
Blachodachówka Blachy Pruszyński, dach ocieplony pianą PUR
Możliwość ładowania samochodu elektrycznego
Stan deweloperski obejmuje m.in.:
tynki gipsowe
płyty G-K
puszki i rozdzielnice
przyłącze wody w ogrodzie
Cena:
120 m² powierzchni użytkowej
Prywatny ogród od 280 m²
Cena: 990 000 zł za lokal
Harmonogram:
Rozpoczęcie budowy: 05.02.2026 r.
Zakończenie budowy: 25.06.2026 r.
Oddanie do użytkowania: 01.03.2027 r.
*Inwestycja realizowana w całości ze środków własnych inwestora, co zapewnia stabilność finansową projektu oraz bezpieczeństwo dla kupujących*
Zainteresowanych zapraszamy do kontaktu.
Ogólne informacje
| Rodzaj | Na sprzedaż |
|---|---|
| Powierzchnia użytkowa | 120 m² |
| Liczba pokoi | 5 |




