Bliźniak. Warszawa, przy al. Krakowskiej
Warszawa, Mazowieckie
Opis
Dom w dogodnej, warszawskiej lokalizacji (ul.Słowicza). Do zamieszkania lub dla firmy.
Bez prowizji dla Kupującego.
• Powierzchnia: ok. 210 m2
• Ilość pokoi: 10
• Działka: 455 m2
Lokalizacja: doskonała komunikacja zarówno indywidualna (al. Krakowska, S8, S2) jak i miejska (tramwaj, autobusy, pociąg). Dodatkowym atutem jest bliskość lotniska Okęcie.
Naprzeciwko domu znajdują się zielone tereny sportowe Ośrodka Sportu i Rekreacji, basen, kręgielnia, kort tenisowy. Zaledwie kilka kroków od domu jest kampus Thames British School, liceum oraz technikum lotnicze.
Budynek w zabudowie bliźniaczej, aktualnie przeznaczony na siedzibę firmy, jednak z powodzeniem może także spełniać funkcję domu mieszkalnego. Posadowiony jest na ogrodzonej działce o powierzchni 455 m2. Działka to przede wszystkim trawnik i powierzchnia utwardzona, jednak przy niewielkiej dawce wyobraźni może zamienić się w uroczy ogród.
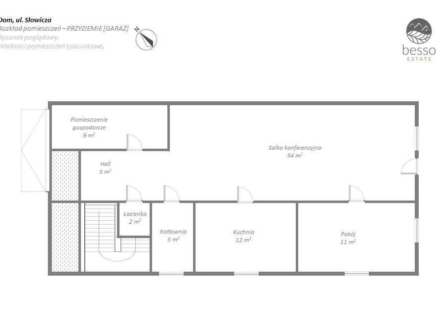
Poziom 0 (ok. 80 m2) – to pierwotnie garaż, aktualnie to przestrzeń wykorzystana na salę konferencyjną oraz z pomieszczenia socjalne, kotłownię, łazienkę i pokój. Posiada wygodne wyjście na stronę ogrodu.
Parter (ok. 55 m2) – znajdziemy tu trzy rozkładowe pokoje z łazienką oraz tarasem od strony ogrodu. Jeden pokój ma ekspozycję północno-zachodnią na ul Słowiczą. Dwa pozostałe pokoje z widokiem od strony ogrodu, z największego wyjdziemy na taras. Na tym poziomie znajduje się także łazienka, hall i wiatrołap.
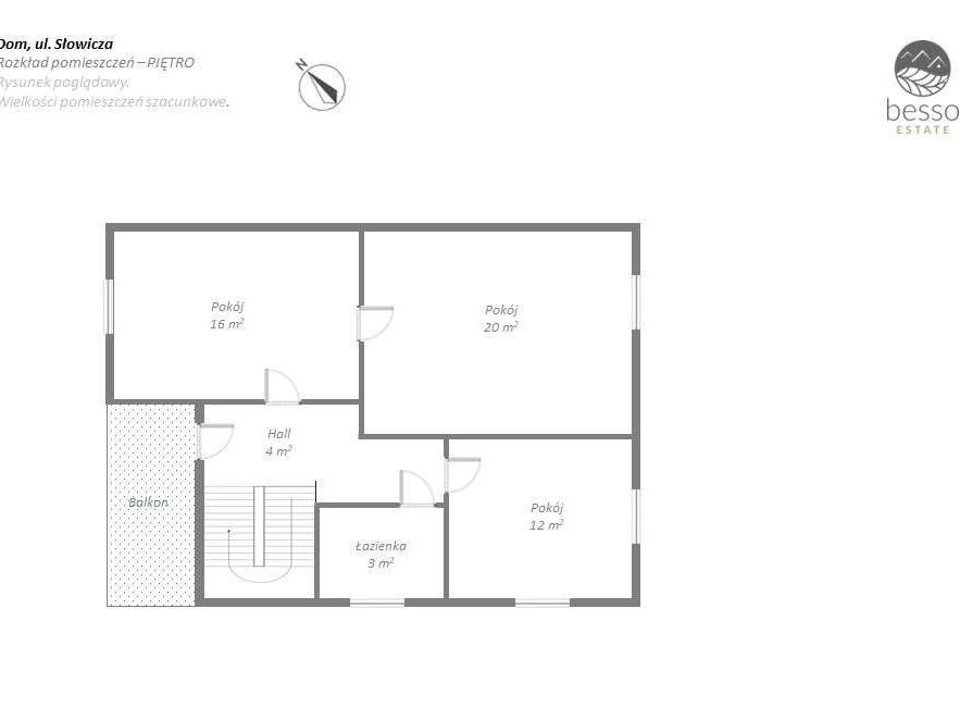
Piętro (ok. 55 m2) zaprasza nas trzema pokojami, hallem, balkonem oraz łazienką.
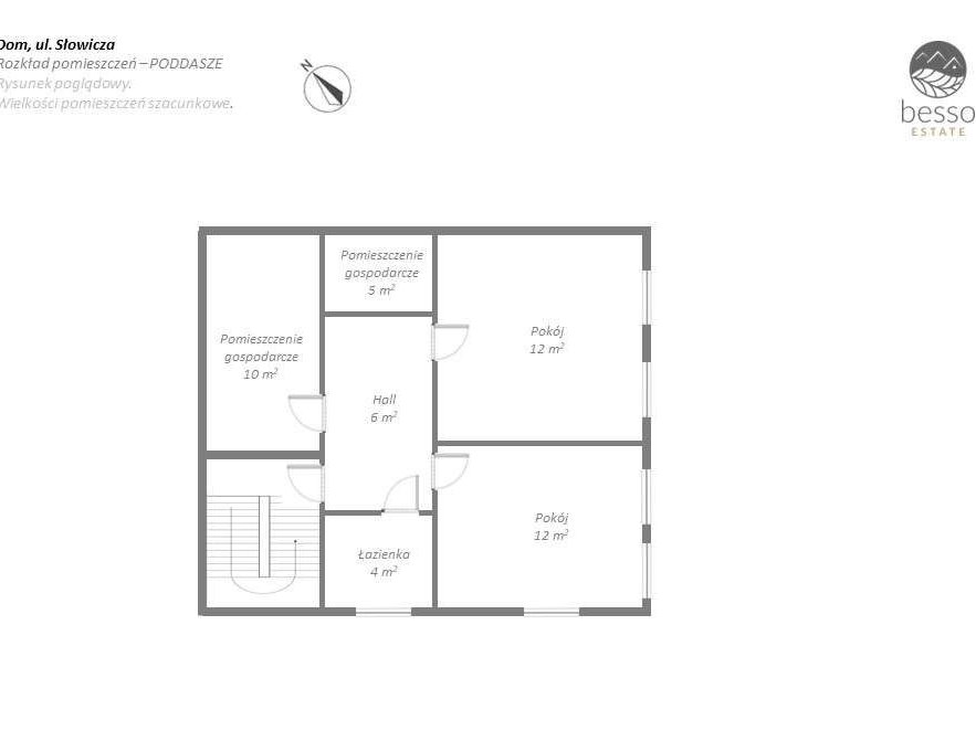
Poddasze (ok. 50 m2) to funkcjonalna przestrzeń, na której znajdują się cztery pomieszczenia o wysokości ok 2.13 m (ze spadami), hall oraz łazienka.
Miejsca parkingowe: garaż aktualnie służy jako pomieszczenia domowe, mieszkańcy parkują swoje samochody od strony ogrodu korzystając wygodnego z dojazdu z boku domu.
Zakup domu, niezależnie czy dla celów własnych czy inwestycyjnie, jest jedną z ważniejszych życiowych decyzji. Wnętrze prawie każdego budynku możemy zaaranżować w sposób, który spełni nasze wymagania, ale to wybór odpowiedniej lokalizacji jest kluczowy, żebyśmy przez kolejne lata czuli satysfakcję z podjętej decyzji.
Nieruchomość posiada księgę wieczystą i uporządkowane formalności do sprzedaży.
Oferta na wyłączność. Zapraszam do kontaktu w celu uzyskania dodatkowych informacji lub umówienia się na prezentację.
Treść niniejszego ogłoszenia ma charakter informacyjny i nie stanowi oferty handlowej w rozumieniu Kodeksu cywilnego oraz innych przepisów prawa.
Ogólne informacje
| Rodzaj | Na sprzedaż |
|---|---|
| Powierzchnia użytkowa | 210 m² |
| Liczba pokoi | 10 |




