Bliźniak Wolica 116m 6-pokoi(brak skosów)
Kalisz, Wielkopolska
Opis
Opis
Polecamy do kupna domy w zabudowie bliźniaczej z rynku pierwotnego
zlokalizowane w Wolicy .
budynek z rynku pierwotnego bez podatku PCC i prowizji biura.
Termin oddania budynków I kwartał 2026r
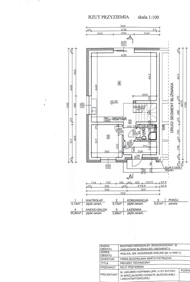
W skład budynku wchodzą: 6-pokoi i 2-łazienki ( brak skosów )
Parter
- salon z aneksem kuchennym
- pokój
- łazienka
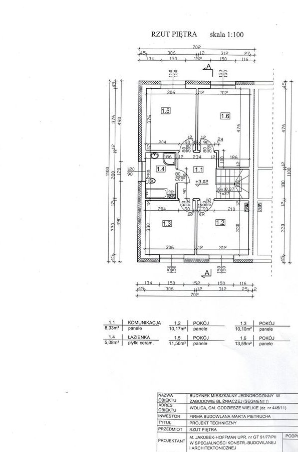
Piętro
- cztery sypialnie
- łazienka
Domy budowane są w tradycyjnej technologii , zapewniając komfort i funkcjonalność ,oraz ekonomiczne nakłady na utrzymanie posesji. Lokalizacja osiedla będzie szczególnie atrakcyjna dla osób, które cenią sobie mieszkanie blisko natury z dogodną komunikacją do Kalisza. Wolica i okolice to jedno z atrakcyjniejszych miejsc do zamieszkania w pobliżu Kalisza pod względem szybkości rozwijającej się infrastruktury oraz dostępu do terenów zielonych i rekreacyjnych: Bliskość lasu na Wolicy pozwala w dokonały sposób połączyć miejski styl życia z naturą i czynią tę lokalizację bardzo perspektywiczną.
• Powierzchnia użytkowa domu wynosi 116, 59m2
• Strop teriva
• Ogrzewanie gazowe łącznie z piecem
• Elewacja zewnętrzna
• Tynki wewnętrzne
• Instalacja alarmowa i tv
• Ogrodzenie
• Rolety zewnętrzne
• Działka ok 350m2
Odkryj swoje wymarzone miejsce do życia w urokliwej Wolicy pod Kaliszem, gdzie czeka na Ciebie wyjątkowy dom w zabudowie bliźniaczej. Ta malownicza lokalizacja łączy w sobie spokój wiejskiego otoczenia z wygodą życia blisko miasta.
Twój nowy dom został starannie zaprojektowany, oferując nie tylko komfortowe wnętrza, ale także dostęp do pięknych terenów zielonych i świeżego powietrza. Architektura mieszkania doskonale wpisuje się w malowniczy krajobraz, a przestronny ogród zapewnia prywatną przestrzeń do relaksu i spotkań z bliskimi.
Zlokalizowany w spokojnej okolicy, blisko natury, dom ten to idealne miejsce dla rodzin, które pragną równowagi między spokojem a łatwym dostępem do wszystkich udogodnień miasta. Zachęcamy Cię do odkrycia uroku życia w domu bliźniaczym w Wolicy, gdzie każdy dzień staje się wyjątkowy, a codzienne dojazdy do Kalisza to zaledwie krótka podróż. Zainwestuj w swoje marzenie o spokojnym i wygodnym życiu, mając jednocześnie dostęp do wszystkich udogodnień, jakie oferuje okoliczne miasto. Odkryj Wolicę pod Kaliszem – miejsce, które stanie się Twoim wymarzonym domem.
Zapraszamy na prezentację.
Gwarantujemy pełną obsługę kredytową oraz pomoc w sprzedaży obecnie posiadanej nieruchomości.
Licencja zawodowa nr: 12155 Ewa Smolczyńska
Powyższy opis ma charakter informacyjny i nie stanowi oferty w rozumieniu przepisów Kodeksu Cywilnego
Ogólne informacje
| Rodzaj | Na sprzedaż |
|---|---|
| Powierzchnia użytkowa | 116 m² |
| Liczba pokoi | 6 |




