bliźniak/128 m²/wysoki standard/Żerniki
Wrocław, Dolnośląskie
Opis
Bliźniak w nowym budownictwie.
Trzy poziomy z funkcjonalnym podziałem (parter - strefa dzienna, piętro - sypialnie + łazienka, poddasze - praca + strefa relaksu).
Wysoki standard wykończenia.
Prywatny ogródek.
Garaż i miejsce postojowe.
A wszystko to na rozwijającym się wrocławskim osiedlu Żerniki.
Zapraszam!
LOKALIZACJA I OKOLICA
Bliźniak znajduje się przy ul. Rezedowej na wrocławskich Żernikach w budynku z 2021 roku. W sąsiedztwie nowa zabudowa mieszkaniowa jedno- i wielorodzinna. Kameralnie i bez zgiełku miasta. Nieruchomość jest oddalona od głównych arterii dojazdowych, co daje ciszę i spokój.
Nie oznacza to jednak trudności komunikacyjnych. Szybki dostęp do AOW ułatwia wyjazd z Wrocławia czy też dojazd do centrum miasta.
W dalszej części osiedla Żerniki znajduje się przystanek komunikacji miejskiej oraz stacja PKP Wrocław Żerniki.
Lokalizacja dobra dla rodzin z dziećmi. W tej konkretnej inwestycji stanowią one prawie 100% mieszkańców. Bardzo blisko przedszkole (2 minuty spacerem), szkoła (10 minut spacerem), park (10 minut spacerem). Lokalne i spokojne ulice zachęcają do przemieszczania się rowerem (o czym świadczy ilość rowerów przed przedszkolem i szkołą).
W starszej części Żernik sklepy.
Jeśli zależy Ci na mieszkaniu w spokojnej i cichej okolicy, z infrastrykturą dostosowaną do potrzeb rodziny, a jednocześnie z łatwym dostępem do tego, co miasto oferuje - ZAPRASZAM!
MIESZKANIE I BUDYNEK
Lokal mieszkalny o powierzchni 128,67 m² znajduje się w budynku mieszkalnym jednorodzinnym dwulokalowym w zabudowie bliźniaczej. Brzmi skomplikowanie, ale jest to po prostu niezależna połowa bliźniaka z własnym ogrodem. Budynek znajduje się na zamkniętym osiedlu.
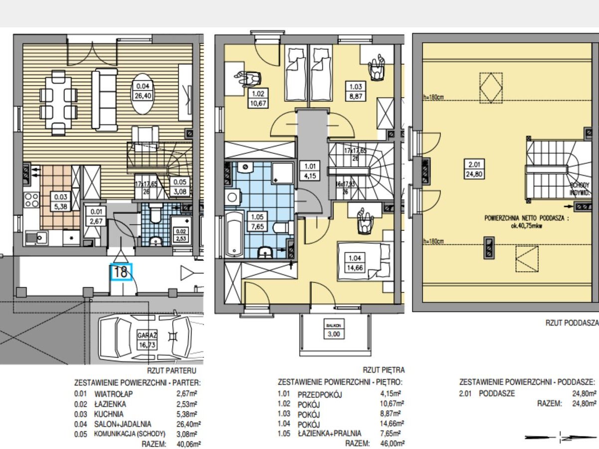
Lokal składa się z trzech kondygnacji:
parter, który stanowi strefę dzienną (salon z aneksem, łazienka, wiatrołap). Wysokość pomieszczeń 2,7 m.
piętro, które stanowi strefę prywatną (duża sypialnia z garderobą, 2 sypialnie dla dzieci, łazienka). Wysokość pomieszczeń 2,6 m.
poddasze, które obecnie jest miejscem pracy oraz relaksu (sauna, łazienka, dużo miejsca na bieżnie, trenażer itd.). Wysokość pomieszczeń 2,6 m.
PARTER [łącznie 40,45 m²]:
wiatrołap [2,70 m²]
łazienka [2,60 m²]
kuchnia [5,43 m²]
salon+jadalnia [26,64 m²]
komunikacja (schody) [3,08 m²]
PIĘTRO [łącznie 46,42 m²]:
przedpokój [4,23 m²]
sypialnia + garderoba [14,87 m²]
sypialnia 1. [10,76 m²]
sypialnia 2. [8,88 m²]
łazienka [7,68 m²]
PODDASZE [łącznie 24,97 m²]
po podłodze [40,75 m²] z tego wydzielona łazienka+pralnia (powierzchnia po podłodze [ok. 9,5 m²] oraz sauna (powierzchnia po podłodze [ok. 4 m²]
Dokładne wymiary oraz układ pomieszczeń na jednym ze zdjęć (stan pierwotny widoczny na rzutach minimalnie różni się od stanu faktycznego, np. na poddaszu wydzielono dodatkową łazienkę).
Do lokalu przynależy garaż o powierzchni [16,83 m²]. Przed wjazdem do garażu możliwość zaparkowania drugiego samochodu.
Dodatkowo do lokalu przynależy zadbany ogród [77 m²].
Nieruchomość gotowa do zamieszkania. Standard wysoki.
W lokalu jest zamontowana klimatyzacja. Na parterze i w łazienkach ogrzewanie podłogowe. Wszędzie w oknach zamontowane moskitiery.
Bardzo dobre nasłonecznienie. Wystawa okien wschód, południe oraz zachód. Ogród od strony zachodniej.
Zachęcam do obejrzenia filmu!!!
Budynek z 2021 roku. Stan budynku bardzo dobry.
Świadectwo energetyczne EP = 80,27 kWh/(m² * rok)
INFORMACJE PRAKTYCZNE
Ogrzewanie gazowe (średni miesięczny koszt z ostatniego roku 395 zł).
Dostęp do wszystkich mediów (gaz, wodociąg, kanalizacja sanitarna i deszczowa, światłowód).
Miesięczny czynsz (zaliczki na wodę, utrzymanie części wspólnych) wynosi 280 zł.
Dodatkowe opłaty to prąd i internet.
Lokal jest zamieszkiwany przez 4 osoby.
Pełna własność. Księga wieczysta bez niespodzianek.
Osoby zainteresowane, zapraszam do kontaktu.
Proszę uszanować prywatność właścicieli, a spotkania umawiać wcześniej przez osobę wskazaną do kontaktu w ogłoszeniu. Dziękuję!
Prowizję pośrednika pokrywa Strona Sprzedająca.
Umowa na wyłączność.
Pośrednik odpowiedzialny zawodowo za wykonanie umowy pośrednictwa: Andżelika Szady – Bakalarczyk (licencja nr 22736).
Andżelika Szady – Bakalarczyk
PARTER PIĘTRO
Ogólne informacje
| Rodzaj | Na sprzedaż |
|---|---|
| Powierzchnia użytkowa | 128.67 m² |
| Liczba pokoi | 5 |




