CENTRUM - 3 Pokojowe Mieszkanie z Potencjałem !
Rzeszów, Podkarpackie
Opis
Biuro Partnerzy Nieruchomości ma przyjemność przedstawić Państwu 3 pokojowe mieszkanie o powierzchni 68,01 m2 zlokalizowane w samym centrum Rzeszowa przy ulicy Leopolda Lisa Kuli.
W ofercie dostępne są zarówno zdjęcia rzeczywiste mieszkania, jak i wizualizacje przedstawiające przykładową aranżację wnętrz po remoncie.
To propozycja idealna zarówno dla osób poszukujących mieszkania dla siebie, jak i inwestorów, którzy docenią potencjał lokalizacji i układu.
Nieruchomość usytuowana jest na 2 piętrze 4 piętrowego bloku z cegły z 1960 roku.
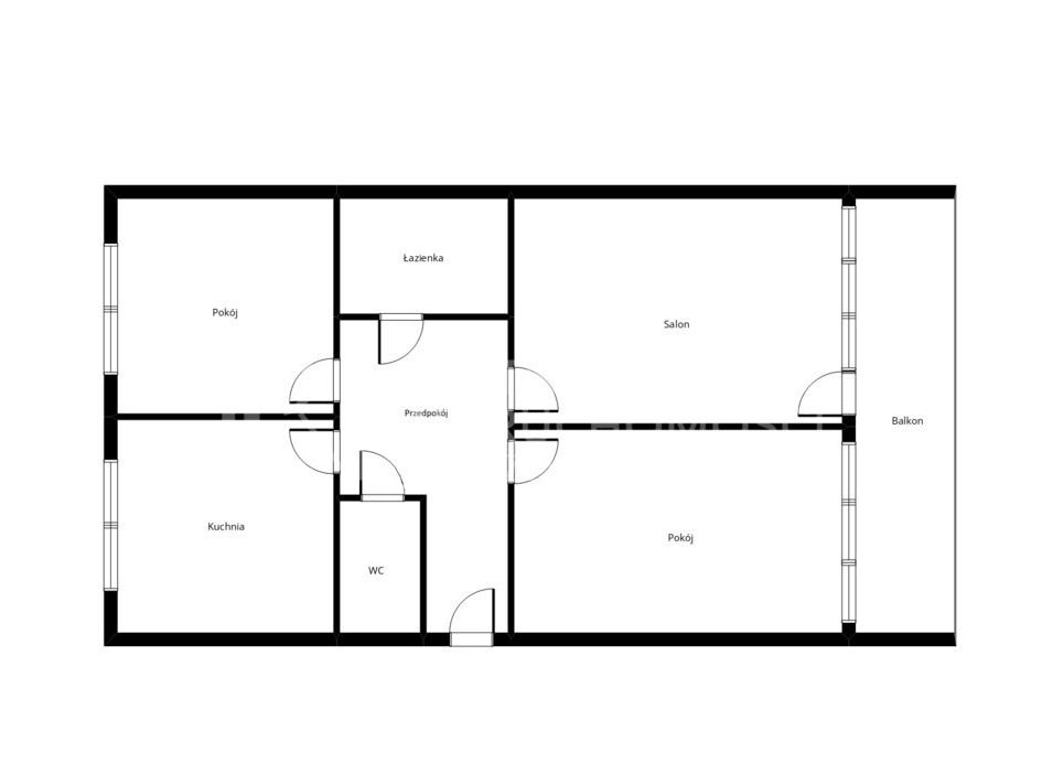
UKŁAD MIESZKANIA:
- przedpokój
- kuchnia
- salon z wyjściem na balkon
- pokój
- pokój
- łazienka
- WC
Do mieszania przynależy piwnica oraz parking ogólnodostępny dla mieszkańców zabezpieczony szlabanem.
Duże okna zapewniają świetne doświetlenie wnętrza, a funkcjonalny układ pozwala na wiele możliwości aranżacyjnych.
Mieszkanie wymaga generalnego remontu, co daje nowemu właścicielowi możliwość zaprojektowania przestrzeni według własnych potrzeb. To idealna propozycja dla osób, które chcą urządzić wnętrze od podstaw lub dla inwestorów planujących wykończenie pod wynajem.
ATUTY NIERUCHOMOŚCI:
- ścisłe centrum miasta
- pełna infrastruktura w zasięgu kilku minut
- funkcjonalny układ
- parking za szlabanem
Dzięki dołączonym wizualizacjom przyszły właściciel może łatwo wyobrazić sobie finalny efekt aranżacji i zaplanować remont jeszcze przed zakupem. To idealna propozycja dla osób szukających mieszkania z potencjałem, w dobrej lokalizacji, które można urządzić dokładnie pod własne potrzeby.
Wizualizacje mają charakter poglądowy i nie stanowią oferty handlowej.
Zapraszamy do kontaktu i prezentacji nieruchomości !
Na rynku wtórnym pobieramy wynagrodzenie z tytułu usługi pośrednictwa w zakupie nieruchomości.
Niniejsze ogłoszenie nie stanowi oferty handlowej w rozumieniu art. 66 §1 Kodeksu Cywilnego oraz innych właściwych przepisów prawnych, a dane w nim zawarte mają jedynie charakter informacyjny.
Oferta wysłana z programu dla biur nieruchomości ASARI CRM ()
Ogólne informacje
| Rodzaj | Na sprzedaż |
|---|---|
| Powierzchnia użytkowa | 68.01 m² |
| Piętro | 2 |
| Liczba pokoi | 3 |




