4-pokojowe mieszkanie numer B.8 na 1. piętrze w budynku B w Inwestycji Kapitanat Dewelopera Budlex100-metrowe tarasy z panoramicznym widokiem na Motł...
- 4 Sypialnie
4-pokojowe mieszkanie numer B.8 na 1. piętrze w budynku B w Inwestycji Kapitanat Dewelopera Budlex100-metrowe tarasy z panoramicznym widokiem na Motł...
1-pokojowe mieszkanie numer A104 na parterze w budynku A1 w Inwestycji Osiedle Kompas Dewelopera PronekoOgrody deszczowe, antysmogowe roślinyPark Fe...
2-pokojowe mieszkanie numer A2.1.7 na 1. piętrze w budynku A2 w Inwestycji OFF Miasto Dewelopera Invest KomfortNowoczesna sala klubowa,strefa fitness...
2-pokojowe mieszkanie numer B.0.1 na parterze w budynku B w Inwestycji ODEApark Dewelopera Yareal Polska5 dwupiętrowych, kameralnych budynków z winda...
Ostatnie mieszkania inwestycyjne w tej lokalizacji.Zakup od dewelopera. Nowe apartamenty-inwestycyjne centrum Gdańska- Śródmieście.Możliwość odlicze...
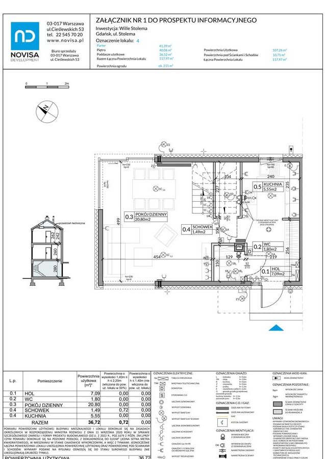
Willa HARMONY PARK typu B-2 została zaprojektowana jako budynek wolnostojący, o zwartej bryle, jednolokalowy, piętrowy, niepodpiwniczony, z poddaszem...
4-pokojowe mieszkanie numer C/M8 na 1. piętrze w budynku C w Inwestycji Unikat Apartamenty II Dewelopera Rutkowski DevelopmentStrefa relaksu, miejsce...
4-pokojowe mieszkanie numer B.20 na 2. piętrze w budynku B w Inwestycji Kapitanat Dewelopera Budlex100-metrowe tarasy z panoramicznym widokiem na Mot...
3-pokojowe mieszkanie numer A.10 na parterze w budynku A w Inwestycji Osiedle Platynowe Dewelopera BudlexSala fitness w obrębie osiedla, kameralna pr...
Zamieszkaj w otoczeniu zieleni – przestronne mieszkanie z ogrodem i pełną prywatnością na pograniczu Moreny i Matemblewa w Gdańsku. Unikatowa nierucho...
Codzienność, która smakuje jak wakacje… każdego dnia.Ten apartament zaczyna się od ciszy.Nie tej absolutnej, ale tej właściwej: przefiltrowanej prz...
Mam przyjemność przedstawić mieszkanie w Gdańsku dzielnica Aniołki.* blisko PG (1,7 km) , GUMed (1,8 km) , AWF(11 km) Stare Miasto (2 km)* dla m...
"Pośrednikom bardzo dziękuję, proszę nie dzwonić!"OpisNa sprzedaż: 4-pokojowe mieszkanie w Gdańsku – Jasień, Osiedle Neo JasieńNa sprzedaż funkcjon...
Nowoczesny budynek z 2020 r. | Łostowice, GdańskNa sprzedaż eleganckie i funkcjonalne 3-pokojowe mieszkanie o powierzchni 60,90 m², położone na 2. pi...
Mieszkanie znajduje się na parterze 3-piętrowego budynku na zamkniętym i chronionym osiedlu. Lokal jest w stanie do zamieszkania, w pełni wyposażony i...