Cztery budynki jednorodzinne dwulokalowe - 4x200 m2 + garaż i ogród
Mazowieckie
Opis
OFERTA SPECJALNA
Kamionka - Prażmów Sprzedam nowo wybudowane domy w zabudowie bliźniaczej.
Powierzchnia użytkowa każdego z budynków wraz z garażem: ok. 200 m2. Każdy dom ma własną działkę o powierzchni 500 m2.
Jeden z lokali jest w pełni wykończony bez umeblowania, a pozostałe trzy w stanie deweloperskim.
Domy w cichej, spokojnej i pięknej okolicy wśród lasu brzozowego.
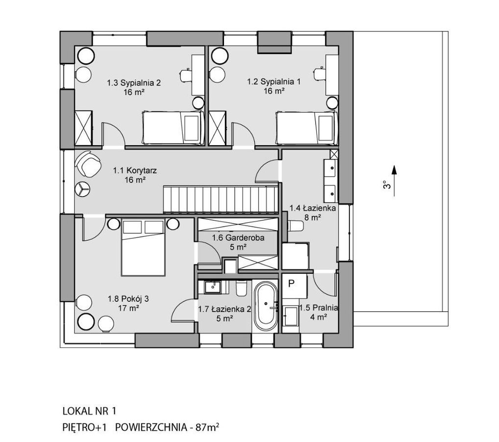
Domy posiadają dwie pełnowartościowe kondygnacje (bez skosów). Wysoki parter: salon z jadalnią i kuchnią 54,82 m2. Na górze dwa pojedyncze pokoje sypialniane oraz podwójna sypialnia sypialnia z własną łazienką i garderobą.
Dom pasywny z możliwością podłączenia alternatywnych źródeł energii: energia słoneczna z paneli fotowoltaicznych na dachu - możliwe mniejsze rachunki za prąd do 50%.
Dom wyposażony jest w odpowiednią wentylację - dzięki rekuperacji.
Dom bezpieczny - parterowe okna wyposażone są w rolety antywłamaniowe, a szyby we wszystkich oknach są odporne na uderzenie siekierą.
#domynasprzedaż #nieruchomościwarszawa #dom #Piaseczno #nowydom #nieruchomości #house #modern #dompasywny #passivehouse
Ogólne informacje
| Rodzaj | Na sprzedaż |
|---|---|
| Powierzchnia użytkowa | 800 m² |




