Dla inwestora | Klimatyzacja | Willowe osiedle
Warszawa, Mazowieckie
Opis
DUŻY DOM WOLNOSTOJĄCY OTOCZONY ZIELENIĄ
Willowa część osiedla Boernerowo | Wysoki standard | Klimatyzacja | Sauna
*****
ROZKŁAD POMIESZCZEŃ:
Parter o powierzchni 216m2:
* Przedsionek,
* garderoba,
* kuchnia z jadalnią,
* salon,
* 3 gabinety/pokoje,
* łazienka,
* duży hol,
* pomieszczenie gospodarcze.
Piętro o powierzchni 188m2:
* Kuchnia z jadalnią,
* 7 gabinetów/pokojów,
* łazienka.
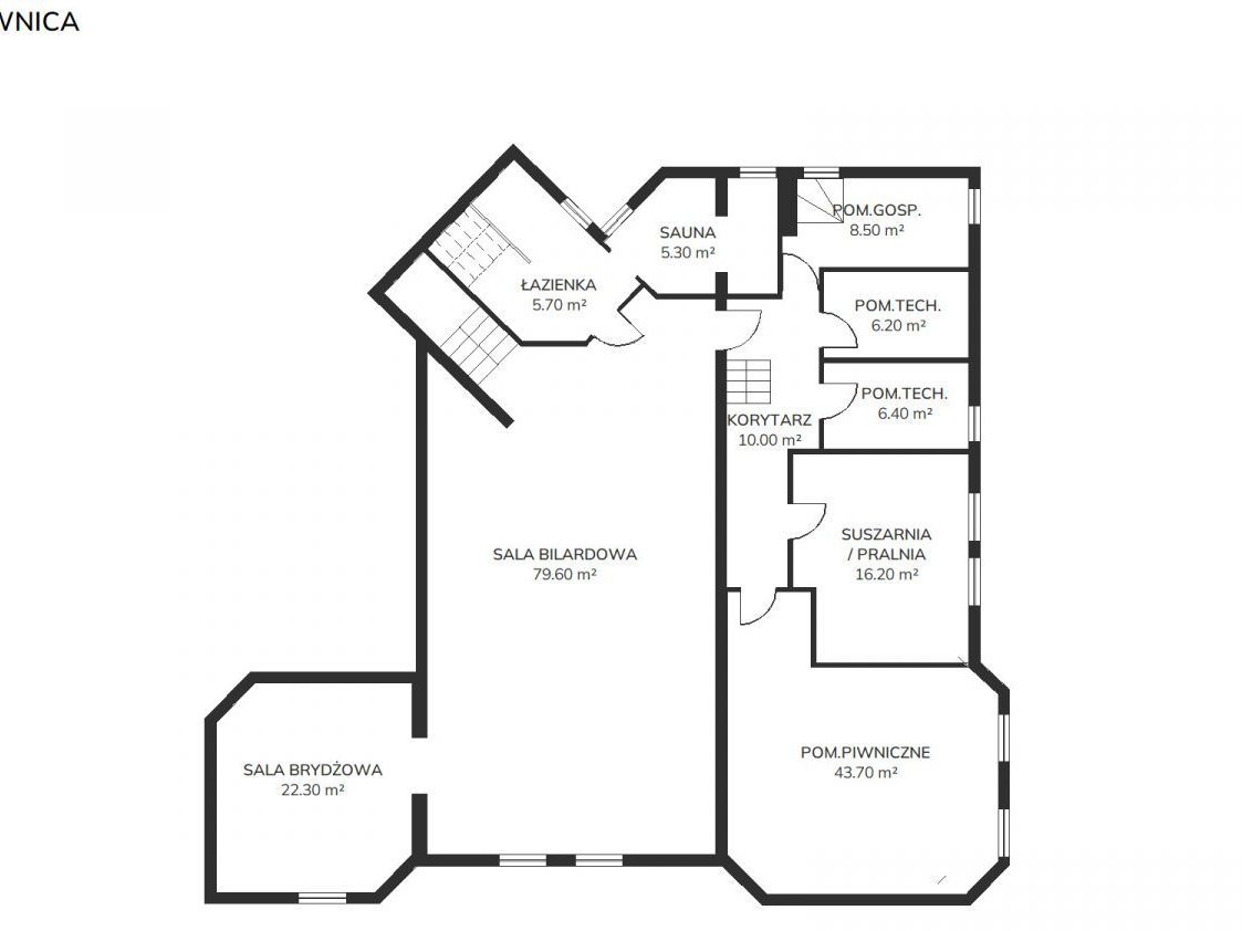
Przyziemie o powierzchni 196m2:
* Galeria,
* 2 gabinety/pokoje,
* łazienka,
* sauna,
* pomieszczenia techniczne,
* serwerownia,
* kotłownia,
* korytarz.
STANDARD:
Przestronny dom na trzech kondygnacjach z ogromnym potencjałem. Salon w najwyższym punkcie ma ok. 7m wysokości. Podłogi wykończone mozaiką drewnianą. W kuchniach, łazienkach, holu, oraz piwnicy podłogi wyłożone gresem oraz terakotą. Na parterze i poddaszu ogrzewanie podłogowe. Schody oraz balustrady na poddaszu wykończone drewnem. Stolarka drzwiowa drewniana.
Około 410 m2 powierzchni użytkowej na parterze i I piętrze oraz dodatkowo 200 m2 w przyziemiu (większość pomieszczeń posiada okna), daje wiele możliwości adaptacyjnych. W pełni monitorowany budynek w dobrym stanie technicznym, wszystkie pomieszczenia klimatyzowane. Dodatkowo garaż wolnostojący na 2 samochody oraz możliwość zaparkowania kolejnych kilku aut na zamykanym terenie posesji.
Dom aktualnie wynajęty na działalność leczniczą.
Bardzo dobra umowa najmu. Możliwość zakupu z Najemcą.
Duża powierzchnia daje możliwość adaptacji na biuro, restaurację, hostel, gabinety lekarskie, przedszkole lub wynajmu na cele mieszkalne. Wręcz idealny dla dużej rodziny.
LOKALIZACJA:
Dom położony jest w spokojnej, zalesionej okolicy z dominującą zabudową willową, jednorodzinną.
W pobliżu Wojskowa Akademia Techniczna, a także szkoła podstawowa i przedszkola. Nieopodal sklepy, apteka, paczkomat, oraz wszelkie lokale usługowe.
W pobliżu pętla autobusowa z szybkim dojazdem do stacji metra Bemowo.
* Autobusy nr: 167, 523, 320, 220, N45, N95,
* tramwaje nr: 20.
Dojazd do obwodnicy (S8) zajmuje 5 minut.
Zapraszam na prezentację!
——————————————
KONTAKT:
Artur Mogielnicki: +48 790 508 208
Przedstawiona wyżej oferta nie jest ofertą handlową w rozumieniu przepisów prawa, lecz ma charakter informacyjny. Partners International dokłada starań, aby treści przedstawione w naszych ofertach były aktualne i rzetelne. Dane dotyczące ofert uzyskano na podstawie oświadczeń Sprzedających.
Jako biuro nieruchomości pobieramy wynagrodzenie w formie prowizji.
——————————————
CONTACT:
Artur Mogielnicki: +48 790 508 208
Outlined above proposal is not a commercial offer for the purposes of the law but is informative. All data relating to real estate was obtained on the basis of statements from the Sellers.
As a real estate agency, we charge a commission.
——————————————
LARGE DETACHED HOUSE SURROUNDED BY NATURE
Villa section of the Boernerowo housing estate | High standard | Air conditioning | Sauna
*****
ROOM LAYOUT:
First floor with an area of 216m2:
* Atrium,
* Dressing room,
* kitchen with dining room,
* living room,
* 3 offices/rooms,
* bathroom,
* a large hall,
* utility room.
Floor with an area of 188m2:
* Kitchen with dining room,
* 7 offices/rooms,
* bathroom.
Ground floor with an area of 196m2:
* Gallery,
* 2 offices/rooms,
* bathroom,
* sauna,
* technical rooms,
* server room,
* boiler room,
* hallway.
STANDARD:
Spacious house on three floors with great potential. Living room at the highest point is about 7m high. Floors finished with wood mosaic. In kitchens, bathrooms, lobby, and basement floors tiled with stoneware and terracotta. On the first floor and attic floor heating. Stairs and balustrades in the attic finished with wood. Wooden door frames.
Approximately 410 m2 of usable space on the first floor and the first floor and an additional 200 m2 in the first floor (most of the rooms have windows), gives a lot of adaptation possibilities. Fully monitored building in good technical condition, all rooms air-conditioned. In addition, there is a detached garage for 2 cars and the possibility of parking several more cars in a gated area of the property.
The large area gives the possibility of adaptation to an office, restaurant, hostel, medical offices, kindergarten or rental for residential purposes. It is even ideal for a large family.
LOCATION:
The house is located in a quiet, wooded area with predominantly villa, single-family housing.
Near the Military Technical Academy, as well as an elementary school and kindergartens. Nearby stores, pharmacy, package store, and all service establishments.
Near the bus loop with fast access to the metro station Bemowo.
* Buses no.: 167, 523, 320, 220, N45, N95,
* streetcars no.: 20.
Access to the ring road (S8) takes 5 minutes.
I invite you to the presentation!
Ogólne informacje
| Rodzaj | Na sprzedaż |
|---|---|
| Powierzchnia użytkowa | 600 m² |




