Dom 100 m² z ogrodem w Centrum Radomia
Radom, Mazowieckie
Opis
Opis
Oferuję Państwu dom wolnostojący o powierzchni 100 m², znajdujący się na działce o powierzchni 680 m², w zacisznej ulicy centrum miasta Radom przy ul. Walerego Przyborowskiego.
Dom w tej okolicy, to doskonała opcją zamiany mieszkania w bloku - nie trzeba wyprowadzać się daleko poza centrum, żeby mieszkać w domu z ogródkiem.
bezpłatna strefa parkowania wokół domu,
łatwy dojazd z kilku stron miasta,
do wszystkich istotnych punktów potrzebnych do codziennego życia można dość pieszo.
Powierzchnia 100 m², to optymalna powierzchnia. Jest to więcej niż przeciętne mieszkanie w bloku, a cena przystępna.
Dom może zostać rozbudowany o kolejne piętro lub adaptację poddasza na użytkowe.
OPIS NIERUCHOMOŚCI:
Dom o 3-kondygnacyjach, usytuowana na działce o powierzchni 680 m².
Budynek wyposażony jest we wszystkie media: woda z sieci, kanalizacja z sieci, gaz z sieci, energia elektryczna. Stan techniczny – do remontu.
Budynek posiada dwa niezależne wejścia – od strony ogrodu oraz główne wejście tworzące klatkę chodową, łączącą wszystkie kondygnacje budynku.
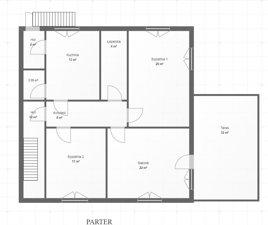
Poziom 0
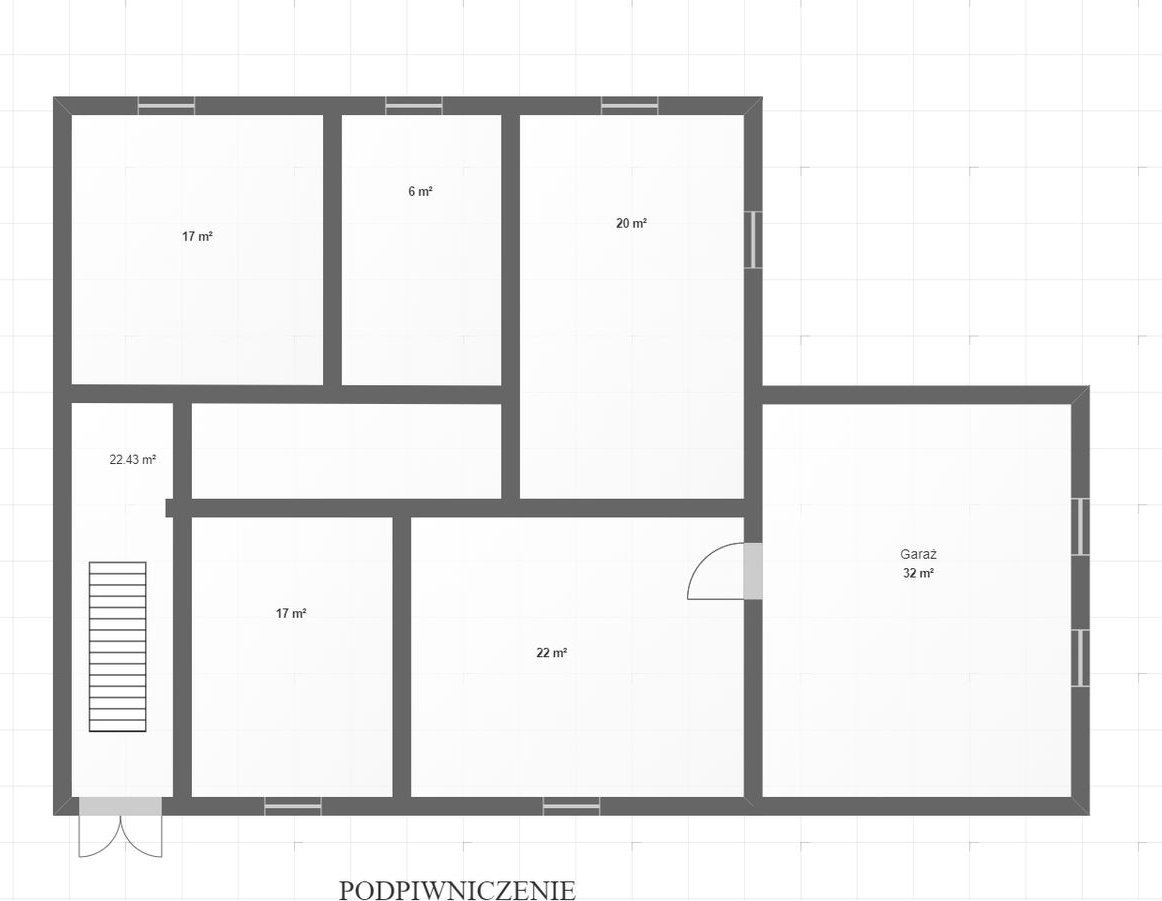
Podpiwniczenie:
4 pomieszczenie gospodarcze ( 2 x 17m², 20 m², 22m²),
Korytarz i klatka schodowa 18 m²,
garaż - 32 m²,
kotłownia – 6 m²,
Poziom 1
Pokój 22 m² z wyjściem na 32 m² taras,
Pokój 20 m²,
pokój 17 m²,
kuchnia 13 m² i spiżarką 2 m²,
Łazienka z WC - 6 m²,
Korytarz – 8 m²,
Klatka schodowa 10 m²,
Wiatrołap – 2 m².
Poziom 2
Strych z możliwość dobudowania o kolejne piętro.
Dach: odeskowany, pokryty blachą – stan bardzo dobry, nie przeciekający.
Wokół domu niewielki piękny ogród z nasadzeniami, dająca przyszłym mieszkańcom możliwość wypoczynku, czy grillowania na powietrzu.
Na działce znajduje się również zabudowa gospodarcza – dwa garaże oraz schowek na narzędzia.
Jednak by w pełni docenić zalety tej nieruchomości, zapraszam na prezentację.
Biuro Nieruchomości SWIS HOME
Marzena Świś
Ogólne informacje
| Rodzaj | Na sprzedaż |
|---|---|
| Powierzchnia użytkowa | 100 m² |
| Liczba pokoi | 3 |




