Dom, 131,63 m², Kraków
Kraków, Małopolskie
Opis
Oferta sprzedaży nowoczesnego domu dwulokalowy w Krakowie. Położony w dzielnicy Podgórze między Kobierzynem a Kliny Zacisze.
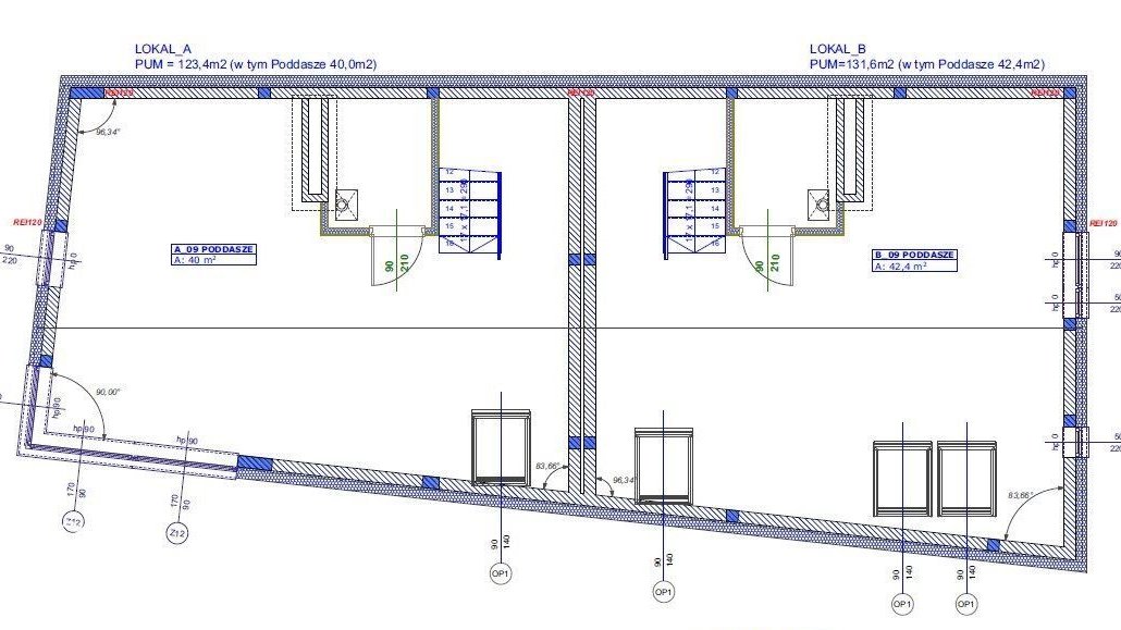
Inwestycja obejmuje dwa niezależne lokale mieszkalne:Dom składa się z dwóch niezależnych lokali mieszkalnych, idealnych dla rodzin lub osób poszukujących wygodnych i funkcjonalnych przestrzeni:Lokal A: powierzchnia użytkowa 131,63 m²,
Lokal B: powierzchnia użytkowa 123,42 m².
ROZKŁAD POMIESZCZEŃ:
PARTER:
-Salon + Kuchnia- 27,5 m2
- Łazienka - 5,1 m2
- Hall + schody - 8,3 m2
PIĘTRO:
- Sypialnia - 9,4 m2
- Sypialnia - 9,4 m2
- Sypialnia - 10,8 m2
- Łazienka - 4,0 m2
- Hol + schody - 8,8 m2
PODDASZE:
- Łazienka + pokój - 40,0 m2
MEDIA:- Woda miejska, kanalizacja sanitarna, prąd, ogrzewanie podłogowe
Każdy z lokali został zaprojektowany z uwzględnieniem przemyślanego układu pomieszczeń, zapewniającego maksymalną wygodę użytkowania.
Nowoczesny design:
Projekt domu wyróżnia się współczesną architekturą, której cechą charakterystyczną są:
-duże przeszklenia zapewniające doskonałe doświetlenie wnętrz,
-funkcjonalne i przestronne układy pomieszczeń,
-wysoki standard wykończenia oraz dbałość o każdy detal.
Ogródki będą oficjalnie wyznaczone i przydzielone do poszczególnych mieszkań na zasadzie prawa własności- ogródki są już cenie.
Miejsce postojowe:, zgodnie z projektem, przewidziane jest jedno miejsce postojowe dla każdego lokalu. Niemniej jednak, po odbiorze mieszkań, każdy lokal będzie dysponował dwoma miejscami postojowymi. Miejsca postojowe również będą wliczone w cenę mieszkania.
Zakup nieruchomości od inwestora - BRAK PODATKU PCC 2%!
Lokalizacja:szybki wyjazd na obwodnicę Krakowa (A4)
ok. 15 minut samochodem do centrum
pełna infrastruktura w okolicy
Serdecznie zapraszamy do zapoznania się z ofertą.::DODATKOWE INFORMACJE Prąd: jestGaz: jestWoda: jestKanalizacja: miejskaRodzaj domu: bliźniakPodst. materiał budowlany: porothermPowierzchnia użytkowa [m2]: 131,6300Stan budynku: do wykończeniaRok budowy: 2025Liczba pokoi: 5Liczba łazienek: 3::KONTAKT DO AGENTA Patryk Brzeżawski506 963 średnik odpowiedzialny zawodowo za wykonanie umowy pośrednictwa: Bartłomiej Krosta (licencja nr: 6585)-Od 1993 r. pośredniczymy w transakcjach na krakowskim rynku nieruchomości. Pomożemy Ci jak przyjacielowi.
Ogólne informacje
| Rodzaj | Na sprzedaż |
|---|---|
| Powierzchnia użytkowa | 131.63 m² |
| Liczba pokoi | 5 |




