DOM 143 m2 z ogrodem, garażem, na zamkniętym osiedlu - w Gruszczynie!
Wielkopolska
Opis
>>> Nowoczesne domy z pompą ciepła w cenie 970.000,00 <<<
>>> Ostatnie lokale w IV etapie <<<
Przedstawiam Państwu wyjątkową ofertę domów w zabudowie bliźniaczej położonych w urokliwej i niezwykle pożądanej ostatnio lokalizacji jaką jest Gruszczyn (k. Swarzędza).
Inwestycja powstaje na nowoczesnym osiedlu, w pięknym otoczeniu terenów zielonych, lasów, jeziora, ścieżek rowerowych i pieszych, które wręcz zachęcają do wszelkiej aktywności fizycznej. Ogromnym plusem tej lokalizacji jest również bliski dostęp do całej infrastruktury handlowo-usługowej, w pobliżu przedszkola, szkoły, sklepy, komunikacja miejska. Do Swarzędza zaledwie 2 km a dojazd do Poznania to nieco ponad 10 min jazdy samochodem!
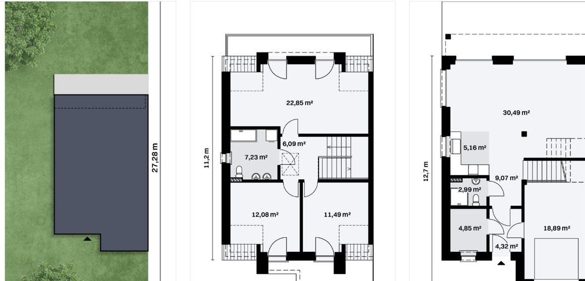
Nieruchomość o łącznej powierzchni 143 m2 została zaprojektowana w bardzo przemyślany i funkcjonalny sposób. Parter budynku to sporo otwartej przestrzeni, salon z jadalnią i aneksem kuchennym a do tego duże okna i drzwi tarasowe z bezpośrednim wyjściem na ogród sprawiają, że wnętrze jest bardzo jasne i przestronne. Dodatkowo pomieszczenie gospodarcze i pralnia, WC z możliwością montażu prysznica i garaż w bryle budynku z bramą sterowaną elektrycznie.
Piętro to trzy (lub możliwość wydzielenia czterech) osobne sypialnie o metrażach 11,5; 12,08; 22,85 m2, największa z nich z bezpośrednim wyjściem na balkon posiadający efektowną, szklaną balustradę od strony ogrodu. Na piętrze znajduje się również łazienka z oknem i możliwością wanny oraz prysznica.
Do wykorzystania też strych, który idealnie sprawdzi się jako dodatkowe pomieszczenie na przechowywanie.
Niewątpliwym plusem tej inwestycji jest zastosowanie energooszczędnej pompy ciepła z wbudowanym zasobnikiem, co umożliwia redukcję kosztów eksploatacyjnych do niezbędnego minimum przy czym jest rozwiązaniem bardziej ekologicznym niż tradycyjne źródła ciepła.
W całym domu ogrzewanie podłogowe, a więc brak grzejników na ścianach i jeszcze większe możliwości aranżacyjne. W każdym oknie rolety zewnętrzne z napędem elektrycznym, podjazd i wejście do domu z kostki, ogrodzenie panelowe i co ważne- kanalizacja miejska oraz światłowód to kolejne atuty tej nieruchomości.
Droga dojazdowa do posesji z kostki brukowej, oświetlona.
Powierzchnia pomieszczeń:
Parter:
-wiatrołap: 4,32 m2,
-korytarz: 9,07 m2,
-salon z jadalnią: 30,49 m2,
-kuchnia: 5,16 m2,
-łazienka: 2,99 m2,
-pom. gospodarcze: 4,85 m2,
-garaż: 18,89 m2.
Piętro:
-korytarz 6,09 m2,
-sypialnia 11,49 m,
-sypialnia 12,08 m2,
-łazienka 7,23 m2,
-sypialnia 22,85 m2.
Dodatkowe informacje:
-ściany fundamentowe z bloczków betonowych, ocieplone styropianem 15 cm,
-ściany zewnętrzne z betonu komórkowego (technologia IZODOM/standard IZOENERGY), ocieplone styropianem 20 cm,
- tynk silikonowy odporny na czynniki atmosferyczne. Zapewniają estetyczny wygląd na długie lata,
-dach skośny o konstrukcji drewnianej kryty płaską dachówką ceramiczną La Escandella Planum klinkierowa w kolorze antracyt,
-ocieplenie dachu- piana PUR,
-schody betonowe, wylewane,
-rozprowadzona instalacja elektryczna z uzbrojoną rozdzielnią,
-wykonane tynki gipsowe na ścianach,
-wylana posadzka cementowa na podłodze,
-wyprowadzone podejścia wodno-kanalizacyjne.
To jedna z tych nieruchomości, którą warto zobaczyć na żywo! Umów się prezentację!
Kupujący nie płaci podatku PCC w wysokości 2% od wartości nieruchomości oraz nie ponosi kosztów pośrednictwa.
Zapraszam do kontaktu i umówienia prezentacji nieruchomości.
Ogólne informacje
| Rodzaj | Na sprzedaż |
|---|---|
| Powierzchnia użytkowa | 143 m² |
| Liczba pokoi | 5 |




