Dom 4 pokoje, 2 łazienki, ogródek - Banino
Pomorskie
Opis
Zapraszam do obejrzenia domu pokazowego, umeblowanego i wykończonego pod klucz !!!
Inwestycja "Przystań Miszewko" to przytulne domy na granicy Banina i Miszewka przy ul. Karwety.
Szukając domu zwracasz pewnie uwagę na 4 kluczowe parametry:
- atrakcyjna cena - jest to najlepsza oferta w tej lokalizacji,
- dobra lokalizacja - sklep Polomarket, Paczkomat, przedszkola, pawilony usługowe,
- doświadczenie dewelopera - inwestycję realizuję firma Marsol działająca ponad 20 lat w branży budowlanej.
- technologia budowy i jakość - Budynek wykonany z wysokiej jakości materiałów, w nowoczesnym stylu z funkcjonalnym układem pomieszczeń. W całym domu ogrzewanie podłogowe z niezależną regulacją każdego z pokoi. Nieruchomość posiada pełne uzbrojenie tj. prąd, gaz, wodę i kanalizację.
Biorąc powyższe pod uwagę jest to najlepsza inwestycja dostępna na rynku. Już dziś możesz ją obejrzeć na żywo, umów się na spotkanie, wybrać dom i go zarezerwować. Mapa dostępnych domów w galerii ogłoszenia. Do zobaczenia na budowie !
Inwestycja "Przystań Miszewko" składa się z 24 domów w zabudowie bliźniaczej.
Każdy dom o powierzchni użytkowej 77, 7 m² + ok. 18 m2 (łącznie ok. 96 m2) poddasza nieużytkowego znajduje się na działce o powierzchni około 150 m² i posiada dwie kondygnacje plus poddasze nieużytkowe.
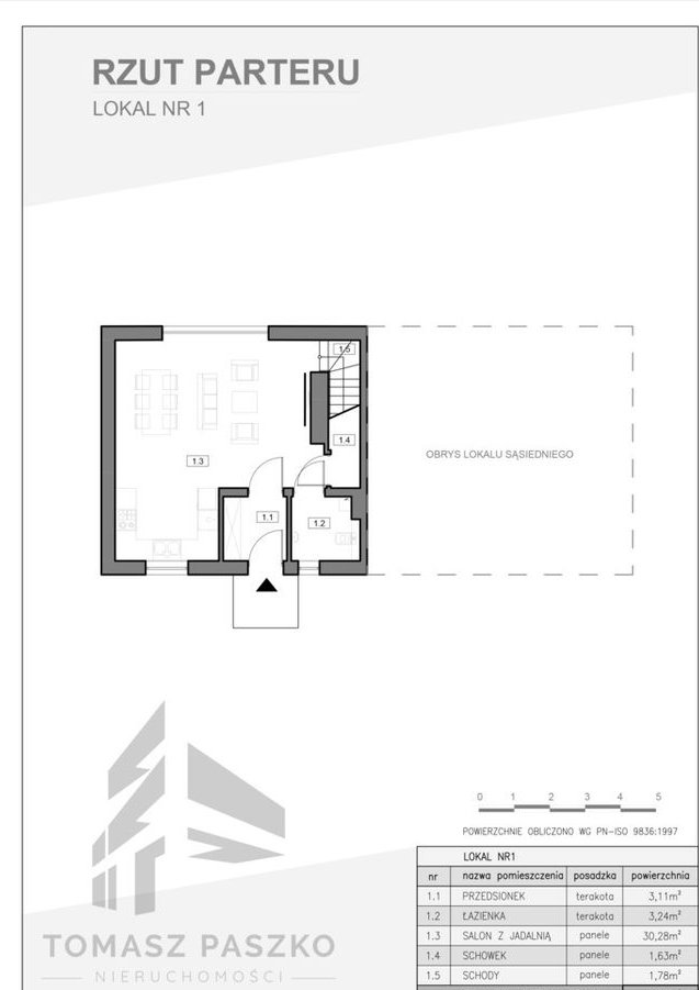
PARTER z wyjściem do ogródka
1. Wiatrołap: 3,11m²
2. Łazienka: 3,24m²
3. Salon + Aneks kuchenny + Jadalnia: 30,28m²
4. Schowek: 1,63m²
5. Schody: 1,78m²
PIĘTRO
1. Łazienka: 5,20m²
2. Pokój: 11m²
3. Pokój: 11m²
4. Pokój: 5,82m²
5. Korytarz: 2,87m²
6. Schody: 1,78m²
Ponadto do zagospodarowania pozostaje również strych o powierzchni podłogi około 18 m².
Łącznie mamy do dyspozycji ok. 96 m2 powierzchni.
Budynek wykonany z wysokiej jakości materiałów, w nowoczesnym stylu z funkcjonalnym układem pomieszczeń. W całym domu ogrzewanie podłogowe z niezależną regulacją każdego z pokoi.
Nieruchomość posiada pełne uzbrojenie tj. prąd, gaz, wodę i kanalizację.
Budowa jest prowadzona przez doświadczonego dewelopera w oparciu o sprawdzone technologie i materiały - jest możliwość odwiedzenia inwestycji i zobaczenia domów w trakcie budowy.
LOKALIZACJA:
300 m Paczkomat Inpost
300 m supermarket POLOmarket
200 m przedszkole
300 m sklep Żabka
1,5 km Weterynarz
1,5 km Stomatolog
1,6 km Szkoła Podstawowa im. J. Trepczyka
2 km Stacja paliw
3,5 km przystanek Rębiechowo PKM (kolej)
6 km Jezioro Tuchomskie
14 km Port Lotniczy GDAŃSK
Zakończenie budowy GRUDZIEŃ 2024 roku.
Domy są na etapie budowy, który pozwala wejść do środka i obejrzeć ich wnętrze.
Jesteś zainteresowany?
Zapraszam na prezentację!
Biuro Nieruchomości pobiera opłatę za prowadzenie transakcji od strony kupującej w wysokości 1,5 %
Informacje zawarte w ogłoszeniu nie są prawnie wiążące i nie stanowią oferty handlowej, w tym w rozumieniu art. 66 par. 1 Kodeksu Cywilnego.
Oferta wysłana z programu dla biur nieruchomości ASARI CRM ()
Ogólne informacje
| Rodzaj | Na sprzedaż |
|---|---|
| Powierzchnia użytkowa | 96 m² |
| Liczba pokoi | 4 |




