Dom Arek F, Bielsko-Biała, ul. Juhasów, Wzgórze 3 Lipki
Śląskie
Opis
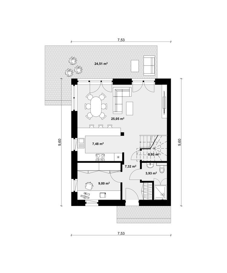
Dom piętrowy "Arek" to harmonijnie zaprojektowana przestrzeń, która łączy funkcjonalność z nowoczesnym stylem. Na parterze znajduje się korytarz z miejscem na zabudowaną szafę, przestronny pokój – idealny jako gabinet lub pokój gościnny – a także aneks kuchenny z wyraźnie wydzieloną strefą jadalnianą. Uzupełnieniem tej części jest łazienka z wygodnym prysznicem oraz klatka schodowa prowadząca na piętro.
Na piętrze mieszczą się trzy ustawne, jasne pokoje sypialniane oraz komfortowy pokój kąpielowy – idealne miejsce na odpoczynek po intensywnym dniu.
"Arek" to dom, który daje swobodę aranżacji i codzienny komfort w estetycznej, dobrze przemyślanej formie.
Pomieszczenia na parterze:
salon otwarty na kuchnię oraz część jadalnianą
łazienka z prysznicem
pokój (gościnny lub gabinet)
korytarz z miejscem na szafę
Wykonane prace ponad stan deweloperski:
częściowe ogrodzenie
ściany na poddaszu murowane, pokryte tynkiem
stelaż podtynkowy Geberit do WC - 2 szt.
dodatkowe punkty elektryczne
instalacja ogrzewania podłogowego we wszystkich pomieszczeniach
kolor okien jednostronny AP19 jasny dąb
okno tarasowe przesuwne z niskim progiem
drzwi zewnętrzne stalowe w kolorze jasny dąb
elewacja – ocieplenie ścian zewnętrznych budynku styropianem białym, o gr. 20 cm, wykończenie tynkiem silikonowo-silikatowym z elementami ozdobnymi
lampy zewnętrzne
ocieplenie poddasza wełną o grubości 30 cm (15 cm+ 15 cm) oraz zabudowa sufitów płytami gipsowo- kartonowymi
wykonanie stryszku o powierzchni około 17 m2 z płyt OSB, wyłaz strychowy
piec gazowy dwufunkcyjny wraz z elementami sterowania ogrzewaniem podłogowym
daszek szklany nad wejściem
Jakość wykonania gwarantuje 40-letnie doświadczenie firmy Dom Dla Każdego i ponad 600 wybudowanych domów.
Kontakt i szczegóły:
Chętnie odpowiemy na wszystkie pytania związane z inwestycją.
Dni otwarte:
Zapraszamy do odwiedzenia naszych domów pokazowych w każdą sobotę w godzinach 10-13.
Szczegółowe informacje dostępne u Opiekunów oraz na stronie internetowej Dom Dla Każdego.
Niniejsze szacowanie wartości nie stanowi oferty w rozumieniu zapisów art. 66. Kodeksu Cywilnego (Ustawa z dnia 23 kwietnia 1964 r. Kodeks cywilny), jest jedynie zaproszeniem do nawiązania Umowy.
Oferta sprzedaży bez pośredników.
Zapraszamy do zapoznania się z ofertą i odwiedzenia naszych domów pokazowych!
Ogólne informacje
| Rodzaj | Na sprzedaż |
|---|---|
| Powierzchnia użytkowa | 118.32 m² |
| Liczba pokoi | 5 |




