Dom do wykończenia w cenie mieszkania nad morzem
Zachodniopomorskie
Opis
Przedstawiamy na sprzedaż dom wolnostojący w trakcie budowy o powierzchni całkowitej 80 m2 zlokalizowany 2,5 km od Kamienia Pomorski.
Bardzo dobra oferta z uwagi na lokalizację na obrzeżach miasta, co daje więcej intymności od zgiełku miasta. Ciekawa alternatywa dla mieszkań, gdyż uzyskujemy dom w cenie mieszkania z własnym ogrodem na etapie do wykończenia i ewentualnie możliwych zmian jak i do własnej aranżacji.
Dom aktualnie w stanie surowym zamkniętym, budowany według Projektu „Sosenka 3” w wersji odbicie lustrzane.
Budowa przedstawionego budynku rozpoczęta została 2024 roku z wysokiej jakości materiałów, a konkretnie z betonu komórkowego Ytong. Dach więzarowy wyłożony z blachodachówki w kolorze antracyt. Wstawione okna i drzwi tarasowe są PCV trzyszybowe.
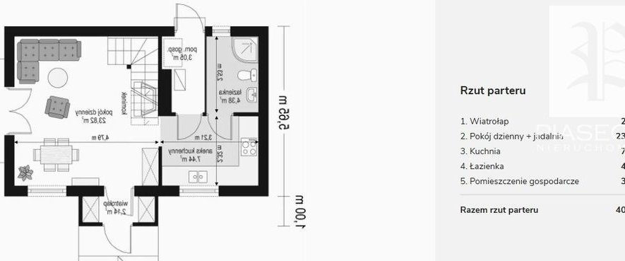
Zgodnie z projektem parter domu przewiduje: wiatrołap, pokój dzienny otwarty z jadalnią i wyjściem na taras, osobną kuchnię, łazienkę oraz pomieszczenie gospodarcze.
Na poddaszu natomiast projektowane są dwa pokoje, toaleta i komunikacja.
Działka o powierzchni 500 m2 na kształt prostokąta o wymiarach 19x27 m. Działka ogrodzona siatką. Uzbrojona w prąd, wodę miejską oraz szambo. Planowane ogrzewanie z pompy ciepła powietrze-powietrze, a także ogrzewanie dodatkowe z kominka, przez co zostały wyprowadzone przewody kominkowe.
Niniejsze ogłoszenie ma charakter wyłącznie informacyjny i nie stanowi oferty handlowej w rozumieniu Kodeksu Cywilnego. Zaleca się osobistą weryfikację prezentowanych danych, ponieważ pomimo dołożenia należytej staranności, w treści mogły pojawić się nieścisłości lub omyłki.
Oferta wysłana z programu dla biur nieruchomości ASARI CRM ()
Ogólne informacje
| Rodzaj | Na sprzedaż |
|---|---|
| Powierzchnia użytkowa | 80 m² |
| Liczba pokoi | 3 |




