Dom duża działka, połówka bliźniaka, Zaborówek ul. Porzeczkowa etap 2.
Mazowieckie
Opis
Kameralna Inwestycja w Zaborówku - Nowoczesne Bliźniaki w Otulinie Kampinoskiego Parku Krajobrazowego
Zapraszam do zapoznania się z wyjątkową ofertą sprzedaży nowoczesnych bliźniaków, zlokalizowanych w malowniczej miejscowości Zaborówek, przy ulicy Porzeczkowej. Idealne miejsce dla rodzin szukających spokoju i bliskości natury, a jednocześnie ceniących wygodę życia w nowoczesnym, funkcjonalnym domu.
O inwestycji: Inwestycja to propozycja doświadczonego dewelopera, który postawił na połączenie nowoczesnej architektury z komfortem i ergonomicznym rozkładem pomieszczeń. Domy zostały zaprojektowane z myślą o wygodnym, harmonijnym życiu, oferując wszystko, czego potrzebuje aktywna rodzina.
Opis budynku: Nowoczesny bliźniak o powierzchni 125 m² zachwyca prostotą i elegancją. Domy są energooszczędne, dzięki zastosowaniu wysokiej jakości materiałów, co gwarantuje niskie koszty utrzymania. Na parterze znajduje się przestronny salon z jadalnią i kominkiem, funkcjonalna kuchnia, toaleta, garderoba z pralnią oraz garaż. Na piętrze do dyspozycji są trzy sypialnie, w tym jedna typu master z garderobą i łazienką oraz dodatkowa łazienka. Wysoki parter 2,85m i bardzo wysokie piętro 2,95m. Dodatkowym atutem jest poddasze (40 m²), które można zaadaptować na dodatkowy pokój, siłownię, gabinet lub bawialnię. Z salonu wyjście do ogrodu na taras o powierzchni około 18m2.
Lokale wyposażone są we wszelkie media i instalacje: woda miejska, szambo 10m3, licznik prądu, pompa ciepła, ogrzewanie podłogowe, instalacja domofonowa, instalacja alarmowa, oświetlenie zewnętrzne, instalacja teletechniczna, antena TV wyprowadzona na dach, rozprowadzone instalacje klimatyzacji we wszystkich pomieszczeniach.
ZAKOŃCZENIE INWESTYCJI MAJ 2026.
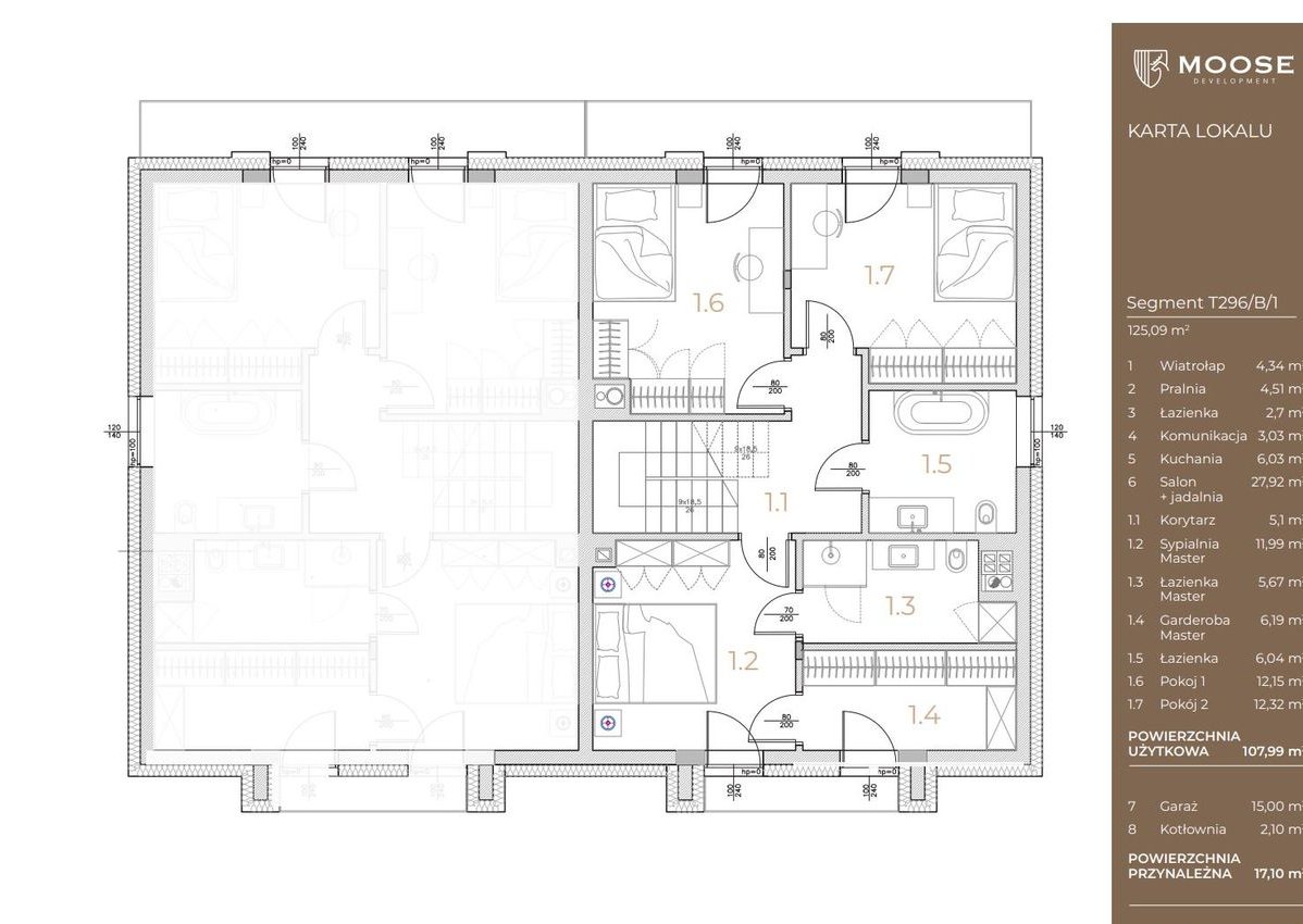
Rozkład pomieszczeń:
Parter (65,63 m²):
Wiatrołap – 4,34 m²
Pralnia – 4,51 m²
Łazienka – 2,7 m²
Komunikacja – 3,03 m²
Kuchnia – 6,03 m²
Salon + Jadalnia – 27,92 m²
Garaż – 15,00 m²
Kotłownia – 2,1 m²
Piętro (59,46 m²):
Korytarz – 5,1 m²
Sypialnia Master – 11,99 m²
Łazienka Master – 6,19 m²
Pokój 1 – 12,15 m²
Pokój 2 – 12,32 m²
Balkon – 7,05 m²
Poddasze: 40 m² (do adaptacji)
Lokalizacja: Domy znajdują się w wyjątkowej lokalizacji, bezpośrednio przy Kampinoskim Parku Narodowym (250m od domu zaczyna się las parku narodowego). To idealne miejsce dla osób ceniących aktywny tryb życia i bliskość natury. W pobliżu znajdują się szkoły, przedszkola, siłownia, basen, centrum handlowe, restauracje oraz kawiarnie. Inwestycja łączy wygodę miejskiego życia z urokami natury.
W pobliżu zaplanowana w najbliższych latach stacja szybkiej kolei łączącej Leszno i Zaborówek ze stacją metra w Chrzanowie.
Media: prąd, woda miejska, szambo – 10 m³.
Segment dostępny w sprzedaży:
Segment P296/18/A/1 – 125 m², powierzchnia ogródka – 415m2
Segment P296/18/B/1 - 125m2, powierzchnia ogródka - 435m2 - ZAREZERWOWANY
Nie przegap tej wyjątkowej okazji! Skontaktuj się ze mną, aby umówić się na prezentację:
Radosław Gaładyk
Moose Development
Zamieszkaj w miejscu, gdzie nowoczesność spotyka się z naturą!
Ogólne informacje
| Rodzaj | Na sprzedaż |
|---|---|
| Powierzchnia użytkowa | 165 m² |
| Liczba pokoi | 4 |




