Dom Dwulokalowy z działką 450m2/1000m2 Solec
Kujawsko-Pomorskie
Opis
Dom Dwulokalowy w stanie surowym zamkniętym, istnieje możliwość wykończenia do stanu deweloperskiego lub pod klucz.
Dom o pow. użytkowej 145,36 m2 usytuowany w Solcu Kujawskim.
Dobra lokalizacja, dojazd do Bydgoszczy to zaledwie 20 min, do centrum handlowego w Solcu Kujawskim około 5 min.
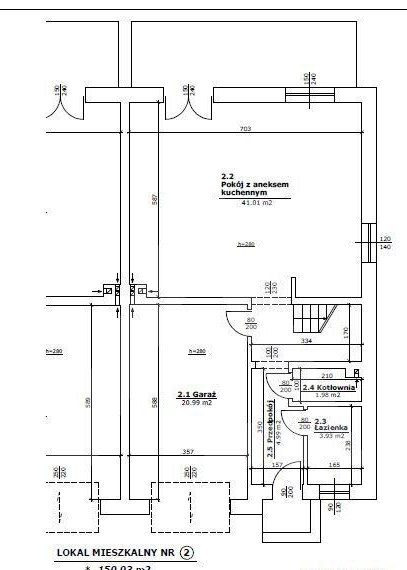
Parter:
Salon z aneksem kuchennym o pow. 41 m2, łazienka razem z WC, pomieszczenie gospodarcze, kotłownia oraz garaż 21 m2 w bryle budynku.
Pietro:
Cztery sypialnie, łazienka razem z WC, garderoba oraz pralnia.
Nieruchomość na działce 450 m2 lub 1000 m2 (istnieje możliwość powiększenia działki za dodatkową opłatą.), wykończony na zewnątrz, stan w środku surowy(
Okna 3-szybowe, na dachu dachówka, ocieplenie styropianem gr. 20 cm.
Dla zdecydowanego klienta atrakcyjne ceny robót wykończeniowych !
Szukasz Domu dla siebie i swojej rodziny.
Zadzwoń 500 016 795
Pomagamy w uzyskaniu kredytu oraz wszystkich formalnościach
Ogólne informacje
| Rodzaj | Na sprzedaż |
|---|---|
| Powierzchnia użytkowa | 145.36 m² |
| Liczba pokoi | 5 |




