Dom jednorodzinny Trzcianka pow. mieszkalna 179,5m^2, całkowita 330m^2
Wielkopolska
Opis
Możliwość rozsądnej negocjacji ceny.
Na sprzedaż dom wolnostojący o powierzchni mieszkalnej 179,5m^2, całkowitej powierzchni użytkowej 330m^2 (wliczając garaż i piwnice), piętrowy z piwnicą i podwójnym garażem. Położony na uboczu miasta, tuż nad prywatnym stawem rybnym (z możliwością wędkowania), niedaleko rezerwatu przyrody w cichej, spokojnej okolicy. W odległości około 100m znajduje się przedszkole oraz gminny plac zabaw. Tuż przed wjazdem na ulicę Rzeczną znajduje się Biedronka oddalona o około 500m.
Dostępny widok Google StreetView w mapach z czerwca 2024.
Dom jest podpięty do systemu alarmowego z obsługą zdalną.
ISTOTNE - garaż i piwnica posiadają wysokość poniżej 2.2m (sufit podwieszany na 218cm), dzięki czemu podatek od nieruchomości wynosi 50% dla ich powierzchni. Aktualne pomiary elektryczne (06.2024), świadectwo energetyczne (06.2024 - wskaźnik rocznego zapotrzebowania na nieodnawialną energię pierwotną EP = 61,93kWh/m^2), aktualny przegląd pieca gazowego. Ocieplenie domu wykonane z wełny mineralnej, elewacja wykonana z amerykańskiego sidingu.
Dom posiada zamontowany centralny filtr wody, który pozwala bezpiecznie korzystać z wszelkich podłączonych do systemu urządzeń, bez obawy o twardą wodę.
Na parterze podłogi wyłożone są deską barlinecką (dębowa), ani razu nie cyklinowana (podobno można cyklinować nawet 3x).
W domu zamontowana jest klimatyzacja LG typu multi-split (jednostka zewnętrzna pozwala jeszcze na podłączenie kilku dodatkowych jednostek wewnętrznych, 2 lub 4). Obecnie zamontowane wewnątrz są 2 jednostki na piętrze skierowane na salon oraz aneks kuchenny. Na parterze nie zostały zamontowane klimatyzatory, ponieważ parter nie nagrzewa się latem.
Na piętrze w salonie znajduje się funkcjonalny kominek powietrzny z rozprowadzonym układem ogrzewania na salon, kuchnię i łazienkę. Posiada regulację nawiewu - na poddaszu jest zamontowany układ rozprowadzania ciepłego powietrza.
W łazience na piętrze zamontowane jest jacuzzi z automatycznymi programami do kąpieli oraz oczyszczania.
Wzdłuż aneksu kuchennego, widoczna na zdjęciach pod oknami dachowymi, znajduje się zabudowa z półkami i szufladami. Dodatkowo jest przejście do przestrzeni za salonem w której można składować rzadziej używane rzeczy.
Media:
prąd,
woda,
gaz,
kanalizacja,
internet,
telefon stacjonarny.
Instalacja elektryczna i C.O. miedziane.
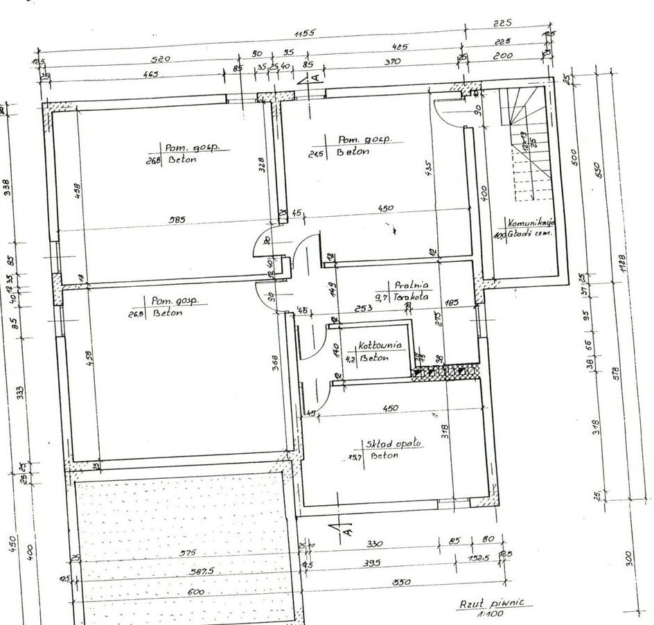
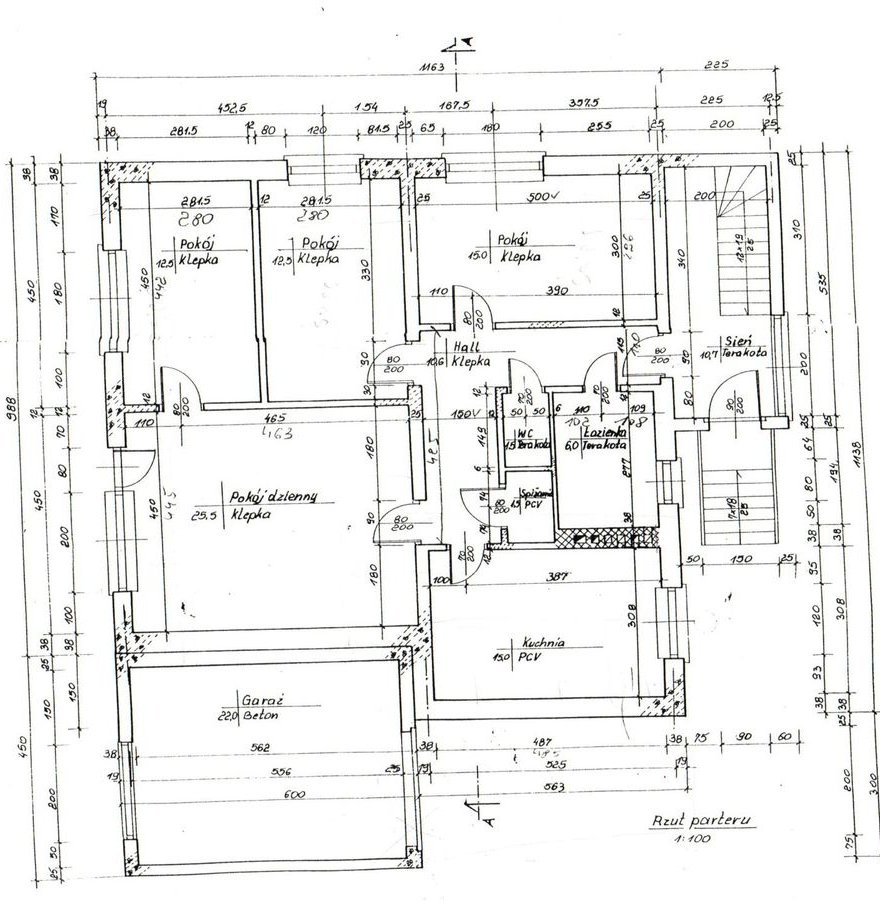
Powierzchnia użytkowa każdego poziomu to około 90m^2.
Parter:
salon 25m^2 - z wyjściem do ogrodu, przechodni do jednej z sypialni
2 x sypialnia 12.5m^2
2 x sypialnia 15m^2
osobne WC 1,5m^2
łazienka 6m^2 - z wanną oraz prysznicem
garderoba 1,5m^2
korytarz 10m^2
Jeden z pokoi na parterze (15m^2, z oknem wychodzącym na północ, od strony ulicy) pełnił kiedyś rolę kuchni i posiada niezbędne instalacje do jej przywrócenia (woda, gaz, prąd, kanalizacja).
Piętro:
salon 44m^2
kuchnia z aneksem jadalnym 23m^2
łazienka (wc, bidet, jacuzzi i prysznic) 15m^2
klatka schodowa 10m^2
Piwnica o pow. ~90m^2, z podłączeniem do centralnego ogrzewania, częściowo podłoga pokryta płytkami. W piwnicy znajdują się pomieszczenia:
spiżarnia pod klatką schodową
pomieszczenie ze stołem do ping ponga
suszarnia
kotłownia
warsztat
drewutnia
Garaż w bryle budynku - podwójny, około 40m^2 (możliwość ustawienia samochodów w głąb jeden za drugim) z przestrzenią na rowery i sprzęt ogrodniczy. Na garażu znajduje się dodatkowa przestrzeń z żeliwną balustradą, do zagospodarowania, którą można wykorzystać jako taras (obecnie pokryta papą).
Od frontu domu: ogrodzenie żeliwne, malowane proszkowo, którego podstawę stanowi murek z cegły klinkierowej ze zdalnie otwieraną bramą wjazdową oraz garażową, na pilota oraz furtka otwierana domofonem.
Dom jest otoczony kostką starobruk, która ułożona jest od frontu, pasem po obu stronach budynku oraz przestrzeń wypoczynkowa pod altaną w ogrodzie. Cokół budynku wyłożony jest płytką klinkierową.
Ogólne informacje
| Rodzaj | Na sprzedaż |
|---|---|
| Powierzchnia użytkowa | 179.50 m² |
| Liczba pokoi | 6 |




