Dom na Kameralnym Osiedlu | 500m od Lasu
Gdańsk, Pomorskie
Opis
TRZYPOZIOMOWY ŚRODKOWY SEGMENT POŁOŻONY NA KAMERALNYM NOWOCZESNYM OSIEDLU USYTUOWANY 500M OD GRANICY TRÓJMIEJSKIEGO PARKU KRAJOBRAZOWEGO
Garaż Na Trzy Auta | Ekologiczne Rozwiązania | Duże Ogrody | Rekuperacja | Ogrzewanie Podłogowe | Dodatkowe Wyciszenie Ścian | Blisko Natury | 500m Od Ściany Lasu
Idealna propozycja dla osób, które szukają domu o optymalnym metrażu i bardzo dobrym układzie funkcjonalnym, położonym na prężnie rozwijającej i doskonale skomunikowanej z resztą miasta nowoczesnej dzielnicy.
*****
INFORMACJE O NIERUCHOMOŚCI:
Komfortowy dom typu segment o powierzchni 195m2 usytuowany na działce 225 m2, z pięcioma lub sześcioma pokojami, trzema łazienkami, spiżarnią oraz garażem dla trzech samochodów. Całość zaopatrzona w przestronny ogród o ekspozycji zachodniej.
ROZKŁAD POMIESZCZEŃ:
W skład trzech kondygnacji i powierzchni 195m2 wchodzą:
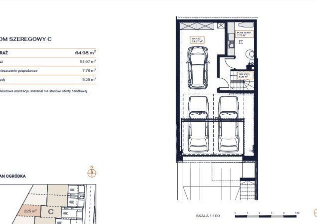
1. Garaż Pow. Łączna 64,98m2
* Garaż (51,97m2),
* pomieszczenie gospodarcze (7,76m2),
* schody (5,25m2).
2. Parter Pow. Łączna 66,31 m2
* Pokój dzienny z aneksem kuchennym (36,40m2),
* pokój (10,25m2),
* łazienka (4,11m2),
* korytarz (3,44m2),
* schody (3,55m2),
* wiatrołap (8,56m2).
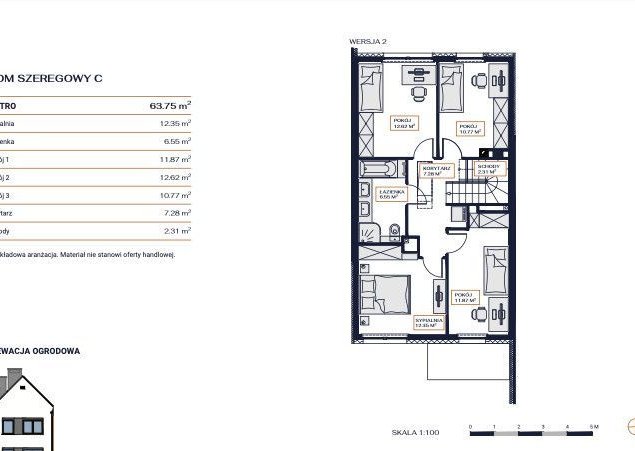
3. I Piętro Pow. Łączna 63,72m2
* Sypialnia (14,56 m2)
* Łazienka I (7,63 m2)
* Garderoba (4,77 m2)
* Pokój I (12,62 m2)
* Pokój II (10,77 m2)
* Łazienka II (6,79 m2)
* Korytarz (4,27 m2)
* Schody (2,31 m2)
STANDARD:
Standard deweloperski do indywidualnego wykończenia. Dokładny standard wykończenia (konstrukcja, wykończenie, instalacje) zostanie przesłany wraz z ofertą.
OSIEDLE / INWESTYCJA:
Zespół budynków mieszkalnych jednorodzinnych w zabudowie bliźniaczej, szeregowej i wolnostojącej stanowiący 14 niskich niepodpiwniczonych budynków o dwóch kondygnacjach nadziemnych mieszkalnych i poddaszu nieużytkowym oraz 5 budynków w zabudowie szeregowej dwóch kondygnacjach nadziemnych mieszkalnych i poddaszu nieużytkowym.
LOKALIZACJA:
Gdańsk Jasień to dynamicznie rozwijająca się dzielnica, która łączy nowoczesną infrastrukturę z bliskością natury. Doskonale skomunikowana z resztą miasta oraz szybkiemu dostępowi do Obwodnicy Trójmiasta, zapewnia wygodę codziennego życia. Okolica oferuje liczne tereny zielone, w tym malownicze Jezioro Jasień i ścieżki spacerowe, które sprzyjają aktywnemu wypoczynkowi. Na miejscu znajdują się również nowoczesne szkoły, przedszkola, sklepy oraz punkty usługowe, co czyni Jasień dzielnicą kompletną i przyjazną rodzinom. Mieszkańcy tego miejsca cieszą się spokojem, komfortem oraz bliskością wszystkiego, czego na co dzień potrzebują.
Zapraszam Na Prezentację!
——————————————
KONTAKT:
Marcin Dydecki: +48 535 013 935 (licencja zawodowa nr 28434)
Przedstawiona wyżej oferta nie jest ofertą handlową w rozumieniu przepisów prawa, lecz ma charakter informacyjny. Partners International dokłada starań, aby treści przedstawione w naszych ofertach były aktualne i rzetelne. Dane dotyczące ofert uzyskano na podstawie oświadczeń Sprzedających.
Jako biuro nieruchomości pobieramy za usługę pośrednictwa wynagrodzenie w formie prowizji.
——————————————
CONTACT:
Marcin Dydecki: +48 535 013 935 (professional license No. 28434)
Outlined above proposal is not a commercial offer for the purposes of the law but is informative. All data relating to real estate was obtained on the basis statements of the Sellers.
As a real estate agency we charge a commission.
——————————————
THREE-LEVEL TERRACED HOUSE IN A PRIVATE MODERN ESTATE LOCATED JUST 500M FROM THE BORDER OF THE TRI-CITY LANDSCAPE PARK
3-Car Garage | Eco-Friendly Solutions | Spacious Gardens | Heat Recovery Ventilation | Underfloor Heating | Additional Wall Soundproofing | Close to Nature | 500m From the Forest
An ideal choice for those looking for a home with optimal floor space and a highly functional layout, situated in a rapidly developing, well-connected modern district.
*****
PROPERTY DETAILS:
A comfortable terraced house with a total area of 195 m², set on a 225 m² plot. The house offers five or six rooms, three bathrooms, a pantry, and a garage for three cars. The property includes a spacious west-facing garden.
LAYOUT:
Three levels with a total of 195 m² include:
1. Garage Level - Total 64.98 m²
* Garage (51.97 m²)
* Utility room (7.76 m²)
* Stairs (5.25 m²)
2. Ground Floor - Total 66.31 m²
* Living room with kitchen annex (36.40 m²)
* Room (10.25 m²)
* Bathroom (4.11 m²)
* Hallway (3.44 m²)
* Stairs (3.55 m²)
* Entrance hall (8.56 m²)
3. First Floor - Total 63.72 m²
* Master bedroom (14.56 m²)
* Bathroom I (7.63 m²)
* Walk-in wardrobe (4.77 m²)
* Room I (12.62 m²)
* Room II (10.77 m²)
* Bathroom II (6.79 m²)
* Hallway (4.27 m²)
* Stairs (2.31 m²)
STANDARD:
Delivered in developer’s standard, ready for individual finishing. A detailed specification (construction, finishing, installations) will be provided upon request.
ESTATE / DEVELOPMENT:
The investment consists of single-family residential buildings in semi-detached, terraced, and detached layouts. It includes 14 low-rise houses (two above-ground residential floors plus non-usable attic) and 5 terraced houses (also with two above-ground floors and non-usable attic).
LOCATION:
Gdańsk Jasień is a rapidly developing district that combines modern infrastructure with closeness to nature. Perfectly connected with the rest of the city and offering quick access to the Tri-City Bypass, it ensures everyday convenience. The neighborhood features abundant green areas, including the picturesque Jasień Lake and walking trails ideal for active leisure. Modern schools, kindergartens, shops, and services are also nearby, making Jasień a complete and family-friendly district. Residents here enjoy peace, comfort, and easy access to everything they need.
Book Your Viewing Today!
Ogólne informacje
| Rodzaj | Na sprzedaż |
|---|---|
| Powierzchnia użytkowa | 195.01 m² |
| Liczba pokoi | 6 |




