Dom Oskar D z garażem, Żory, ul. Spokojna
Śląskie
Opis
Oskar to nowoczesny dom piętrowy w zabudowie bliźniaczej, który łączy styl, komfort i funkcjonalność, oferując doskonałą przestrzeń dla rodzin ceniących wygodę i estetykę.
Na parterze znajduje się przestronny salon połączony z kuchnią, tworzący serce domu – idealne miejsce do wspólnego spędzania czasu. Duże okna wpuszczają mnóstwo naturalnego światła, sprawiając, że wnętrza są jasne i przytulne. Dodatkowo na tej kondygnacji znajduje się praktyczny wiatrołap, łazienka oraz garaż, zapewniający komfort parkowania i dodatkową przestrzeń do przechowywania.
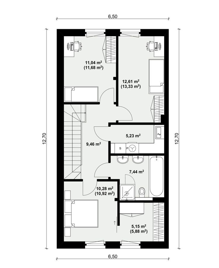
Piętro to strefa prywatna, w której znajdują się trzy przestronne pokoje. Główna sypialnia została wyposażona w garderobę, zapewniającą wygodę przechowywania. Dwa dodatkowe pokoje mogą pełnić funkcję sypialni, gabinetu lub pokoju dziecięcego. Na tej kondygnacji znajduje się również duża łazienka oraz pralnia, co podnosi komfort codziennego użytkowania.
Dzięki dużym przeszkleniom, funkcjonalnemu układowi i przemyślanemu podziałowi przestrzeni, dom Oskar spełni oczekiwania nawet najbardziej wymagających mieszkańców. To idealne miejsce dla rodzin, które cenią komfort, przestrzeń i nowoczesne rozwiązania w harmonii z otoczeniem.
Pomieszczenia na parterze:
salon otwarty na kuchnię
jadalnia
łazienka
wiatrołap
garaż
Wykonane prace ponad stan deweloperski:
bruki na tarasie, podjazdach i drodze wewnętrznej
ogrodzenie i nasadzenia
ściany na poddaszu murowane, pokryte tynkiem
schody żelbetowe
stelaż podtynkowy Geberit do WC - 2 szt.
dodatkowe punkty elektryczne
instalacja elektryczna pod rolety
siła w garażu
ogrzewanie podłogowe we wszystkich pomieszczeniach
kolor okien jednostronny AP 19 drewniany
okno tarasowe przesuwne z niskim progiem
drzwi zewnętrzne stalowe w kolorze jasny dąb
brama garażowa w kolorze jasny dąb
elewacja – ocieplenie ścian zewnętrznych budynku styropianem grafitowym, o gr. 15 cm, wykończenie tynkiem silikatowo-silikonowym z elementami ozdobnymi
lampy zewnętrzne
ocieplenie poddasza wełną o grubości 30 cm (15 cm+ 15 cm) oraz zabudowa sufitów płytami gipsowo- kartonowymi
wykonanie stryszku z płyt OSB, wyłaz strychowy
piec gazowy dwufunkcyjny wraz z elementami sterowania ogrzewaniem podłogowym
gładzie, przygotowanie pod malowanie
Kontakt i szczegóły:
Chętnie odpowiemy na wszystkie pytania związane z inwestycją.
Dni otwarte:
Zapraszamy do odwiedzenia naszych domów pokazowych w każdą sobotę w godzinach 10-13.
Szczegółowe informacje dostępne u Opiekunów oraz na stronie internetowej Dom Dla Każdego.
Niniejsze szacowanie wartości nie stanowi oferty w rozumieniu zapisów art. 66. Kodeksu Cywilnego (Ustawa z dnia 23 kwietnia 1964 r. Kodeks cywilny), jest jedynie zaproszeniem do nawiązania Umowy.
Oferta sprzedaży bez pośredników.
Zapraszamy do zapoznania się z ofertą i odwiedzenia naszych domów pokazowych!
Ogólne informacje
| Rodzaj | Na sprzedaż |
|---|---|
| Powierzchnia użytkowa | 144.60 m² |
| Liczba pokoi | 4 |




