Dom parterowy Studzienice | 119,85 m²
Śląskie
Opis
Dom jednorodzinny - Studzienice, ul. Jana Pawła II
Parterowy jednorodzinny | 3 pokoje | Garaż | Działka 815 m² | Gotowy do zamieszkania
Na sprzedaż komfortowy dom jednorodzinny parterowy, położony w Studzienicach przy ul. Jana Pawła II. Nieruchomość wybudowana w 2012 roku, zadbana i gotowa do zamieszkania, dostępna od zaraz. Idealna propozycja dla osób ceniących wygodę życia na jednym poziomie, prywatność oraz bliskość natury.
Przemyślana przestrzeń
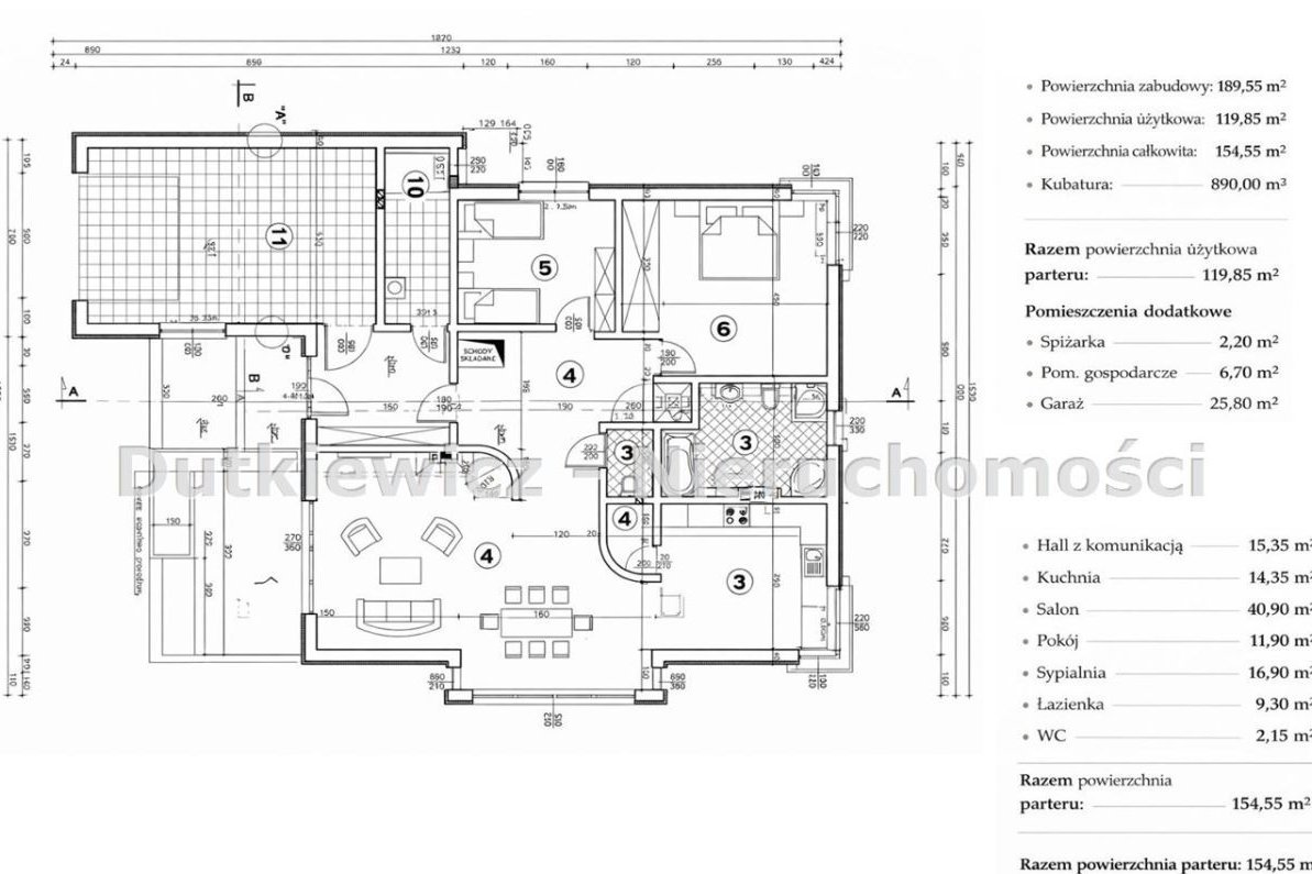
Dom oferuje 119,85 m² powierzchni użytkowej (154,55 m² powierzchni całkowitej), na którą składają się:
3 pokoje, w tym przestronny salon z jadalnią,
funkcjonalna kuchnia ze spiżarką,
dwie sypialnie,
łazienka z WC,
hol i komunikacja,
pralnia oraz garaż w bryle budynku.
Układ pomieszczeń zapewnia komfort codziennego użytkowania i naturalny podział na strefę dzienną i prywatną.
Standard i wyposażenie
Wnętrza utrzymane są w spójnym, ponadczasowym stylu. W cenie nieruchomości pozostaje bogate wyposażenie:
kuchnia z zabudową (fronty akrylowe), kamiennymi blatami i pełnym AGD (płyta indukcyjna, piekarnik parowy, lodówko‑zamrażarka, zmywarka, okap),
salon z kominkiem w zabudowie, sofą, stołem i krzesłami,
łazienka z wanną i prysznicem (zabudowa Geberit, 2 umywalki),
sypialnie i pozostałe pomieszczenia z umeblowaniem.
Na podłogach zastosowano kamień i kafelki, a całość jest gotowa do użytkowania bez dodatkowych nakładów. Wnętrze dopełnia jednolita stolarka drewniana - drzwi, ościeżnice oraz listwy przypodłogowe wykonane w tej samej stylistyce, podkreślające konsekwencję wykończenia i jakość zastosowanych materiałów.
Komfort i funkcjonalność
Dom wyposażony jest w:
ogrzewanie gazowe (piec gazowy),
kominek w salonie,
okna PCV dwuszybowe,
rolety zewnętrzne i moskitiery,
instalację alarmową,
ogrzewanie podłogowe w garażu, bramę elektryczną (2 piloty).
Działka i otoczenie
Działka o powierzchni 815 m² jest zagospodarowana, o regularnym, prostokątnym kształcie, częściowo ogrodzona. Do dyspozycji właścicieli:
drewniany domek gospodarczy,
hydrofor (woda gruntowa),
zestaw ogrodowy oraz oświetlony namiot ogrodowy.
Nieruchomość położona jest w spokojnym otoczeniu zabudowy jednorodzinnej, terenów zielonych i lasu. Dojazd drogą utwardzoną.
Sklep - ok. 900 m, szkoła - ok. 600 m.
To propozycja dla osób poszukujących wygodnego domu parterowego, gotowego do zamieszkania, z garażem i funkcjonalną działką, w spokojnej lokalizacji sprzyjającej codziennemu komfortowi życia.
Pośrednik odpowiedzialny zawodowo za wykonanie umowy pośrednictwa: Śląsk (licencja nr: )
Ogólne informacje
| Rodzaj | Na sprzedaż |
|---|---|
| Powierzchnia użytkowa | 119.85 m² |
| Liczba pokoi | 3 |




