Dom parterowy w Kleszczowie!
Śląskie
Opis
Dom wolnostojący w Żorach – Kleszczowie
Stan surowy otwarty | 399 500 PLN
Kupujący nie płaci prowizji ani podatku PCC
Mam przyjemność zaprezentować dom wolnostojący w stanie surowym otwartym, zlokalizowany w spokojnej i lubianej dzielnicy Żor – Kleszczowie. Nieruchomość idealna dla osób szukających parterowego domu z możliwością dostosowania układu wnętrz do własnych potrzeb.
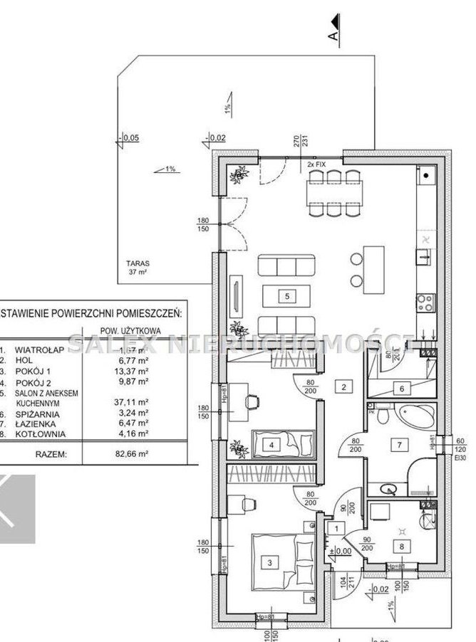
Powierzchnia użytkowa domu: 82,66 m²
Układ pomieszczeń: salon z aneksem kuchennym, 2 sypialnie, spiżarka, łazienka, kotłownia
Kupujący może dowolnie zaplanować układ ścian działowych, który nie musi być zgodny z projektem – idealne rozwiązanie, jeśli chcesz stworzyć dom dopasowany do swojego stylu życia.
Technologia wykonania:
- budynek z gazobetonu
- stropodach ocieplony styropianem, pokryty membraną
Działka:
- powierzchnia: 437 m²
- teren płaski, kształt zbliżony do trapezu
- spokojne, luźna zabudowa jednorodzinna
- dojazd asfaltową drogą gminną
Media: prąd i gaz (w granicy działki), woda i kanalizacja (doprowadzone do budynku)
Istnieje możliwość doprowadzenia budynku do stanu deweloperskiego + 180 000 PLN
Kontakt:
Więcej informacji udzielę telefonicznie:
535 688 889 – Arkadiusz Olek
SALEX Nieruchomości
44-240 Żory, ul. Bałdyka 1
lic. 17493Pośrednik odpowiedzialny zawodowo za wykonanie umowy pośrednictwa: Sylwester Sałek (licencja nr: 17493)
Ogólne informacje
| Rodzaj | Na sprzedaż |
|---|---|
| Powierzchnia użytkowa | 82.66 m² |
| Liczba pokoi | 3 |




