Dom szeregowy pod Wa-wą |5 pokoi | 153,3 m²| garaż
Mazowieckie
Opis
ZAKUP BEZPOŚREDNIO OD DEWELOPERA -
BEZ PODATKU PCC (2%), BEZ PROWIZJI
Oferuję na sprzedaż 5-pokojowy dom w zabudowie szeregowej w Dawidach Bankowych (gm. Raszyn). Dom o powierzchni 153,5 m² z garażem (18,26 m²) i z ogrodem o powierzchni 65,5 m².
Lokalizacja
Dom usytuowany jest w spokojnej okolicy domów szeregowych i jednorodzinnych, w odległości ok. 8,5 km od Piaseczna, ok. 11 km od Galerii Mokotów oraz 8,5 km od lotniska Chopina.
W okolicy: żłobek (500 m), przedszkole (2,5 km), szkoła podstawowa (3,0 km), Galeria Ursynów (10 km), Galeria Janki (9 km), Las Kabacki (4,5 km), przystanek autobusowy z linią 715, 809 (200 m), stacja PKP Dawidy Bankowe (1,5 km).
Teren, na którym powstaje zabudowa, zlokalizowany jest przy południowym krańcu Warszawy, sąsiadując z warszawską dzielnicą Ursynów. Bliskość Warszawy zapewnia dostęp do pełnej infrastruktury i szerokiej gamy usług dostępnych w okolicy, w tym zakupów, edukacji i opieki zdrowotnej.
Nieruchomość
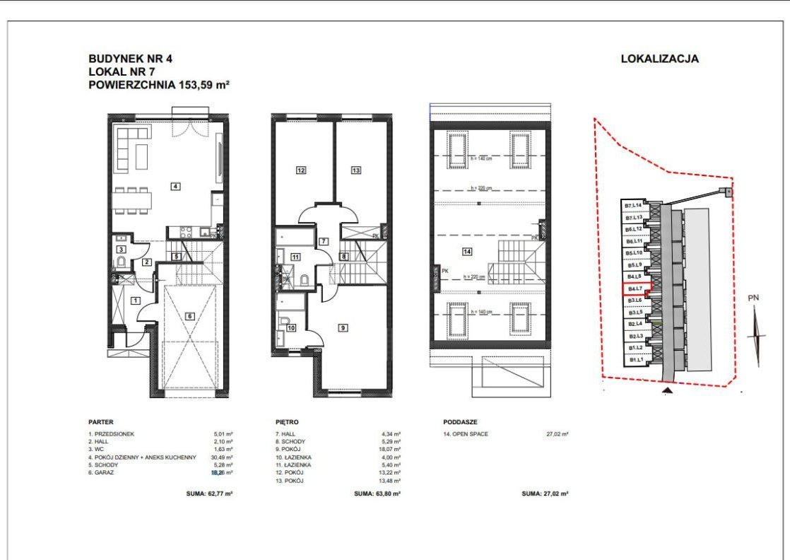
Powierzchnia domu : 153,5 m² z garażem
Powierzchnia działki : 65,5 m²
Ogród oraz salon z ekspozycją na zachód.
Rozkład:
*Garaż o pow. 18,26 m² - 1 miejsce w garażu zamykanym. Dodatkowo 1 miejsce postojowe naziemne na podjeździe;
*Parter o pow. 44,51 m²:
- salon z otwartą kuchnią i wyjściem na ogródek (30,49 m²)
- przedsionek (5,01 m²)
- hall (2,10 m²)
- WC (1,63 m²)
*Piętro o pow. 63,80 m²:
- pokój 1 (18,07 m²) z prywatną łazienką (4 m²)
- pokój 2 (13,22 m²)
- pokój 3 (13,48 m²)
- łazienka (5,40 m²)
* Poddasze do własnej aranżacji w postaci open space o pow. 27,02 m².
Istnieje możliwość wykończenia domu w wariancie "Pod klucz" pod okiem sprawdzonego architekta i wyspecjalizowanej ekipy wykończeniowej.
Zalety
* ogrzewanie podłogowe na każdym piętrze;
* duże, termiczne okna 3-szybowe
* osiedle zamknięte, ogrodzone;
* spokojna i bezpieczna okolica, z doskonałym połączeniem do Warszawy;
* dodatkowa strefa zielona o pow. ok 900 m² do wyłącznego użytku mieszkańców osiedla;
Zapraszam do kontaktu i oglądania,
Łukasz !
Ogólne informacje
| Rodzaj | Na sprzedaż |
|---|---|
| Powierzchnia użytkowa | 153.50 m² |
| Liczba pokoi | 5 |




