Dom w cenie mieszkania/ Zabierzów
Małopolskie
Opis
PREMIUM ESTATES prezentuje drewniany dom całoroczny położony w gminie Zabierzów, przy ulicy Szlacheckiej. Serdecznie polecam.
Lokalizacja:
Nieruchomość znajduje się w urokliwej gminie Zabierzów przy ulicy Szlacheckiej, z szybkim dostępem do centrum Krakowa – zaledwie 20 minut samochodem. Dom jest doskonale skomunikowany, z przystankiem autobusowym pod samym domem. W bliskiej okolicy znajdują się liczne sklepy handlowo-usługowe, takie jak Factory Modlniczka i Leroy Merlin, co sprawia, że codzienne zakupy są wyjątkowo wygodne. Otoczenie domu to spokojna i zielona okolica, idealna dla miłośników natury, z bliskością do Dolinek Krakowskich. Dodatkowo doskonały dojazd do lotniska Balice oraz autostrady A4.
Dom:
Ten przestronny, 170-metrowy dom całoroczny zbudowany z drewna oferuje wyjątkowy komfort i ciepło domowego ogniska.
Budynek, który powstał w 1938 roku, przeszedł gruntowną modernizację w 2004 roku oraz liczne remonty, w tym wymianę instalacji, okien (3-komorowe) i drzwi w 2019 roku, a także odświeżenie łazienki w 2024 roku.
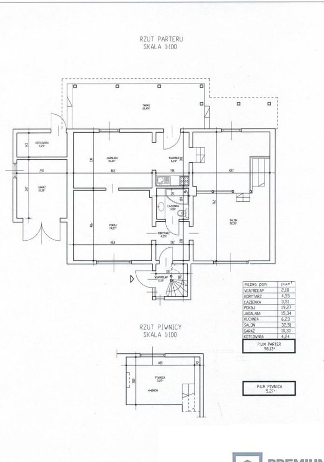
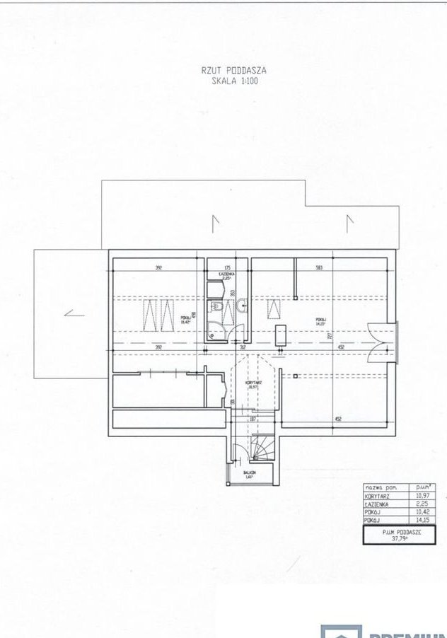
Dom składa się z dwóch poziomów:
Parter: O powierzchni 104 m², gdzie znajduje się przestronna kuchnia otwarta na jadalnię, salon z antresolą, sypialnia, łazienka z nową wanną, przedpokój oraz kotłownia. Z parteru można bezpośrednio wyjść na taras, a także korzystać z wbudowanego garażu.
Pierwsze piętro: O powierzchni 38 m² (ze skosami), znajdują się tutaj dwie sypialnie, łazienka z kabiną prysznicową oraz balkon, z którego rozciąga się widok na okoliczną zieleń. Dodatkowo do dyspozycji jest korytarz.
Dom jest również wyposażony w piwnicę, co dodatkowo zwiększa jego funkcjonalność. Na posesji znajduje się również blaszany garaż na dwa samochody.
Zalety mieszkania w drewnianym domu to nie tylko wyjątkowy mikroklimat, ale także doskonała izolacja termiczna, zapewniająca ciepło zimą i chłód latem. Całoroczny dom drewniany to także naturalna ochrona przed wilgocią i wyjątkowa trwałość konstrukcji, co czyni go idealnym miejscem do zamieszkania na wiele lat.
Dodatkowe informacje:
Dom jest w pełni umeblowany i gotowy do wprowadzenia się, co znacznie ułatwia proces zakupu. Nieruchomość posiada dostęp do wszystkich mediów, w tym światłowodowego Internetu, klimatyzacji na pierwszym piętrze oraz ogrzewania gazowego (osobna kotłownia) z nowoczesnym piecem dwufunkcyjnym.
Elektryczna brama oraz podjazd wyłożony kostką to dodatkowe atuty tej oferty.
Działka, na której znajduje się dom, ma powierzchnię 7 arów i kształt prostokąta, co daje wiele możliwości zagospodarowania przestrzeni zgodnie z własnymi potrzebami.
WIRTUALNY SPACER 360:
Cena:
Koszt zakupu: 999 000 złotych
Kontakt:
Dominik Kiper
Doradca Ds. Nieruchomości
Premium Estates
ul. Żabiniec 87/35, 31-215 Kraków
T: +48 570 400 783
M: -Zapraszamy do zapoznania się z naszą pełną ofertą na .
Ogólne informacje
| Rodzaj | Na sprzedaż |
|---|---|
| Powierzchnia użytkowa | 142 m² |
| Liczba pokoi | 5 |




