Dom w Toruń/Grębocin Nad Strugą
Toruń, Kujawsko-Pomorskie
Opis
WYŁĄCZNIE W BLUE-HOME Nieruchomości:
Komfortowy dom parterowy w Grębocinie Nad Strugą
Szukasz domu, który łączy wygodę parterowego układu z szybkim dojazdem do Torunia?
Ta oferta jest dla Ciebie!
Biuro BLUE-HOME Nieruchomości ma przyjemność zaprezentować ciekawy dom jednorodzinny w zabudowie szeregowej (segment narożny), położony w pożądanej lokalizacji – Grębocin Nad Strugą.
KLUCZOWE PARAMETRY:
Cena: 830 000 zł
Powierzchnia całkowita: 105,8 m²
Powierzchnia mieszkalna: 87,6 m² + garaż 18,2 m²
Powierzchnia działki: 393 m²
Liczba pokoi: 3 (przestronny salon + 2 sypialnie)
Rok budowy: 2005
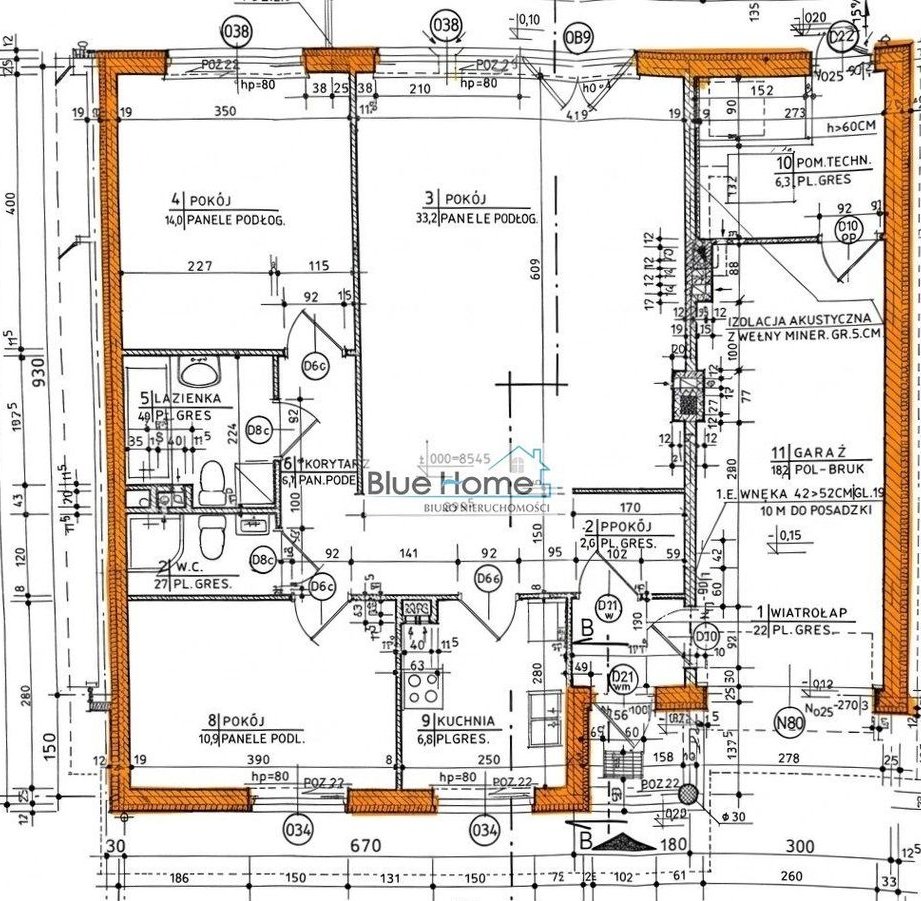
ROZKŁAD POMIESZCZEŃ (Funkcjonalny parter):
Dom został zaprojektowany z myślą o maksymalnej wygodzie – brak schodów sprawia, że jest to idealna przestrzeń dla rodzin oraz seniorów.
Strefa dzienna (33,2 m²): Przestronny, jasny salon z jadalnią. Na podłodze estetyczne kafle. W salonie przewidziano kanał dymowy, co umożliwia montaż kominka, który nada wnętrzu wyjątkowy klimat.
Kuchnia (6,8 m²): Oddzielna, w pełni wyposażona w sprzęt AGD (płyta ceramiczna, piekarnik elektryczny, okap, zmywarka, duża lodówko-zamrażarka). Wykończona kaflami.
Sypialnia 1 (14,0 m²): Komfortowy pokój główny z panelami na podłodze.
Sypialnia 2 (10,9 m²): Idealna jako pokój dziecięcy lub gabinet.
Łazienka z WC (4,8 m²): W pełni wykończona w kaflach.
Garaż (18,2 m²): Wbudowany w bryłę budynku, z bezpośrednim przejściem do części mieszkalnej.
Zaplecze gospodarcze: Kotłownia (6,3 m²) oraz praktyczny schowek (2,7 m²).
Komunikacja: Przedsionek/wiatrołap (2,6 m²) oraz korytarz (4,1 m²).
STANDARD WYKOŃCZENIA I KONSTRUKCJA:
Nieruchomość wykończona z dbałością o detale:Podłogi: W pokojach panele o wysokiej klasie ścieralności; w salonie, kuchni i łazience praktyczne i trwałe kafle.
Bezpieczeństwo: Okna PCV wyposażone w rolety zewnętrzne. Drzwi wejściowe wzmocnione, antywłamaniowe.
Elewacja: Tynk strukturalny
Dach: Solidne pokrycie blachodachówką.
Ogrzewanie: System olejowy (czysty i bezobsługowy).
DZIAŁKA I OTOCZENIE:
Działka o powierzchni 393 m² oferuje prywatną przestrzeń do wypoczynku:Podjazd i chodniki: Wyłożone dwukolorową kostką brukową.
Ogrodzenie: Frontowe ogrodzenie z niską podmurówką i drewnianymi przęsłami w kolorze brązowym doskonale komponuje się z bryłą domu.
Lokalizacja: Grębocin Nad Strugą to oaza spokoju z doskonałym zapleczem handlowo-usługowym i błyskawicznym połączeniem z Toruniem.
DLACZEGO WARTO?Dom dostępny od zaraz
Wszystkie wygody na jednym poziomie.
Możliwość instalacji kominka w salonie.
Garaż w bryle budynku.
Media: Woda, Prąd, Kanalizacja,
Zapraszamy na prezentację!
Andrzej: 883-200-944
Licencja nr 27399
Blue-Home Nieruchomości
Szosa Chełmińska 175a/6,
87-100 Toruń
Właściciel: Agnieszka Płachta
NIP: 879-185-37-94
Niniejsze ogłoszenie nie stanowi oferty w rozumieniu Kodeksu Cywilnego.
Ogólne informacje
| Rodzaj | Na sprzedaż |
|---|---|
| Powierzchnia użytkowa | 87.60 m² |
| Liczba pokoi | 3 |




