Dom w zabudowie bliźniaczej 95m2 / Olszewnica Stara /sprzedaż prywatna
Mazowieckie
Opis
Dom w zabudowie bliźniaczej – OLSZEWNICA STARA– sprzedaż prywatna. Nie jest to inwestycja deweloperska.
Na sprzedaż dom w zabudowie bliźniaczej budowany na własne potrzeby mieszkaniowe. Nieruchomość znajduje się obecnie na końcowym etapie budowy – zakończenie prac planowane na MAJ/ CZERWIEC 2026r. Dom będzie doprowadzony do stanu deweloperskiego.
Przedmiotem oferty jest połowa domu w zabudowie bliźniaczej o powierzchni 95.25 m², usytuowany na przestronnej, foremnej i zadrzewionej działce o powierzchni ok. 420 m². Nieruchomość położona jest w spokojnej, kameralnej okolicy, wśród zabudowy jednorodzinnej oraz terenów zielonych, co gwarantuje ciszę i komfort codziennego życia.
Wnętrze domu zostało zaprojektowane z myślą o funkcjonalności i wygodzie. Na powierzchnię użytkową składają się:
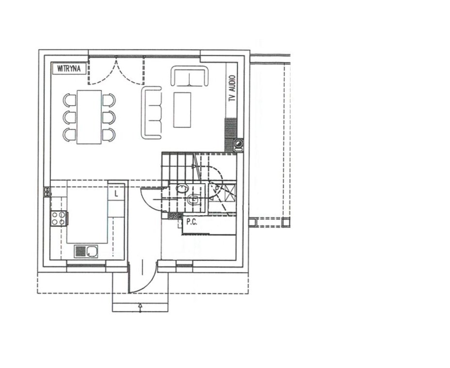
PARTER 50,80 m2 :
Salon + kuchnia - 31,17 m2
Wiatrołap + holl - 4,62 m2
Schody - 2,57 m2
Garderoba + pomieszczenie gospodarcze - 4,58 m2
WC - 1,07 m2
Pomieszczenie gospodarcze (osobne wejście) - 6,79 m2
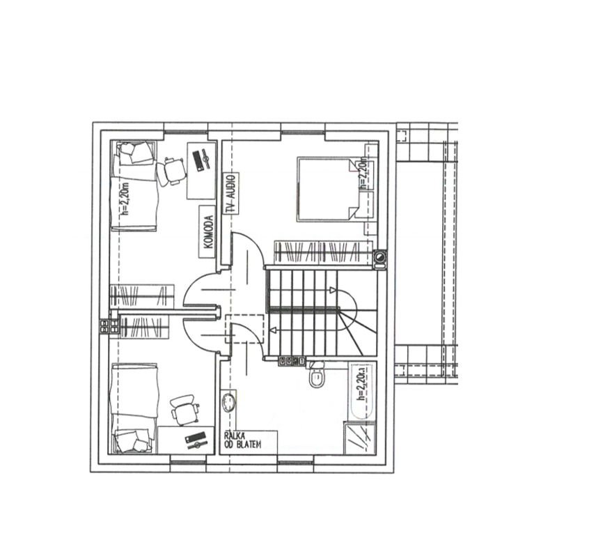
PIĘTRO 44,45m2:
Sypialnia 1 - 8,59 m2
Sypialnia 2 - 10,49 m2
Sypialnia 3 - 11,41 m2
Korytarz + schody - 8,52 m2
Łazienka - 5,44 m2
Lokalizacja zapewnia szybki dostęp do niezbędnej infrastruktury – w pobliżu znajdują się szkoła podstawowa, sklepy oraz restauracje, co pozwala na wygodne funkcjonowanie bez konieczności długich dojazdów. To doskonała propozycja zarówno dla rodzin z dziećmi, jak i osób pracujących w trybie zdalnym.
Najważniejsze atuty nieruchomości:
komplet mediów: prąd, woda z własnego ujęcia oraz szambo o pojemności 10 m³,
przygotowana instalacja pod kominek oraz pompę ciepła,
rozprowadzone ogrzewanie podłogowe,
wykonane tynki i posadzki w środku,
komfort akustyczny (lokale stykają się pomieszczeniem gospodarczym i wiatą garażową),
elewacja ocieplona styropianem grafitowym 20cm,
okna trzyszynowe PCV, dwukolorowe z ciepłym montażem,
dach ocieplony pianą PUR 25cm,
ogrodzenie panelowe z 3 stron (bez frontu),
Dom wyróżnia się praktycznym układem pomieszczeń z oddzieleniem strefy dziennej i nocnej, a jego lokalizacja łączy zalety życia na wsi z łatwym dostępem do codziennych udogodnień.
Sprzedaż nastąpi po zakończeniu budowy i dopełnieniu formalności.
W celu uzyskania więcej informacji oraz umówienia się na oględziny zapraszam do kontaktu!
Ogólne informacje
| Rodzaj | Na sprzedaż |
|---|---|
| Powierzchnia użytkowa | 95.25 m² |
| Liczba pokoi | 3 |




