Dom w zabudowie szeregowej pod Poznaniem – gotowy do wykończenia 0% pr
Wielkopolska
Opis
Oferta bez prowizji, brak także podatku PCC - oszczędzasz na starcie 5% wartości zakupu
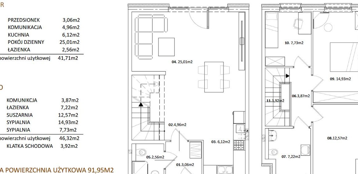
Powierzchnia działki 108mkw, powierzchnia ogródka i podjazdu 54mkw, powierzchnia użytkowa mieszkalna 88mkw (dostępne także większe działki, oraz ogródki)
Nowa inwestycja mieszkaniowa pod Poznaniem to idealne połączenie ciszy, natury i nowoczesnego standardu wykonania. Kameralne osiedle zaprojektowano z myślą o komforcie codziennego życia, w otoczeniu zieleni i z łatwym dojazdem do miasta.
Budynki powstały w technologii tradycyjnej, z wykorzystaniem wysokiej jakości materiałów: ściany z pustaka ceramicznego Porotherm, dachy pokryte dachówką Braas w kolorze grafitowym, okna trzyszybowe PCV z profilu Aluplast (Uw=0,9 W/m²K).
Elewacje ocieplone wełną mineralną i styropianem o grubości 15 cm, wykonane metodą lekką mokrą w systemie Caparol, wykończone tynkiem mineralnym malowanym farbą silikonową.
Wnętrza oddawane są w stanie deweloperskim: tynki gipsowe maszynowe, jastrych cementowy, kompletne instalacje (elektryczna – 40 punktów, wodno-kanalizacyjna, centralnego ogrzewania). W standardzie znajduje się piec dwufunkcyjny kondensacyjny oraz grzejniki płytowe z zaworami termostatycznymi.
Przemyślane układy pomieszczeń, duże przeszklenia i prywatne ogródki tworzą przestrzeń idealną do życia dla rodzin i osób ceniących spokój. Ogrodzenie panelowe w standardzie zapewnia prywatność, a kostka betonowa na podjeździe i dojściach podkreśla estetykę otoczenia.
To doskonała propozycja dla osób, które chcą zamieszkać blisko Poznania, korzystając jednocześnie z uroków natury i nowoczesnej architektury.
Ceny domów już od 598 000 zł, różne strony świata, dostępne także większe działki z większym ogrodem. Napisz lub zadzwoń!
Zadzwoń i umów się na prezentację, aby zobaczyć, jak może wyglądać Twój nowy dom.
Kontakt
Andrzej Nowakowski
Licencja Polskiej Federacji Rynku Nieruchomości nr 28641
Posiadam również inne domy/mieszkania w tej oraz innych lokalizacjach – zapraszam do kontaktu.
Powyższy opis ma charakter informacyjny i nie stanowi oferty w rozumieniu przepisów Kodeksu Cywilnego.
Ogólne informacje
| Rodzaj | Na sprzedaż |
|---|---|
| Powierzchnia użytkowa | 91.95 m² |
| Liczba pokoi | 4 |




